Полтавська обл., м. Зіньків, вулиця Воздвиженська, 36. Оренда – приміщення 2-го поверху площею 22,00 кв.м. (В)

607.20 грн
27.60 грн / м2
Україна, Полтавська обл., Зіньків, вулиця Воздвиженська, 36
Перейти до аукціону на сайті
  • Інформація
  • Опис
  • Документи
Дата оголошення пропозиції:
22 жовтня 2025
Площа:
22.00 м2
Тип об’єкта:
Приміщення
Тип аукціону:
Англійський аукціон
Статус аукціону:
Прийняття заяв на участь
Тип угоди:
Оренда
Розмір мінімального кроку:
50.00 ₴
Розмір гарантійного внеску:
364.32 ₴
Початок прийому пропозицій:
22.10.2025 11:25:56
Завершення прийому пропозицій:
25.11.2025 20:00:00
Проведення аукціону:
26.11.2025 12:45:00
Лот:
CLE001-UA-20251022-35469
№ лоту (УТК):
UTK070325_18U
Лот виставляється на торги (раз):
7
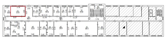
Стислий опис майна:
Пропонується до оренди приміщення 2-го поверху площею 22,00 кв.м. Приміщення розташоване на 2-му поверсі трьох поверхової будівлі, яка знаходиться в центрі міста Зіньків. Вхід спільний. Характеристики • Кількість поверхів –3; • Загальна площа –1250,55 кв.м.; • Площа запропонована до оренди 22,00 кв.м.; • Опалення – відсутнє; • Дозволена потужність – до 3 КВт; • Земельна ділянка – 0,7438 га договір оренди.
Адреса місцезнаходження майна:
Україна, Полтавська обл., Зіньків, вулиця Воздвиженська, 36
Схожі пропозиції
05.09.2023
Полтавська обл., Миргородський р-н., смт. Шишаки, вул. Корніліча, буд.10. Оренда – приміщення 2-го поверху площею 187,70 кв.м. (В)
1 535.39 грн
8.18 грн / м2
Приміщення
Полтавська обл., Миргородський р-н., смт. Шишаки, вул. Корніліча, буд.10. Оренда – приміщення 2-го поверху площею 187,70 кв.м. (В)
Україна, Полтавська обл., Миргородський р-н., смт. Шишаки, вул. Корніліча, буд.10
11.11.2025
Полтавська обл., Кременчуцький р-н, м. Горішні Плавні, вулиця Миру, 18. Оренда – приміщення 2-го поверху площею 21,80 кв.м. (В)
1 428.34 грн
65.52 грн / м2
Приміщення
Полтавська обл., Кременчуцький р-н, м. Горішні Плавні, вулиця Миру, 18. Оренда – приміщення 2-го поверху площею 21,80 кв.м. (В)
Україна, Полтавська обл., Горішні Плавні, вулиця Миру, 18
10.10.2023
Полтавська обл., Миргородський р-н., смт. Шишаки, вул. Корніліча, буд.10. Оренда – приміщення 2-го поверху площею 32,00 кв.м. (В)
500.80 грн
15.65 грн / м2
Приміщення
Полтавська обл., Миргородський р-н., смт. Шишаки, вул. Корніліча, буд.10. Оренда – приміщення 2-го поверху площею 32,00 кв.м. (В)
Україна, Полтавська обл., Миргородський р-н., смт. Шишаки, вул. Корніліча, буд.10
21.03.2024
Полтавська обл., Полтавський р-н, м. Решетілівка, вул. Старокиївська, 2. Оренда – Приміщення 2-го поверху, площею 14,60 кв.м. (В)
500.05 грн
34.25 грн / м2
Приміщення
Полтавська обл., Полтавський р-н, м. Решетілівка, вул. Старокиївська, 2. Оренда – Приміщення 2-го поверху, площею 14,60 кв.м. (В)
Україна, Полтавська обл., Полтавський р-н, м. Решетілівка, вул. Старокиївська, 2
Переглянуті пропозиції
21.06.2024
Тернопільська обл., м. Тернопіль, вул. Бордуляка, 5. Оренда – приміщення складу на 2-му поверсі площею 290 кв.м. (В)
16 286.40 грн
56.16 грн / м2
Приміщення
Тернопільська обл., м. Тернопіль, вул. Бордуляка, 5. Оренда – приміщення складу на 2-му поверсі площею 290 кв.м. (В)
Україна, Львівська обл., м. Тернопіль, вул. Бордуляка, 5
24.06.2025
м. Харків, вул.Конторська,14 Оренда – приміщення четвертого поверху площею 25,8 кв.м (В)
2 040.52 грн
79.09 грн / м2
Приміщення
м. Харків, вул.Конторська,14 Оренда – приміщення четвертого поверху площею 25,8 кв.м (В)
Україна, Харківська обл., Харків, вулиця Конторська, 14
Харківська обл., м. Харків, вул. Старошишківська, 5а. Оренда – приміщення 3-го поверху площею 540,7 кв.м. (В)
4 076.88 грн
7.54 грн / м2
Приміщення
Харківська обл., м. Харків, вул. Старошишківська, 5а. Оренда – приміщення 3-го поверху площею 540,7 кв.м. (В)
Україна, Харківська обл., м. Харків, вул. Старошишківська, буд. 5а
Полтавська обл., смт. Семенівка, вул. Воїнів Інтернаціоналістів, буд. 12/9. Оренда – приміщення 2-го поверху 10,6 кв.м.
471.70 грн
44.50 грн / м2
Приміщення
Полтавська обл., смт. Семенівка, вул. Воїнів Інтернаціоналістів, буд. 12/9. Оренда – приміщення 2-го поверху 10,6 кв.м.
Україна, Полтавська обл., смт. Семенівка, вул. Воїнів Інтернаціоналістів, буд. 12/9