ДОВГОСТРОКОВА ОРЕНДА! м. Київ, вул. Ісаакяна, 3. Оренда – Приміщення цокольного поверху площею 400,80 кв.м. (В)

128 993.47 грн
321.84 грн / м2
Україна, м.Київ, Київ, вул. Ісаакяна, 3
Перейти до аукціону на сайті
  • Інформація
  • Опис
  • Документи
Дата оголошення пропозиції:
04 квітня 2022
Площа:
400.80 м2
Тип об’єкта:
Приміщення
Тип аукціону:
Англійський аукціон
Статус аукціону:
Аукціон не відбувся
Тип угоди:
Оренда
Розмір мінімального кроку:
1 300.00 ₴
Розмір гарантійного внеску:
77 396.08 ₴
Початок прийому пропозицій:
04.04.2022 15:38:28
Завершення прийому пропозицій:
03.05.2022 20:00:00
Лот:
UA-PS-2022-04-04-000003-3
№ лоту (УТК):
UTK040422_02T
Лот виставляється на торги (раз):
1
Стислий опис майна:
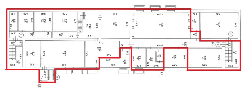
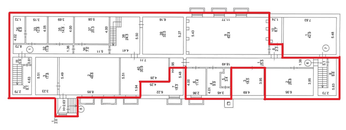
Пропонується до оренди частина приміщень цокольного поверху, площею 400,80 кв.м. Розташування будівлі у Шевченківському районі міста Києва, місцевість Шулявка. Поруч розвинена інфраструктура, зупинки швидкісного трамваю, маршрутного та громадського транспорту, магазини, кафе, аптеки. Вхід з двору, через прохідну. Доступ вільний 24/7. Характеристики Загальна площа будівлі – 2069,60 м2; Площа запропонована до оренди – 400,80 м2; Опалення – міське (централізоване) Кількість поверхів – 3; Загальна площа земельної ділянки – 0,2892 га; Сан. вузол, водопостачання, каналізація – відсутнє (на поверсі)
Адреса місцезнаходження майна:
Україна, м.Київ, Київ, вул. Ісаакяна, 3
Схожі пропозиції
15.08.2023
ДОВГОСТРОКОВА ОРЕНДА! м. Київ, вул. Героїв Севастополя, 39/8 літ. «Е». Оренда – приміщення 2-го та 4-го поверхів, площею 1751,8 м2 (В)
239 944.05 грн
136.97 грн / м2
Приміщення
ДОВГОСТРОКОВА ОРЕНДА! м. Київ, вул. Героїв Севастополя, 39/8 літ. «Е». Оренда – приміщення 2-го та 4-го поверхів, площею 1751,8 м2 (В)
Україна, м.Київ, Київ, вулиця Героїв Севастополя, 39
17.08.2023
м. Київ, вул. Оболонська, 29-А Оренда – приміщення 2-го поверху площею 177,1 кв.м. (В)
40 338.07 грн
227.77 грн / м2
Приміщення
м. Київ, вул. Оболонська, 29-А Оренда – приміщення 2-го поверху площею 177,1 кв.м. (В)
Україна, м.Київ, м. Київ, вулиця Оболонська, 29А
08.04.2025
м. Київ, вул. Курінного Петра, 2Б, літ. «А» (Святошинський р-н). Оренда – приміщення на 1-му поверсі, площею – 160,70 кв.м (В)
24 228.74 грн
150.77 грн / м2
Приміщення
м. Київ, вул. Курінного Петра, 2Б, літ. «А» (Святошинський р-н). Оренда – приміщення на 1-му поверсі, площею – 160,70 кв.м (В)
Україна, м.Київ, Київ, 03148, м. Київ, вул. Курінного Петра, 2Б (Святошинський р-н)
23.04.2025
ДОВГОСТРОКОВА ОРЕНДА!  м. Київ, пр-т Оболонський, 32-Б ;  Оренда – приміщення 4-го поверху, площею 772,40 м2 (В)
93 461.94 грн
121.00 грн / м2
Приміщення
ДОВГОСТРОКОВА ОРЕНДА! м. Київ, пр-т Оболонський, 32-Б ; Оренда – приміщення 4-го поверху, площею 772,40 м2 (В)
Україна, м.Київ, Київ, Оболонський проспект, 32-Б