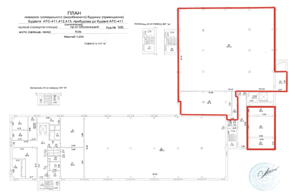
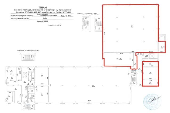
ДОВГОСТРОКОВА ОРЕНДА! м. Київ, пр-т Оболонський, 32-Б ; Оренда – приміщення 4-го поверху, площею 772,40 м2 (В)

93 461.94 грн
121.00 грн / м2
Україна, м.Київ, Київ, Оболонський проспект, 32-Б
Перейти до аукціону на сайті
  • Інформація
  • Опис
  • Документи
Дата оголошення пропозиції:
21 березня 2025
Площа:
772.40 м2
Тип об’єкта:
Приміщення
Тип аукціону:
Англійський аукціон
Статус аукціону:
Аукціон не відбувся
Тип угоди:
Оренда
Розмір мінімального кроку:
5 000.00 ₴
Розмір гарантійного внеску:
56 077.16 ₴
Початок прийому пропозицій:
21.03.2025 15:57:35
Завершення прийому пропозицій:
22.04.2025 20:00:00
Проведення аукціону:
23.04.2025 11:10:00
Лот:
CLE001-UA-20250321-88430
№ лоту (УТК):
UTK081124_01T
Лот виставляється на торги (раз):
4
Стислий опис майна:
Пропонуються до оренди приміщення 4-го поверху, площею – 772,40 м2 Будівля знаходиться в Оболонському районі міста Києва, житловий масив Оболонь, розвинена інфраструктура, високі автомобільний та пішохідний потоки, в 5 хв. від ст. м. Героїв Дніпра та Мінська (синя гілка), Торгівельно-розважальні центри. Характеристики: • загальна площа будівлі – 9 462,60 м2 • кількість поверхів – 4; • опалення централізоване (міське); • земельна ділянка – 0,6695 га; • водопостачання, каналізація, сан. вузол – присутнє
Адреса місцезнаходження майна:
Україна, м.Київ, Київ, Оболонський проспект, 32-Б
Схожі пропозиції
м. Київ, вул. Райдужна, 27-А, оренда – приміщення підвалу, площею 274,70 кв.м. (В)
12 691.14 грн
46.20 грн / м2
Приміщення
м. Київ, вул. Райдужна, 27-А, оренда – приміщення підвалу, площею 274,70 кв.м. (В)
Україна, м.Київ, Київ, вул. Райдужна, 27-А
04.09.2025
м. Київ, вул. Наталії Ужвій 1 (Подільський р-н). Оренда – приміщення 1-го поверху, загальною площею – 71,20 м. кв. (В)
6 519.07 грн
91.56 грн / м2
Приміщення
м. Київ, вул. Наталії Ужвій 1 (Подільський р-н). Оренда – приміщення 1-го поверху, загальною площею – 71,20 м. кв. (В)
Україна, м.Київ, Київ, 04108, м. Київ, вул. Наталії Ужвій 1
11.04.2024
ДОВГОСТРОКОВА ОРЕНДА!  м. Київ, вул. Ісаакяна, 3;   Оренда – Приміщення 3-го поверху площею 501,50 кв.м (В)
105 881.70 грн
211.13 грн / м2
Приміщення
ДОВГОСТРОКОВА ОРЕНДА! м. Київ, вул. Ісаакяна, 3; Оренда – Приміщення 3-го поверху площею 501,50 кв.м (В)
Україна, м.Київ, Київ, вулиця Ісаакяна, 3
20.02.2024
м. Київ, вул. Джона Маккейна, №40;  Оренда – приміщення підвалу, площею 44,26 кв.м. (В)
10 498.03 грн
237.51 грн / м2
Приміщення
м. Київ, вул. Джона Маккейна, №40; Оренда – приміщення підвалу, площею 44,26 кв.м. (В)
Україна, м.Київ, Київ, вулиця Джона Маккейна, 40
Переглянуті пропозиції
07.09.2022
м. Київ, вул. Миколи Голего, 8. Оренда – приміщення 1-го поверху площею 30,90 м2 (В)
10 011.60 грн
324.00 грн / м2
Приміщення
м. Київ, вул. Миколи Голего, 8. Оренда – приміщення 1-го поверху площею 30,90 м2 (В)
Україна, м.Київ, Київ, вулиця Миколи Голего, 8