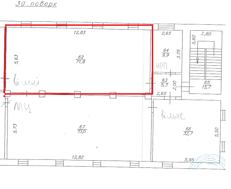
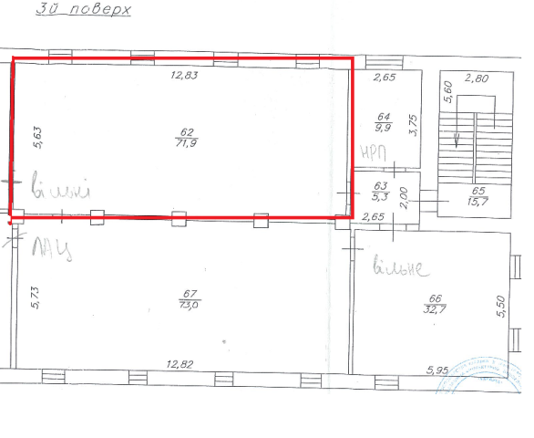
Рівненська обл., м. Дубровиця, вул. Шевченка, 53. Оренда – приміщення 3 поверху, площею 71,9 м. кв. (В)

1 366.10 грн
19.00 грн / м2
Україна, Рівненська обл., м. Дубровиця, вул. Шевченка, 53
Перейти до аукціону на сайті
  • Інформація
  • Опис
  • Документи
Дата оголошення пропозиції:
20 квітня 2022
Площа:
71.90 м2
Тип об’єкта:
Приміщення
Тип аукціону:
Англійський аукціон
Статус аукціону:
Аукціон не відбувся
Тип угоди:
Оренда
Розмір мінімального кроку:
100.00 ₴
Розмір гарантійного внеску:
819.66 ₴
Початок прийому пропозицій:
20.04.2022 11:18:39
Завершення прийому пропозицій:
19.05.2022 20:00:00
Лот:
UA-PS-2022-04-20-000019-1
№ лоту (УТК):
UTK080222_11P
Лот виставляється на торги (раз):
3
Стислий опис майна:
Пропонуються до оренди приміщення 3-го поверху площею 71,9 м.кв. Будівля знаходиться в центрі міста, розвинена інфраструктура, поряд відділення Укрпошти та Ощадбанку, магазини та адміністративні приміщення. Вхід в приміщення спільний. Територія огороджена та частково впорядкована. Потребує реконструкції системи електроживлення. Характеристики: Кількість поверхів – 3; Загальна площа – 1149,3 м.кв.; Площа, запропонована до оренди – 71,9 м.кв.; Дозволена потужність – 10 кВт.; Теплопостачання – централізоване; Земельна ділянка - площа 0,1345 га.(договір оренди)
Адреса місцезнаходження майна:
Україна, Рівненська обл., м. Дубровиця, вул. Шевченка, 53
Схожі пропозиції
Рівненська обл., м. Острог, просп. Незалежності, 7. Оренда – приміщення 2-го поверху
178.18 грн
15.36 грн / м2
Приміщення
Рівненська обл., м. Острог, просп. Незалежності, 7. Оренда – приміщення 2-го поверху
Україна, Рівненська обл., м. Острог, просп. Незалежності, буд. 7
21.10.2025
Рівненська обл., Варашський р-н, с. Дібрівськ, вул.Центральна, 1. Оренда – приміщення 1 поверху площею 25,5 кв. м. (В)
510.00 грн
20.00 грн / м2
Приміщення
Рівненська обл., Варашський р-н, с. Дібрівськ, вул.Центральна, 1. Оренда – приміщення 1 поверху площею 25,5 кв. м. (В)
Україна, Рівненська обл., Варашський р-н, с. Дібрівськ, вул.Центральна, 1
Рівненська обл., м. Рівне вул. В. Чорновола, 1. Оренда – підвальні приміщення загальною площею 261,7 м.кв. (В)
22 139.82 грн
84.60 грн / м2
Приміщення
Рівненська обл., м. Рівне вул. В. Чорновола, 1. Оренда – підвальні приміщення загальною площею 261,7 м.кв. (В)
Україна, Рівненська обл., м. Рівне , вул. В. Чорновола, 1
04.09.2025
Довгострокова м. Рівне, вул. Міцкевича,2 Оренда – приміщення 4-го поверху площею 865,60 кв.м   (В)
92 324.90 грн
106.66 грн / м2
Приміщення
Довгострокова м. Рівне, вул. Міцкевича,2 Оренда – приміщення 4-го поверху площею 865,60 кв.м (В)
Україна, Рівненська обл., Рівне, вулиця Міцкевича, 2
Переглянуті пропозиції
04.11.2025
Чернігівська обл., м. Ічня, вул. Воскресінська, 26. Оренда – приміщення 2-го поверху площею 155,90 кв.м (В)
3 507.75 грн
22.50 грн / м2
Приміщення
Чернігівська обл., м. Ічня, вул. Воскресінська, 26. Оренда – приміщення 2-го поверху площею 155,90 кв.м (В)
Україна, Чернігівська обл., Ічня, вул. Воскресінська, 26
04.11.2025
Довгострокова оренда! Чернігівська обл., м. Чернігів, вул. Коцюбинського, 50-А. Оренда – частина адміністративної будівлі площею 2292,40 кв.м (В)
89 862.08 грн
39.20 грн / м2
Адмінбудівля
Довгострокова оренда! Чернігівська обл., м. Чернігів, вул. Коцюбинського, 50-А. Оренда – частина адміністративної будівлі площею 2292,40 кв.м (В)
Україна, Чернігівська обл., Чернігів, вулиця Коцюбинського, 50-А