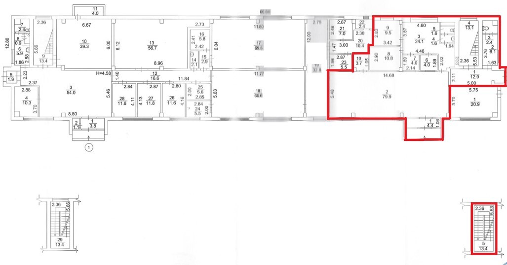
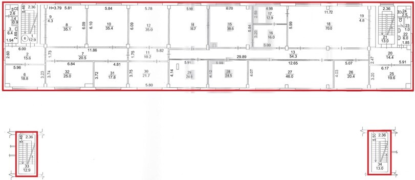
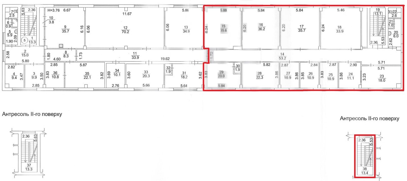
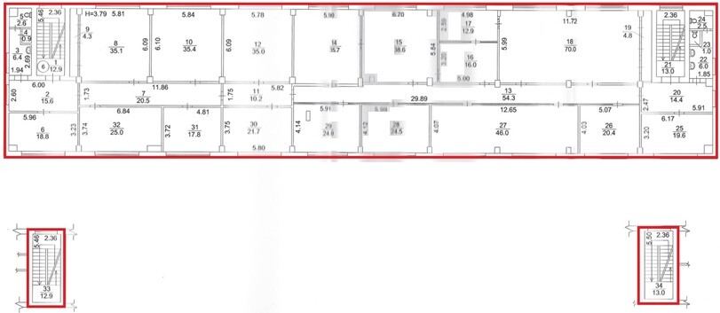
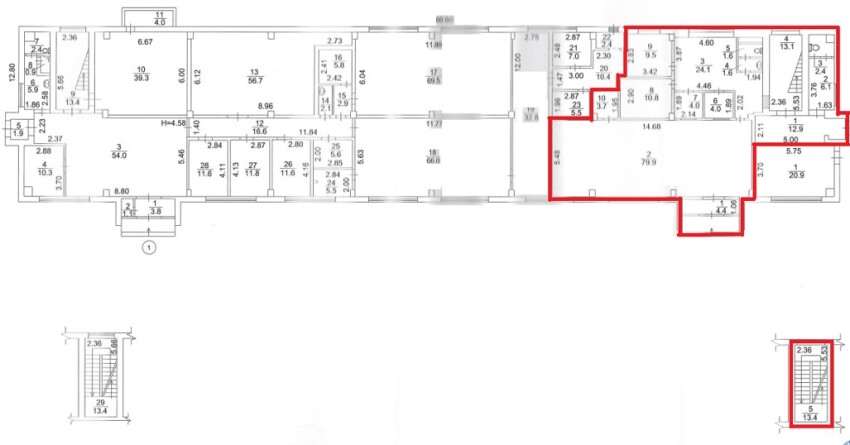
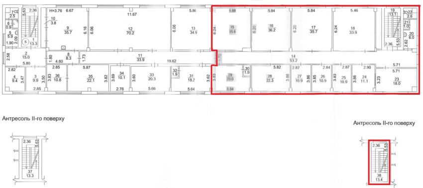
ДОВГОСТРОКОВА ОРЕНДА! м. Київ, проспект Академіка Глушкова, 38. Оренда – приміщення 1-го, 2-го, 3-го, 4-го поверхів, площею 1 932,00 м2 (В)

261 921.24 грн
135.57 грн / м2
Україна, м.Київ, Київ, проспект Академіка Глушкова, 38
Перейти до аукціону на сайті
  • Інформація
  • Опис
  • Документи
Дата оголошення пропозиції:
26 квітня 2022
Площа:
1932.00 м2
Тип об’єкта:
Приміщення
Тип аукціону:
Англійський аукціон
Статус аукціону:
Аукціон не відбувся
Тип угоди:
Оренда
Розмір мінімального кроку:
3 200.00 ₴
Розмір гарантійного внеску:
157 152.74 ₴
Початок прийому пропозицій:
26.04.2022 18:44:37
Завершення прийому пропозицій:
26.05.2022 20:00:00
Лот:
UA-PS-2022-04-26-000011-1
№ лоту (УТК):
UTK180322T
Лот виставляється на торги (раз):
2
Стислий опис майна:
Пропонується до оренди приміщення 1-го, 2-го, 3-го, 4-го поверхів, площею 1932,00 м2. Будівля знаходиться у Голосіївському районі міста Києва, житловий масив Теремки. Зупинки маршрутного транспорту, супермаркети, торговорозважальні центри. Найближчі станції метро «Теремки». Доступ 24/7. Характеристики: • загальна площа будівлі – 2 777,30 м2; • кількість поверхів – 4; • опалення централізоване (міське); • земельна ділянка – 0,2109 га; • каналізація, водозабезпечення, сан. вузол – присутні;
Адреса місцезнаходження майна:
Україна, м.Київ, Київ, проспект Академіка Глушкова, 38
Схожі пропозиції
25.01.2023
ДОВГОСТРОКОВА ОРЕНДА! м. Київ, вул. Героїв Севастополя, 39/8 літ. «Е». Оренда – приміщення 2-го та 4-го поверхів, площею 1751,8 м2 (В)
80 933.16 грн
46.20 грн / м2
Приміщення
ДОВГОСТРОКОВА ОРЕНДА! м. Київ, вул. Героїв Севастополя, 39/8 літ. «Е». Оренда – приміщення 2-го та 4-го поверхів, площею 1751,8 м2 (В)
Україна, м.Київ, Київ, вулиця Героїв Севастополя, 39
31.05.2023
ДОВГОСТРОКОВА ОРЕНДА! м. Київ, вул. Ісаакяна, 3. Оренда – Приміщення 3-го поверху площею 501,5 кв.м. (В)
85 034.34 грн
169.56 грн / м2
Приміщення
ДОВГОСТРОКОВА ОРЕНДА! м. Київ, вул. Ісаакяна, 3. Оренда – Приміщення 3-го поверху площею 501,5 кв.м. (В)
Україна, м.Київ, Київ, вулиця Ісаакяна, 3
м. Київ, вул. Оболонська, 29-А, оренда – приміщення 1-го поверху площею 113,30 м2 (В)
36 013.54 грн
317.86 грн / м2
Приміщення
м. Київ, вул. Оболонська, 29-А, оренда – приміщення 1-го поверху площею 113,30 м2 (В)
Україна, м.Київ, Київ, вул. Оболонська, 29-А
м. Київ, вул. Антоновича, 40, оренда – приміщення підвалу площею 77,00 кв.м. (В)
3 557.40 грн
46.20 грн / м2
Приміщення
м. Київ, вул. Антоновича, 40, оренда – приміщення підвалу площею 77,00 кв.м. (В)
Україна, м.Київ, Київ, вул. Антоновича, 40
Переглянуті пропозиції
26.07.2024
Одеська обл., Подільський р-н., смт. Окни, вул. К.Маркса, буд. 11. Оренда – приміщення 1-го поверху загальною площею 105,40 кв.м.
737.80 грн
7.00 грн / м2
Приміщення
Одеська обл., Подільський р-н., смт. Окни, вул. К.Маркса, буд. 11. Оренда – приміщення 1-го поверху загальною площею 105,40 кв.м.
Україна, Одеська обл., смт. Окни, вул. К.Маркса, буд. 11
02.03.2023
м. Київ, вул. Будівельників, 8-Б Оренда – приміщення 1-го, 2-го та 3-го поверхів, площею 1520,3 м. кв. (П)
218 816.78 грн
143.93 грн / м2
Приміщення
м. Київ, вул. Будівельників, 8-Б Оренда – приміщення 1-го, 2-го та 3-го поверхів, площею 1520,3 м. кв. (П)
Україна, м.Київ, м. Київ, вулиця Будівельників, 8-Б
22.04.2025
Полтавська обл., Лубенський р-н, с.Новоаврамівка, вул.Центральна, буд.14;   Оренда–будівля площею 62,1 кв.м. (В)
745.20 грн
12.00 грн / м2
Приміщення
Полтавська обл., Лубенський р-н, с.Новоаврамівка, вул.Центральна, буд.14; Оренда–будівля площею 62,1 кв.м. (В)
Україна, Полтавська обл., с. Новоаврамівка, вул. Центральна, буд. 14
07.11.2024
Рівненська обл., Дубенський р-н., смт. Демидівка, вул. Миру, 28. Оренда – складські приміщення 1 поверху площею 128 м. кв. (В)
2 264.32 грн
17.69 грн / м2
Приміщення
Рівненська обл., Дубенський р-н., смт. Демидівка, вул. Миру, 28. Оренда – складські приміщення 1 поверху площею 128 м. кв. (В)
Україна, Рівненська обл., Дубенський р-н., смт. Демидівка, вул. Миру, 28