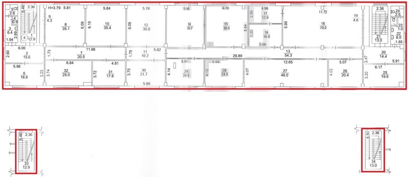
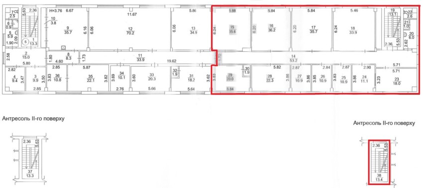
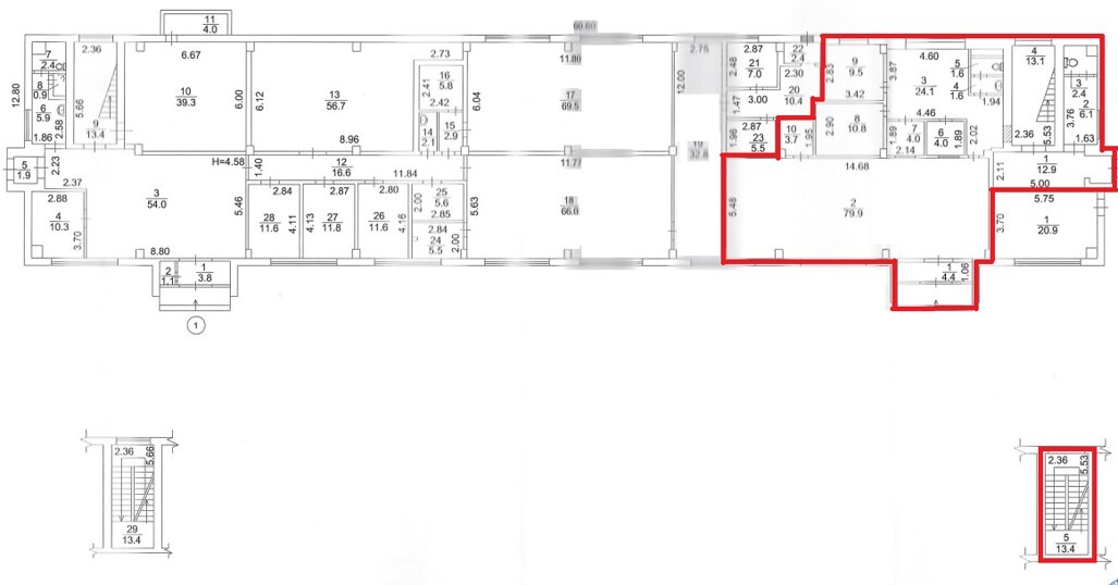
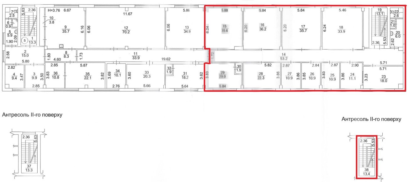
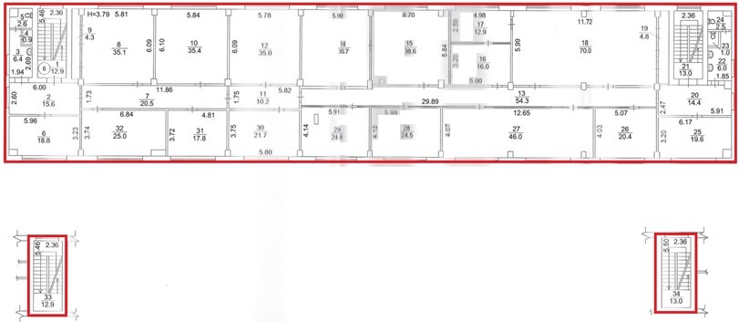
ДОВГОСТРОКОВА ОРЕНДА! м. Київ, проспект Академіка Глушкова, 38. Оренда – приміщення 1-го, 2-го, 3-го, 4-го поверхів, площею 1 932,00 м2 (В)

224 498.40 грн
116.20 грн / м2
Україна, м.Київ, Київ, проспект Академіка Глушкова, 38
Перейти до аукціону на сайті
  • Інформація
  • Опис
  • Документи
Дата оголошення пропозиції:
30 травня 2022
Площа:
1932.00 м2
Тип об’єкта:
Приміщення
Тип аукціону:
Англійський аукціон
Статус аукціону:
Аукціон не відбувся
Тип угоди:
Оренда
Розмір мінімального кроку:
2 200.00 ₴
Розмір гарантійного внеску:
134 699.04 ₴
Початок прийому пропозицій:
30.05.2022 17:32:42
Завершення прийому пропозицій:
04.07.2022 20:00:00
Лот:
UA-PS-2022-05-30-000026-3
№ лоту (УТК):
UTK180322T
Лот виставляється на торги (раз):
3
Стислий опис майна:
Пропонується до оренди приміщення 1-го, 2-го, 3-го, 4-го поверхів, площею 1932,00 м2. Будівля знаходиться у Голосіївському районі міста Києва, житловий масив Теремки. Зупинки маршрутного транспорту, супермаркети, торговорозважальні центри. Найближчі станції метро «Теремки». Доступ 24/7. Характеристики: • загальна площа будівлі – 2 777,30 м2; • кількість поверхів – 4; • опалення централізоване (міське); • земельна ділянка – 0,2109 га; • каналізація, водозабезпечення, сан. вузол – присутні;
Адреса місцезнаходження майна:
Україна, м.Київ, Київ, проспект Академіка Глушкова, 38
Схожі пропозиції
07.01.2025
   м. Київ, вул. Антоновича, 40;  Оренда – група приміщень на 4-му поверсі, площею - 774,90 кв.м. (В)
231 811.33 грн
299.15 грн / м2
Приміщення
м. Київ, вул. Антоновича, 40; Оренда – група приміщень на 4-му поверсі, площею - 774,90 кв.м. (В)
Україна, м.Київ, Київ, вул. Антоновича, 40
14.10.2025
м. Київ, вулиця Академіка Шалімова, 39/8, літ. «Е» (Солом’янський р-н). Оренда – приміщення 1-го поверху, площею 74,40 м. кв. (В)
6 858.19 грн
92.18 грн / м2
Приміщення
м. Київ, вулиця Академіка Шалімова, 39/8, літ. «Е» (Солом’янський р-н). Оренда – приміщення 1-го поверху, площею 74,40 м. кв. (В)
Україна, м.Київ, Київ, вулиця Академіка Шалімова, 39/8
м. Київ, вул. Райдужна, 27-А, оренда – приміщення підвалу, площею 274,70 кв.м. (В)
12 691.14 грн
46.20 грн / м2
Приміщення
м. Київ, вул. Райдужна, 27-А, оренда – приміщення підвалу, площею 274,70 кв.м. (В)
Україна, м.Київ, Київ, вул. Райдужна, 27-А
22.10.2025
м. Київ, вул. Джона Маккейна, 40, літ. «А» (Печерський р-н). Оренда – група приміщень на 1-му поверсі, площею 34,70 кв.м (В)
7 039.59 грн
202.87 грн / м2
Приміщення
м. Київ, вул. Джона Маккейна, 40, літ. «А» (Печерський р-н). Оренда – група приміщень на 1-му поверсі, площею 34,70 кв.м (В)
Україна, м.Київ, Київ, вул. Джона Маккейна, 40, літ. «А» (Печерський р-н)
Переглянуті пропозиції
11.09.2024
Полтавська обл., Миргородський район, смт. В.Багачка, вулиця Чекалових, 17. Оренда – приміщення 2-го поверху загальною площею 39,00 кв.м. (В)
1 447.68 грн
37.12 грн / м2
Приміщення
Полтавська обл., Миргородський район, смт. В.Багачка, вулиця Чекалових, 17. Оренда – приміщення 2-го поверху загальною площею 39,00 кв.м. (В)
Україна, Полтавська обл., Миргородський район, смт. В.Багачка, вулиця Чекалових, 17