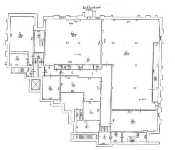
м. Київ, вул. Райдужна, 27-А, оренда – приміщення підвалу, площею 274,70 кв.м. (В)

12 691.14 грн
46.20 грн / м2
Україна, м.Київ, Київ, вул. Райдужна, 27-А
Перейти до аукціону на сайті
  • Інформація
  • Опис
  • Документи
Дата оголошення пропозиції:
18 квітня 2022
Площа:
274.70 м2
Тип об’єкта:
Приміщення
Тип аукціону:
Англійський аукціон
Статус аукціону:
Аукціон не відбувся
Тип угоди:
Оренда
Розмір мінімального кроку:
300.00 ₴
Розмір гарантійного внеску:
7 614.68 ₴
Початок прийому пропозицій:
18.04.2022 17:10:38
Завершення прийому пропозицій:
18.05.2022 20:00:00
Лот:
UA-PS-2022-04-18-000044-3
№ лоту (УТК):
UTK160621_02T
Лот виставляється на торги (раз):
10
Стислий опис майна:
Пропонуються до оренди приміщення підвалу, площею 274,70 м2. Будівля знаходиться у Дніпровському районі міста Києва, житловий масив Райдужний. Поруч розвинена інфраструктура, зупинки маршрутного транспорту, авторинок, супермаркети, торгівельно-розважальні центри. Вхід у будівлю з двору. Характеристики: • кількість поверхів – 2; • опалення централізоване (міське); • земельна ділянка – 0,2524 га; • загальна площа будівлі -- 3040,30 м2; • каналізація, сан. вузол, водопостачання – відсутнє;
Адреса місцезнаходження майна:
Україна, м.Київ, Київ, вул. Райдужна, 27-А
Схожі пропозиції
м. Київ, вул. Юрія Литвинського (Російська), 48, (В). Оренда – приміщення 1-го поверху, площею 12,20 м2
2 108.16 грн
172.80 грн / м2
Приміщення
м. Київ, вул. Юрія Литвинського (Російська), 48, (В). Оренда – приміщення 1-го поверху, площею 12,20 м2
Україна, м.Київ, Київ, вул. Юрія Литвинського (Російська), 48, (В)
21.10.2025
м. Київ, вул. Салютна, 5-А, літ. «Б» (В). Оренда – приміщення 3-го та 4-го поверху, площею 992,80 м2
59 568.00 грн
60.00 грн / м2
Приміщення
м. Київ, вул. Салютна, 5-А, літ. «Б» (В). Оренда – приміщення 3-го та 4-го поверху, площею 992,80 м2
Україна, м.Київ, Київ, вул. Салютна, 5-А, літ. «Б»
24.02.2023
м. Київ, вул. Будівельників, 8-Б, оренда – приміщення підвалу, площею 452,6 кв.м. (В)
20 910.12 грн
46.20 грн / м2
Приміщення
м. Київ, вул. Будівельників, 8-Б, оренда – приміщення підвалу, площею 452,6 кв.м. (В)
Україна, м.Київ, Київ, вулиця Будівельників, 8Б
Переглянуті пропозиції
Полтавська обл., Полтавський р-н., м. Решетилівка, вул. Полтавська, 50. Оренда – підсобне приміщення та гараж площею 50,30 кв.м. (В)
503.00 грн
10.00 грн / м2
Приміщення
Полтавська обл., Полтавський р-н., м. Решетилівка, вул. Полтавська, 50. Оренда – підсобне приміщення та гараж площею 50,30 кв.м. (В)
Україна, Полтавська обл., Полтавський р-н., м. Решетилівка, вул. Полтавська, 50
Львівська обл., м. Новояворівськ, вул. Шевченка,7. Оренда – приміщення 3-го поверху площею 314 кв.м. (В)
7 912.80 грн
25.20 грн / м2
Приміщення
Львівська обл., м. Новояворівськ, вул. Шевченка,7. Оренда – приміщення 3-го поверху площею 314 кв.м. (В)
Україна, Львівська обл., Новояворівськ, вул. Шевченка,7
24.01.2025
ДОВГОСТРОКОВА ОРЕНДА!  м. Київ, пр-т Оболонський, 32-Б ;  Оренда – приміщення 4-го поверху, площею 772,40 м2 (В)
149 179.01 грн
193.14 грн / м2
Приміщення
ДОВГОСТРОКОВА ОРЕНДА! м. Київ, пр-т Оболонський, 32-Б ; Оренда – приміщення 4-го поверху, площею 772,40 м2 (В)
Україна, м.Київ, Київ, Оболонський проспект, 32-Б
10.10.2023
Сумська обл., м. Суми, вул. Івана Сірка, буд. 9. Оренда – частина нежитлової будівлі 2-го поверху площею 566,00 кв.м. (В)
26 828.40 грн
47.40 грн / м2
Будівля
Сумська обл., м. Суми, вул. Івана Сірка, буд. 9. Оренда – частина нежитлової будівлі 2-го поверху площею 566,00 кв.м. (В)
Україна, Сумська обл., м. Суми, вул. Івана Сірка, буд. 9