Довгострокова оренда – приміщення 1-4 поверхів виробничої будівлі АТС -228, 229 (літ.А), площею 2577,64 м2 м. Київ, вул. Софіївська, 11-15 (В)

935 270.90 грн
362.84 грн / м2
Україна, м.Київ, Київ, вул. Софіївська, 11-15
Перейти до аукціону на сайті
  • Інформація
  • Опис
  • Документи
Дата оголошення пропозиції:
08 липня 2022
Площа:
2577.64 м2
Тип об’єкта:
Приміщення
Тип аукціону:
Англійський аукціон
Статус аукціону:
Аукціон не відбувся
Тип угоди:
Оренда
Розмір мінімального кроку:
10 000.00 ₴
Розмір гарантійного внеску:
561 162.54 ₴
Початок прийому пропозицій:
08.07.2022 17:15:11
Завершення прийому пропозицій:
08.08.2022 20:00:00
Проведення аукціону:
09.08.2022 15:14:49
Лот:
UA-PS-2022-07-08-000045-1
№ лоту (УТК):
UTK080722_01T
Лот виставляється на торги (раз):
1
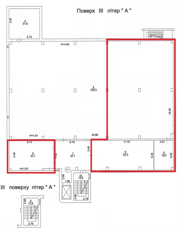
Стислий опис майна:
Пропонуються до оренди приміщення 1- 4 поверхів виробничої будівлі АТС -228, 229 ( літ. А), площею 2577,64 м2. Розташування будівлі в Шевченківському районі міста Києва, місцевість Старий Київ, 5 хв. від ст. м. Майдан Незалежності. Поруч розвинена інфраструктура, торгово-розважальні центри, банки, державні установи, супермаркети, ресторани. Вхід з вул. Софіївська. Доступ 24/7. Характеристики • загальна площа майнового комплексу – 5596,10 м2; • кількість поверхів – 4; • опалення – централізоване (міське); • водопостачання, каналізація, сан. вузол – присутнє; • земельна ділянка – 0,2037 га;
Адреса місцезнаходження майна:
Україна, м.Київ, Київ, вул. Софіївська, 11-15
Схожі пропозиції
27.11.2025
м. Київ, вул. Дегтярівська, 28А, літ. «А» (Шевченківський р-н). Оренда – група приміщень у підвалі, загальною площею – 269,80 кв.м (В)
49 260.08 грн
182.58 грн / м2
Приміщення
м. Київ, вул. Дегтярівська, 28А, літ. «А» (Шевченківський р-н). Оренда – група приміщень у підвалі, загальною площею – 269,80 кв.м (В)
Україна, м.Київ, Київ, вул. Дегтярівська, 28А, літ. «А»
ДОВГОСТРОКОВА ОРЕНДА! м. Київ, проспект Академіка Глушкова, 38. Оренда – приміщення 1-го, 2-го, 3-го, 4-го поверхів, площею 1 932,00 м2 (В)
224 498.40 грн
116.20 грн / м2
Приміщення
ДОВГОСТРОКОВА ОРЕНДА! м. Київ, проспект Академіка Глушкова, 38. Оренда – приміщення 1-го, 2-го, 3-го, 4-го поверхів, площею 1 932,00 м2 (В)
Україна, м.Київ, Київ, проспект Академіка Глушкова, 38
23.04.2025
м. Київ, вул. Оболонська, 29А. Оренда – приміщення 1-го поверху, загальною площею – 135,10 кв. м (В)
33 485.88 грн
247.86 грн / м2
Приміщення
м. Київ, вул. Оболонська, 29А. Оренда – приміщення 1-го поверху, загальною площею – 135,10 кв. м (В)
Україна, м.Київ, м. Київ, вул. Оболонська, 29А
17.06.2025
м. Київ, вул. Наталії Ужвій 1 (Подільський р-н). Оренда – приміщення 3-го поверху, загальною площею – 113,20 м. кв. (В)
10 364.59 грн
91.56 грн / м2
Приміщення
м. Київ, вул. Наталії Ужвій 1 (Подільський р-н). Оренда – приміщення 3-го поверху, загальною площею – 113,20 м. кв. (В)
Україна, м.Київ, Київ, вулиця Наталії Ужвій, 1
Переглянуті пропозиції
22.10.2025
м. Київ, вул. Джона Маккейна, 40, літ. «А» (Печерський р-н). Оренда – група приміщень на 3-му поверсі, площею 62,80 кв. м. (В)
10 616.97 грн
169.06 грн / м2
Приміщення
м. Київ, вул. Джона Маккейна, 40, літ. «А» (Печерський р-н). Оренда – група приміщень на 3-му поверсі, площею 62,80 кв. м. (В)
Україна, м.Київ, Київ, , вул. Джона Маккейна, 40, літ. «А»
30.11.2023
Сумська обл., м. Шостка, вул. Бульварна, 7. Оренда – нежитлове приміщення 1-го поверху площею 207,20 кв.м. (В)
2 258.48 грн
10.90 грн / м2
Приміщення
Сумська обл., м. Шостка, вул. Бульварна, 7. Оренда – нежитлове приміщення 1-го поверху площею 207,20 кв.м. (В)
Україна, Сумська обл., м. Шостка, вул. Бульварна, 7
09.09.2025
 м. Київ, вул. Архітектора Вербицького, 3 (Дарницький р-н). Оренда – Приміщення підвалу, площею 198,70 кв.м. (В)
13 591.08 грн
68.40 грн / м2
Приміщення
м. Київ, вул. Архітектора Вербицького, 3 (Дарницький р-н). Оренда – Приміщення підвалу, площею 198,70 кв.м. (В)
Україна, м.Київ, Київ, 02091, м. Київ, вул. Архітектора Вербицького , 3
Чернігівська обл., м. Чернігів, просп. Миру, 28, оренда – підвальне приміщення площею 22,10 кв.м. (В)
1 109.20 грн
50.19 грн / м2
Приміщення
Чернігівська обл., м. Чернігів, просп. Миру, 28, оренда – підвальне приміщення площею 22,10 кв.м. (В)
Україна, Чернігівська обл., Чернігів, просп. Миру, 28