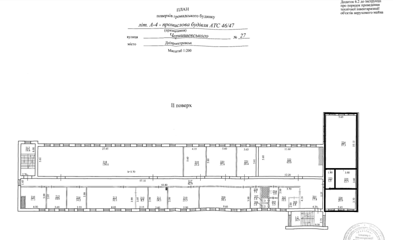
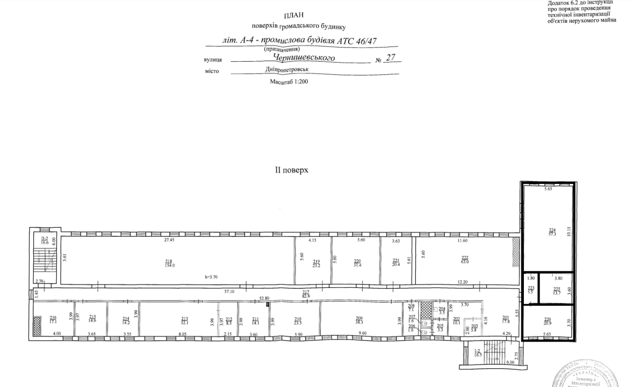
Дніпропетровська обл., м. Дніпро, вул. Чернишевського, 27. Оренда – приміщення 2-го поверху площею 98,40 кв.м. (В)

9 547.75 грн
97.03 грн / м2
Україна, Дніпропетровська обл., м. Дніпро, вул. Чернишевського, 27
Перейти до аукціону на сайті
  • Інформація
  • Опис
  • Документи
Дата оголошення пропозиції:
01 липня 2022
Площа:
98.40 м2
Тип об’єкта:
Приміщення
Тип аукціону:
Англійський аукціон
Статус аукціону:
Аукціон не відбувся
Тип угоди:
Оренда
Розмір мінімального кроку:
300.00 ₴
Розмір гарантійного внеску:
5 728.65 ₴
Початок прийому пропозицій:
01.07.2022 11:42:50
Завершення прийому пропозицій:
02.08.2022 20:00:00
Лот:
UA-PS-2022-07-01-000004-2
№ лоту (УТК):
UTK010722_06P
Лот виставляється на торги (раз):
1
Стислий опис майна:
Пропонується до оренди приміщення 2-го поверху площею 98,40 кв.м. Розташування - будівля знаходиться в Соборному районі міста. Поруч знаходяться відділення банку, супермаркети, учбові заклади, зупинка громадського транспорту, високий автомобільний і пішохідний потоки. Стан приміщення задовільний, підходить для офісу, студії, Ідеальне місце під розвиток будь-якого бізнесу. Можливість передачі приміщень в суборенду. Характеристики: - Кількість поверхів – 4 - Загальна площа – 4 202,20 кв.м. - Площа запропонована до оренди – 98,40 кв.м. - Електропостачання, водопостачання, теплопостачання, вивіз сміття, охорона та обслуговування пожежної сигналізації, прибирання загальних місць та території; - Земельна ділянка – 0, 358 га (договір оренди)
Адреса місцезнаходження майна:
Україна, Дніпропетровська обл., м. Дніпро, вул. Чернишевського, 27
Схожі пропозиції
Дніпропетровська обл., м. Дніпро, вул. Січових Стрільців, 10. Оренда – приміщення  цокольного  поверху площею 23,70 кв.м. (В)
2 964.40 грн
125.08 грн / м2
Приміщення
Дніпропетровська обл., м. Дніпро, вул. Січових Стрільців, 10. Оренда – приміщення цокольного поверху площею 23,70 кв.м. (В)
Україна, Дніпропетровська обл., м. Дніпро, вул. Січових Стрільців, 10
31.08.2023
ДОВГОСТРОКОВА ОРЕНДА! Дніпропетровська обл., м. Дніпро, пр. Хмельницького Богдана, 28а. Оренда – приміщення 4-го поверху загальною площею 692,60 кв.м. (В)
47 706.29 грн
68.88 грн / м2
Приміщення
ДОВГОСТРОКОВА ОРЕНДА! Дніпропетровська обл., м. Дніпро, пр. Хмельницького Богдана, 28а. Оренда – приміщення 4-го поверху загальною площею 692,60 кв.м. (В)
Україна, Дніпропетровська обл., м. Дніпро, пр. Хмельницького Богдана, 28а
16.04.2025
Дніпропетровська обл., м. Дніпро, вул. Князя Ярослава Мудрого, 3. Оренда – приміщення 3-го поверху площею 211,90 кв.м.(В)
34 620.23 грн
211.90 грн / м2
Приміщення
Дніпропетровська обл., м. Дніпро, вул. Князя Ярослава Мудрого, 3. Оренда – приміщення 3-го поверху площею 211,90 кв.м.(В)
Україна, Дніпропетровська обл., Дніпро, 49000, Дніпропетровська обл., м. Дніпро, вул. Князя Ярослава Мудрого, 3
19.11.2025
Дніпропетровська обл., м. Дніпро, проспект Героїв, 14. Оренда – приміщення 1-го поверху загальною площею 20,10 кв.м. (В)
1 546.09 грн
76.92 грн / м2
Приміщення
Дніпропетровська обл., м. Дніпро, проспект Героїв, 14. Оренда – приміщення 1-го поверху загальною площею 20,10 кв.м. (В)
Україна, Дніпропетровська обл., м. Дніпро, проспект Героїв, 14
Переглянуті пропозиції
м. Київ, вул. Макіївська, 3.Оренда – приміщення 2-го поверху, площею 724,10 м2 (В)
76 682.19 грн
105.90 грн / м2
Приміщення
м. Київ, вул. Макіївська, 3.Оренда – приміщення 2-го поверху, площею 724,10 м2 (В)
Україна, м.Київ, Київ, вул. Макіївська, 3
09.08.2022
м. Київ, вул. Джона Маккейна, №40 , Оренда – приміщення підвалу, площею 44,26 м2 , (В)
15 593.68 грн
352.80 грн / м2
Приміщення
м. Київ, вул. Джона Маккейна, №40 , Оренда – приміщення підвалу, площею 44,26 м2 , (В)
Україна, м.Київ, Київ, вул. Джона Маккейна, №40
12.01.2023
Довгострокова оренда. м. Київ, вул. Горького (Антоновича), 40. Оренда – приміщення 1-го поверху, площею 538,5 кв. м. (В)
м. Київ, вул. Маршала Малиновського №19-А. Оренда – приміщення 1-го поверху площею 120,30 кв.м. (В)
29 545.68 грн
245.60 грн / м2
Приміщення
м. Київ, вул. Маршала Малиновського №19-А. Оренда – приміщення 1-го поверху площею 120,30 кв.м. (В)
Україна, м.Київ, Київ, вул. Маршала Малиновського №19-А