м. Івано-Франківськ, вул. Ю.Целевича, 18а. Оренда приміщень 3-го поверху

2 345.76 грн
64.80 грн / м2
Україна, Івано-Франківська обл., м. Івано-Франківськ, вул. Ю.Целевича, 18а
Перейти до аукціону на сайті
  • Інформація
  • Опис
  • Документи
Дата оголошення пропозиції:
16 квітня 2020
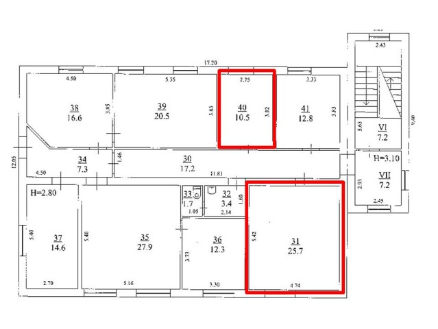
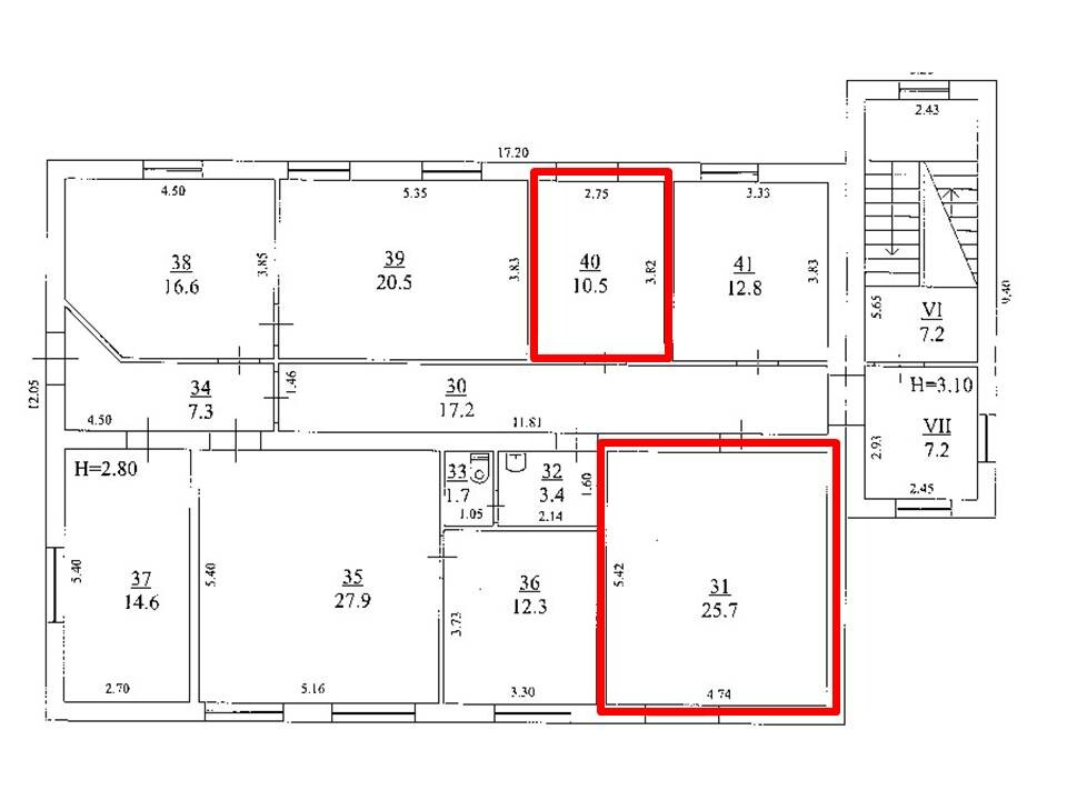
Площа:
36.20 м2
Тип об’єкта:
Приміщення
Тип аукціону:
Англійський аукціон
Статус аукціону:
Аукціон не відбувся
Тип угоди:
Оренда
Розмір мінімального кроку:
100.00 ₴
Розмір гарантійного внеску:
1 407.46 ₴
Початок прийому пропозицій:
16.04.2020 11:34:46
Завершення прийому пропозицій:
17.05.2020 20:00:00
Лот:
UA-PS-2020-04-16-000016-2
№ лоту (УТК):
UTK160420_06
Лот виставляється на торги (раз):
1
Стислий опис майна:
Пропонуються до оренди приміщення 3-го поверху. Будівля знаходиться на околиці міста, розвинена інфраструктура, високий автомобільний потік.
Адреса місцезнаходження майна:
Україна, Івано-Франківська обл., м. Івано-Франківськ, вул. Ю.Целевича, 18а
Схожі пропозиції
11.03.2025
Івано-Франківська обл., Коломийський р-н, м. Коломия, вул. Чорновола, 45. Оренда – приміщення 4-го поверху, площею 14,8 м.кв (В)
550.56 грн
37.20 грн / м2
Приміщення
Івано-Франківська обл., Коломийський р-н, м. Коломия, вул. Чорновола, 45. Оренда – приміщення 4-го поверху, площею 14,8 м.кв (В)
Україна, Івано-Франківська обл., Коломийський р-н, м. Коломия, вул. Чорновола, 45
Івано-Франківська обл., Калуський район, смт.Рожнятів, площа Єдності, 9, оренда – Приміщення 3-го поверху площею 109,6 м.кв. (В)
500.87 грн
4.57 грн / м2
Приміщення
Івано-Франківська обл., Калуський район, смт.Рожнятів, площа Єдності, 9, оренда – Приміщення 3-го поверху площею 109,6 м.кв. (В)
Україна, Івано-Франківська обл., Рожнятів, площа Єдності, 9
Івано-Франківська обл., м. Калуш, вул. Долинська, 36. Оренда приміщень 2-го поверху.
1 158.41 грн
35.21 грн / м2
Приміщення
Івано-Франківська обл., м. Калуш, вул. Долинська, 36. Оренда приміщень 2-го поверху.
Україна, Івано-Франківська обл., м. Калуш, вул. Долинська, 36
29.11.2022
Івано-Франківська обл., Калуський район, смт.Рожнятів, площа Єдності, 9, оренда – Приміщення 3-го поверху площею 100,8 м.кв. (В)
1 257.98 грн
12.48 грн / м2
Приміщення
Івано-Франківська обл., Калуський район, смт.Рожнятів, площа Єдності, 9, оренда – Приміщення 3-го поверху площею 100,8 м.кв. (В)
Україна, Івано-Франківська обл., смт. Рожнятів, площа Єдності, 9