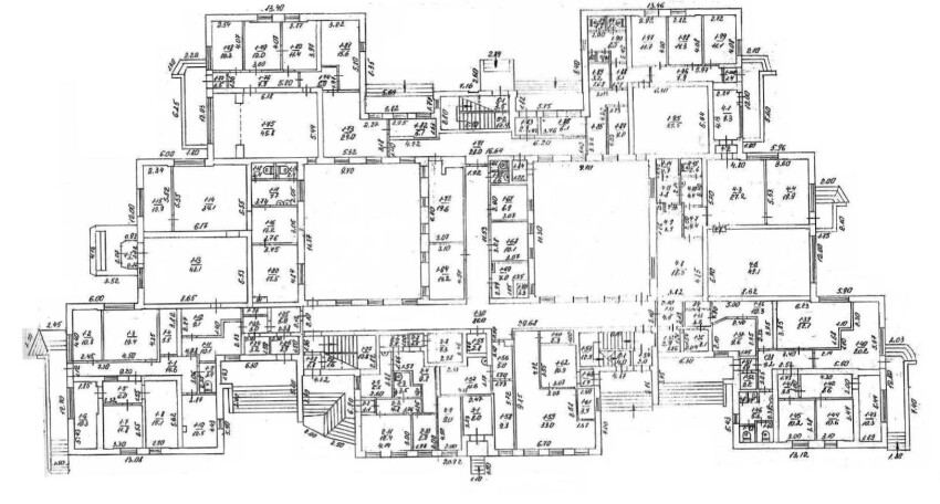
м. Чернігів, вул. Коцюбинського, 50а. Оренда адмінбудівлі площею 2292,4 кв.м.

75 878.44 грн
33.10 грн / м2
Україна, Чернігівська обл., м. Чернігів, вул. Коцюбинського, 50а
Перейти до аукціону на сайті
  • Інформація
  • Опис
  • Документи
Дата оголошення пропозиції:
10 серпня 2020
Площа:
2292.40 м2
Тип об’єкта:
Адмінбудівля
Тип аукціону:
Англійський аукціон
Статус аукціону:
Аукціон не відбувся
Тип угоди:
Оренда
Розмір мінімального кроку:
1 500.00 ₴
Розмір гарантійного внеску:
45 527.06 ₴
Початок прийому пропозицій:
10.08.2020 10:28:28
Завершення прийому пропозицій:
08.09.2020 20:00:00
Лот:
UA-PS-2020-08-10-000011-2
№ лоту (УТК):
UTK230420_06
Лот виставляється на торги (раз):
4
Стислий опис майна:
Пропонується до оренди двоповерхова адмінбудівля площею 2292,4 кв.м. Будівля знаходиться в центрі м. Чернігів, навколо малоповерхова житлова забудова та органи місцевого самоврядування. Високі автомобільний та пішохідний потоки. Зручна транспортна інфраструктура.
Адреса місцезнаходження майна:
Україна, Чернігівська обл., м. Чернігів, вул. Коцюбинського, 50а
Схожі пропозиції
16.11.2023
Чернігівська обл. м. Чернігів, вул. Коцюбинського, 50-А.Оренда – адміністративна будівля площею 2292,40 кв.м (В)
146 621.90 грн
63.96 грн / м2
Адмінбудівля
Чернігівська обл. м. Чернігів, вул. Коцюбинського, 50-А.Оренда – адміністративна будівля площею 2292,40 кв.м (В)
Україна, Чернігівська обл., м. Чернігів, вул. Коцюбинського, 50-А
м. Чернігів, вул. Ринкова, 2. Оренда - адміністративна будівля площею 1539,6 кв.м. (В)
36 042.04 грн
23.41 грн / м2
Адмінбудівля
м. Чернігів, вул. Ринкова, 2. Оренда - адміністративна будівля площею 1539,6 кв.м. (В)
Україна, Чернігівська обл., м. Чернігів, вул. Ринкова, 2
27.09.2024
Чернігівська обл. м. Чернігів, вул. Коцюбинського, 50-А.Оренда – адміністративна будівля площею 2292,40 кв.м (В)
104 739.76 грн
45.69 грн / м2
Адмінбудівля
Чернігівська обл. м. Чернігів, вул. Коцюбинського, 50-А.Оренда – адміністративна будівля площею 2292,40 кв.м (В)
Україна, Чернігівська обл., м. Чернігів, вул. Коцюбинського, 50-А
21.08.2024
Чернігівська обл. м. Чернігів, вул. Коцюбинського, 50-А.Оренда – адміністративна будівля площею 2292,40 кв.м (В)
104 739.76 грн
45.69 грн / м2
Адмінбудівля
Чернігівська обл. м. Чернігів, вул. Коцюбинського, 50-А.Оренда – адміністративна будівля площею 2292,40 кв.м (В)
Україна, Чернігівська обл., м. Чернігів, вул. Коцюбинського, 50-А
Переглянуті пропозиції
16.07.2025
Довгострокова Дніпропетровська обл., м. Жовті Води, бул. Свободи, 39
30 154.32 грн
44.64 грн / м2
Приміщення
Довгострокова Дніпропетровська обл., м. Жовті Води, бул. Свободи, 39
Україна, Дніпропетровська обл., Жовті Води, бульвар Свободи, 39
16.07.2025
м. Харків, вул. Старошишківська,5а. Оренда – приміщення 1-го поверху площею 36,0 кв.м (В)
1 598.76 грн
44.41 грн / м2
Приміщення
м. Харків, вул. Старошишківська,5а. Оренда – приміщення 1-го поверху площею 36,0 кв.м (В)
Україна, Харківська обл., м. Харків, вул. Старошишківська,5а
03.06.2025
м. Харків, Салтівське шосе, 2. Оренда – приміщення 2-го поверху, площею 343,7 кв.м (В)
10 654.70 грн
31.00 грн / м2
Приміщення
м. Харків, Салтівське шосе, 2. Оренда – приміщення 2-го поверху, площею 343,7 кв.м (В)
Україна, Харківська обл., м. Харків, Салтівське шосе, 2