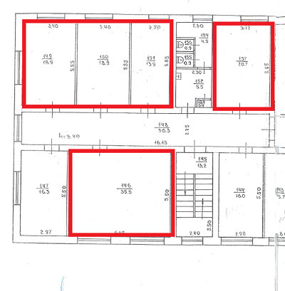
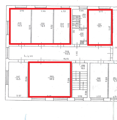
м. Рівне, вул. В. Чорновола, 1. Оренда – приміщення 5-го поверху площею 107,9 кв.м. (В)

2 990.99 грн
27.72 грн / м2
Україна, Рівненська обл., м. Рівне, вул. В. Чорновола, буд. 1
Перейти до аукціону на сайті
  • Інформація
  • Опис
  • Документи
Дата оголошення пропозиції:
05 листопада 2020
Площа:
107.90 м2
Тип об’єкта:
Приміщення
Тип аукціону:
Англійський аукціон
Статус аукціону:
Аукціон не відбувся
Тип угоди:
Оренда
Розмір мінімального кроку:
100.00 ₴
Розмір гарантійного внеску:
1 794.59 ₴
Початок прийому пропозицій:
05.11.2020 13:54:14
Завершення прийому пропозицій:
07.12.2020 20:00:00
Проведення аукціону:
08.12.2020 15:02:47
Лот:
UA-PS-2020-11-05-000032-2
№ лоту (УТК):
UTK270520_03P
Лот виставляється на торги (раз):
6
Стислий опис майна:
Пропонуються до оренди приміщення на 5-му поверсі площею 107,9кв.м. Будівля знаходиться в центральній частині міста. Розвинена інфраструктура, високі автомобільні та пішохідні потоки. Поряд центральна площа та міський парк . Характеристики: кількість поверхів – 5; опалення, водопостачання, водовідведення - централізоване; земельна ділянка – 0, 1652 га (договір оренди)
Адреса місцезнаходження майна:
Україна, Рівненська обл., м. Рівне, вул. В. Чорновола, буд. 1
Схожі пропозиції
28.12.2023
Рівненська обл., Рівненський р-н., с. Балашівка, вул. Незалежності, 52;   Оренда – нежитлове приміщення площею 12,9 кв.м. (В)
258.00 грн
20.00 грн / м2
Приміщення
Рівненська обл., Рівненський р-н., с. Балашівка, вул. Незалежності, 52; Оренда – нежитлове приміщення площею 12,9 кв.м. (В)
Україна, Рівненська обл., Балашівка, вул. Незалежності, 52
Рівненська обл., Вараський р-н. смт. Зарічне, вул. Центральна, 6а. Оренда – приміщення 3 поверху площею 80,8 м. кв. (В)
3 781.44 грн
46.80 грн / м2
Приміщення
Рівненська обл., Вараський р-н. смт. Зарічне, вул. Центральна, 6а. Оренда – приміщення 3 поверху площею 80,8 м. кв. (В)
Україна, Рівненська обл., Вараський р-н. смт. Зарічне, вул. Центральна, 6а
25.07.2025
Рівненська обл., Вараський р-н., с. Довговоля, вул. Грушевського, 9/2а. Оренда – нежитлові приміщення площею 33,4 кв.м. (В)
822.31 грн
24.62 грн / м2
Приміщення
Рівненська обл., Вараський р-н., с. Довговоля, вул. Грушевського, 9/2а. Оренда – нежитлові приміщення площею 33,4 кв.м. (В)
Україна, Рівненська обл., Вараський р-н., с. Довговоля, вул. Грушевського, 9/2а
09.05.2023
Рівненська обл., Варашський р-н, с. Дібрівськ, вул.Центральна, 1. Оренда – приміщення 1 поверху площею 25,5 кв. м. (В)
500.06 грн
19.61 грн / м2
Приміщення
Рівненська обл., Варашський р-н, с. Дібрівськ, вул.Центральна, 1. Оренда – приміщення 1 поверху площею 25,5 кв. м. (В)
Україна, Рівненська обл., Варашський р-н, с. Дібрівськ, вул.Центральна, 1
Переглянуті пропозиції
Рівненська обл., м. Корець, вул. Київська, 67а. Оренда – приміщення 2-го поверху
906.29 грн
14.98 грн / м2
Приміщення
Рівненська обл., м. Корець, вул. Київська, 67а. Оренда – приміщення 2-го поверху
Україна, Рівненська обл., м. Корець, вул. Київська, буд. 67а
22.04.2025
Сумська обл., м. Суми, вул. Нижньосироватська, 64;   Оренда – приміщення складу площею 42,6 кв. м. (В)
1 278.00 грн
30.00 грн / м2
Приміщення
Сумська обл., м. Суми, вул. Нижньосироватська, 64; Оренда – приміщення складу площею 42,6 кв. м. (В)
Україна, Сумська обл., Суми, вул.Нижньосироватська буд., 64
30.12.2022
Закарпатська обл., м. Берегово, пл. Ф. Ракоці, 3 «літ.А». Оренда – приміщення 2-го поверху площею 220,5 кв.м. (В)
3 276.63 грн
14.86 грн / м2
Приміщення
Закарпатська обл., м. Берегово, пл. Ф. Ракоці, 3 «літ.А». Оренда – приміщення 2-го поверху площею 220,5 кв.м. (В)
Україна, Закарпатська обл., м. Берегово, пл. Ф. Ракоці, 3 «літ.А»
26.12.2024
Рівненська обл., Рівненський р-н., с. Балашівка, вул. Незалежності, 52;   Оренда – нежитлове приміщення площею 12,9 кв.м. (В)
258.00 грн
20.00 грн / м2
Приміщення
Рівненська обл., Рівненський р-н., с. Балашівка, вул. Незалежності, 52; Оренда – нежитлове приміщення площею 12,9 кв.м. (В)
Україна, Рівненська обл., Балашівка, вул. Незалежності, 52