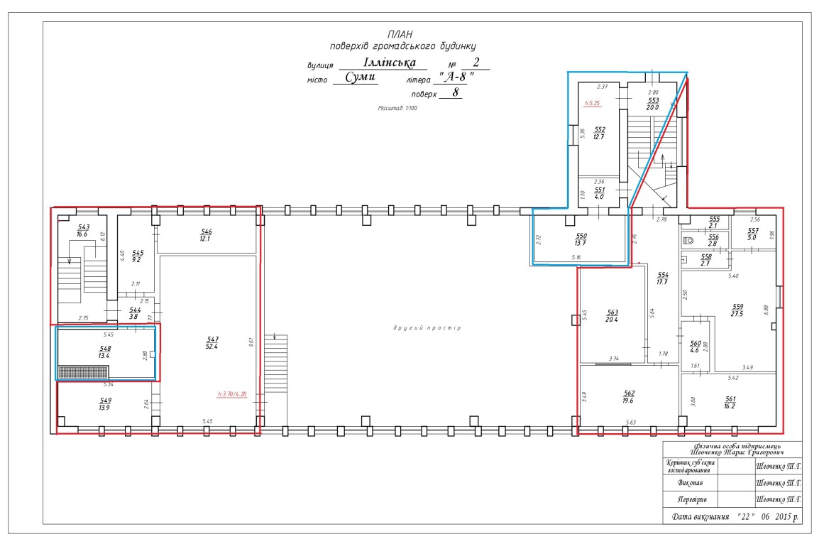
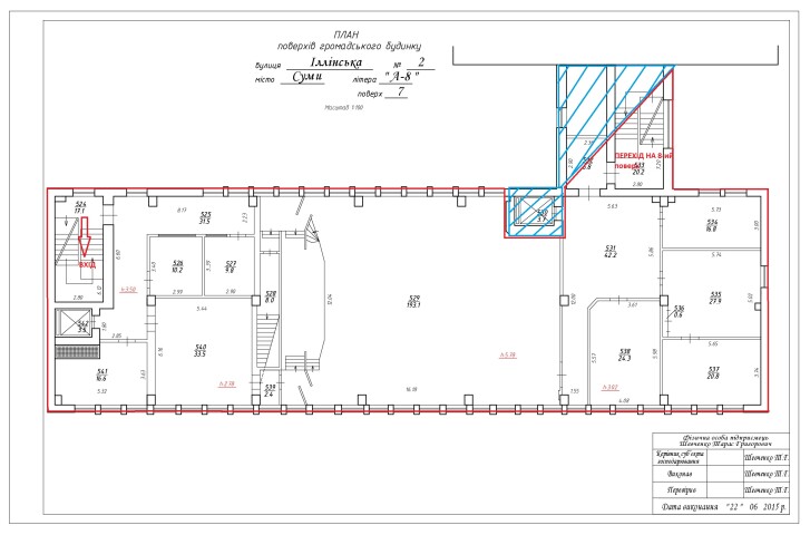
Сумська обл., м. Суми, вул. Іллінська, буд. 2. Оренда – приміщення 7-го та 8-го поверхів площею 708,40 кв.м. (В)

5 057.98 грн
7.14 грн / м2
Україна, Сумська обл., м. Суми, вул. Іллінська, 2
Перейти до аукціону на сайті
  • Інформація
  • Опис
  • Документи
Дата оголошення пропозиції:
13 січня 2021
Площа:
708.40 м2
Тип об’єкта:
Приміщення
Тип аукціону:
Англійський аукціон
Статус аукціону:
Аукціон не відбувся
Тип угоди:
Оренда
Розмір мінімального кроку:
400.00 ₴
Розмір гарантійного внеску:
3 034.79 ₴
Початок прийому пропозицій:
13.01.2021 10:43:42
Завершення прийому пропозицій:
11.02.2021 20:00:00
Лот:
UA-PS-2021-01-13-000027-1
№ лоту (УТК):
UTK240420_06
Лот виставляється на торги (раз):
9
Стислий опис майна:
Пропонуються до оренди приміщення 7-го та 8-го поверхів площею 708,40 кв.м. (офісного типу) 8-поверхового будинку зв`язку в центральній частині міста. Окремий вхід з фасаду будівлі. Чудова візуалізація з дороги, поруч зупинки, магазини, аптеки, універмаг. Відсутній доступ до приміщення мало мобільних груп населення. Ліфт потребує капітального ремонту (відключений).
Адреса місцезнаходження майна:
Україна, Сумська обл., м. Суми, вул. Іллінська, 2
Схожі пропозиції
17.11.2023
Сумська обл., Роменський р-н., с. Хоружівка, вул. б/н. Оренда – частина нежитлового приміщення площею 38,70 кв.м. (В)
2 042.97 грн
52.79 грн / м2
Приміщення
Сумська обл., Роменський р-н., с. Хоружівка, вул. б/н. Оренда – частина нежитлового приміщення площею 38,70 кв.м. (В)
Україна, Сумська обл., Роменський р-н., с. Хоружівка, вул. б/н
17.11.2023
Сумська обл., Конотопський р-н, с. Шпотівка, вул. Виробнича, буд. 20;   Оренда – нежитлове приміщення площею 26,1 кв.м. (В)
501.12 грн
19.20 грн / м2
Приміщення
Сумська обл., Конотопський р-н, с. Шпотівка, вул. Виробнича, буд. 20; Оренда – нежитлове приміщення площею 26,1 кв.м. (В)
Україна, Сумська обл., Шпотівка, вул. Виробнича, буд. 20
21.03.2024
Сумська обл., смт. Недригайлів, вул. Незалежності, буд. 8;   Оренда – приміщення 3-го поверху площею 118,60  кв.м. (В)
590.63 грн
4.98 грн / м2
Приміщення
Сумська обл., смт. Недригайлів, вул. Незалежності, буд. 8; Оренда – приміщення 3-го поверху площею 118,60 кв.м. (В)
Україна, Сумська обл., смт. Недригайлів, вул. Незалежності, буд. 8
Сумська обл., м. Суми, вул. Івана Сірка, буд. 9. Оренда – приміщення 3-го поверху площею 176,40 кв.м. (П)
5 071.50 грн
28.75 грн / м2
Приміщення
Сумська обл., м. Суми, вул. Івана Сірка, буд. 9. Оренда – приміщення 3-го поверху площею 176,40 кв.м. (П)
Україна, Сумська обл., м. Суми, вул. Івана Сірка, буд. 9
Переглянуті пропозиції
07.01.2025
Полтавська обл., Миргородський р-н, смт. Велика Багачка, вулиця Чекалових, 17;  Оренда – приміщення 2-го поверху загальною площею 29,00 кв.м. (В)
1 008.74 грн
34.78 грн / м2
Приміщення
Полтавська обл., Миргородський р-н, смт. Велика Багачка, вулиця Чекалових, 17; Оренда – приміщення 2-го поверху загальною площею 29,00 кв.м. (В)
Україна, Полтавська обл., Велика Багачка, вулиця Чекалових, 17
30.06.2023
м. Харків, просп. Олександрівський, 83. Оренда – приміщення 1-го поверху площею 25,90 кв.м. (В)
1 196.58 грн
46.20 грн / м2
Приміщення
м. Харків, просп. Олександрівський, 83. Оренда – приміщення 1-го поверху площею 25,90 кв.м. (В)
Україна, Харківська обл., м. Харків, просп. Олександрівський, 83
30.07.2024
Рівненська обл., м. Рівне, вул. Дубенська, 44б. Оренда – приміщення 1-го поверху одноповерхової будівлі площею 65,1 кв.м. (В)
6 238.53 грн
95.83 грн / м2
Приміщення
Рівненська обл., м. Рівне, вул. Дубенська, 44б. Оренда – приміщення 1-го поверху одноповерхової будівлі площею 65,1 кв.м. (В)
Україна, Рівненська обл., м. Рівне, вул. Дубенська, 44б
21.12.2022
Чернігівська обл., смт. Сосниця, вул. Б. Хмельницького, 16. Оренда – підвальне приміщення площею 31,35 кв.м. (В)
404.42 грн
12.90 грн / м2
Приміщення
Чернігівська обл., смт. Сосниця, вул. Б. Хмельницького, 16. Оренда – підвальне приміщення площею 31,35 кв.м. (В)
Україна, Чернігівська обл., смт. Сосниця, вул. Б. Хмельницького, 16