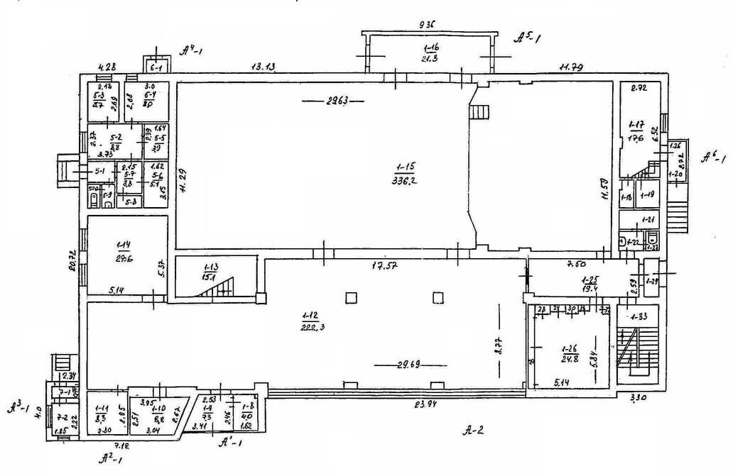
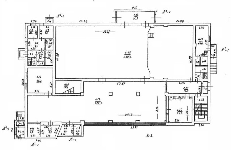
м. Чернігів, вул. Ринкова, 2. Оренда - адміністративна будівля площею 1539,6 кв.м. (В)

36 042.04 грн
23.41 грн / м2
Україна, Чернігівська обл., м. Чернігів, вул. Ринкова, 2
Перейти до аукціону на сайті
  • Інформація
  • Опис
  • Документи
Дата оголошення пропозиції:
27 січня 2021
Площа:
1539.60 м2
Тип об’єкта:
Адмінбудівля
Тип аукціону:
Англійський аукціон
Статус аукціону:
Аукціон не відбувся
Тип угоди:
Оренда
Розмір мінімального кроку:
500.00 ₴
Розмір гарантійного внеску:
21 625.22 ₴
Початок прийому пропозицій:
27.01.2021 14:16:40
Завершення прийому пропозицій:
25.02.2021 20:00:00
Лот:
UA-PS-2021-01-27-000070-1
№ лоту (УТК):
UTK170920_02P
Лот виставляється на торги (раз):
5
Стислий опис майна:
Пропонується до оренди адміністративна будівля площею 1539,6кв.м. Будівля знаходиться в центральній частині міста, розвинена інфраструктура, високі автомобільний та пішохідний потоки. Характеристики: кількість поверхів – 2; загальна площа – 1 539,6 кв.м. площа запропонована до оренди – 1 539,6 кв.м земельна ділянка – 0,1415 га (договір оренди)
Адреса місцезнаходження майна:
Україна, Чернігівська обл., м. Чернігів, вул. Ринкова, 2
Схожі пропозиції
30.09.2025
Довгострокова оренда! Чернігівська обл. м. Чернігів, вул. Коцюбинського, 50-А. Оренда – частина адміністративної будівлі площею 2292,40 кв.м (В)
89 862.08 грн
39.20 грн / м2
Адмінбудівля
Довгострокова оренда! Чернігівська обл. м. Чернігів, вул. Коцюбинського, 50-А. Оренда – частина адміністративної будівлі площею 2292,40 кв.м (В)
Україна, Чернігівська обл., Чернігів, вулиця Коцюбинського, 50-А
21.03.2024
Чернігівська обл. м. Чернігів, вул. Коцюбинського, 50-А.Оренда – адміністративна будівля площею 2292,40 кв.м (В)
104 739.76 грн
45.69 грн / м2
Адмінбудівля
Чернігівська обл. м. Чернігів, вул. Коцюбинського, 50-А.Оренда – адміністративна будівля площею 2292,40 кв.м (В)
Україна, Чернігівська обл., м. Чернігів, вул. Коцюбинського, 50-А
м. Чернігів, вул. Ринкова, 2. Оренда - адміністративна будівля площею 1539,6 кв.м. (В)
36 042.04 грн
23.41 грн / м2
Адмінбудівля
м. Чернігів, вул. Ринкова, 2. Оренда - адміністративна будівля площею 1539,6 кв.м. (В)
Україна, Чернігівська обл., м. Чернігів, вул. Ринкова, 2
м. Чернігів, вул. Коцюбинського, 50а. Оренда адмінбудівлі площею 2292,4 кв.м.
75 878.44 грн
33.10 грн / м2
Адмінбудівля
м. Чернігів, вул. Коцюбинського, 50а. Оренда адмінбудівлі площею 2292,4 кв.м.
Україна, Чернігівська обл., м. Чернігів, вул. Коцюбинського, 50а
Переглянуті пропозиції
22.04.2025
м. Харків, вул. Конторська,14.Оренда – приміщення 4-го поверху площею 25,8 кв.м (В)
774.00 грн
30.00 грн / м2
Приміщення
м. Харків, вул. Конторська,14.Оренда – приміщення 4-го поверху площею 25,8 кв.м (В)
Україна, Харківська обл., м. Харків, вул. Конторська,14