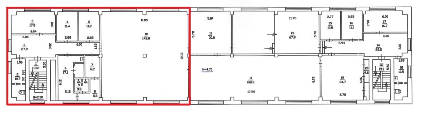
м. Київ, вул. Олени Теліги, 39-г, літ. «А» (В), оренда – приміщення виробничої будівлі, площею 1116,90 м2

160 163.46 грн
143.40 грн / м2
Україна, м.Київ, Київ, вул. Олени Теліги, 39-Г
Перейти до аукціону на сайті
  • Інформація
  • Опис
  • Документи
Дата оголошення пропозиції:
07 липня 2021
Площа:
1116.90 м2
Тип об’єкта:
Приміщення
Тип аукціону:
Англійський аукціон
Статус аукціону:
Аукціон не відбувся
Тип угоди:
Оренда
Розмір мінімального кроку:
2 000.00 ₴
Розмір гарантійного внеску:
96 098.08 ₴
Початок прийому пропозицій:
07.07.2021 12:43:21
Завершення прийому пропозицій:
05.08.2021 20:00:00
Лот:
UA-PS-2021-07-07-000039-1
№ лоту (УТК):
UTK070721_01Т
Лот виставляється на торги (раз):
1
Стислий опис майна:
Пропонуються до оренди приміщення виробничої будівлі, літ. «А», площею 1116,90 м2. Будівля розташована в Шевченківському районі міста Києва, місцевість Сирець. Поруч розвинена інфраструктура, зупинки маршрутного транспорту, супермаркети, 5 хв. від ст. м. «Дорогожичі». Вхід з двору. Доступ 24/7. Характеристики • кількість поверхів – 3; • сан. вузол, каналізація, теплозабезпечення – присутнє, не задовільний стан; • площа будівлі – літ. «А» - 2000,40 м2; • опалення централізоване (міське); • земельна ділянка – 0,3000 га;
Адреса місцезнаходження майна:
Україна, м.Київ, Київ, вул. Олени Теліги, 39-Г
Схожі пропозиції
27.11.2025
м. Київ, вул. Дегтярівська, 28А, літ. «А» (Шевченківський р-н). Оренда – група приміщень у підвалі, загальною площею – 269,80 кв.м (В)
49 260.08 грн
182.58 грн / м2
Приміщення
м. Київ, вул. Дегтярівська, 28А, літ. «А» (Шевченківський р-н). Оренда – група приміщень у підвалі, загальною площею – 269,80 кв.м (В)
Україна, м.Київ, Київ, вул. Дегтярівська, 28А, літ. «А»
31.05.2023
ДОВГОСТРОКОВА ОРЕНДА! м. Київ, вул. Салютна, 5а, літ. «Б». Оренда – приміщення 3-го та 4-го поверхів площею 992,8 кв.м. (В)
21.03.2025
 м. Київ, вул. Архітектора Вербицького, 3 (Дарницький р-н). Оренда – Приміщення підвалу, площею 198,70 кв.м. (В)
23 104.84 грн
116.28 грн / м2
Приміщення
м. Київ, вул. Архітектора Вербицького, 3 (Дарницький р-н). Оренда – Приміщення підвалу, площею 198,70 кв.м. (В)
Україна, м.Київ, Київ, 02091, м. Київ, вул. Архітектора Вербицького , 3
19.08.2025
м. Київ, вул. Джона Маккейна, 40, літ. «А» (Печерський р-н). Оренда – група приміщень на 1-му поверсі, площею 34,70 кв.м (В)
7 039.59 грн
202.87 грн / м2
Приміщення
м. Київ, вул. Джона Маккейна, 40, літ. «А» (Печерський р-н). Оренда – група приміщень на 1-му поверсі, площею 34,70 кв.м (В)
Україна, м.Київ, Київ, 01042, м. Київ, вул. Джона Маккейна, 40, літ. «А» (Печерський р-н)