м. Київ, вул. Архітектора Вербицького, 3 (Дарницький р-н). Оренда – Приміщення підвалу, площею 198,70 кв.м. (В)

23 104.84 грн
116.28 грн / м2
Україна, м.Київ, Київ, 02091, м. Київ, вул. Архітектора Вербицького , 3
Перейти до аукціону на сайті
  • Інформація
  • Опис
  • Документи
Дата оголошення пропозиції:
21 лютого 2025
Площа:
198.70 м2
Тип об’єкта:
Приміщення
Тип аукціону:
Англійський аукціон
Статус аукціону:
Аукціон не відбувся
Тип угоди:
Оренда
Розмір мінімального кроку:
300.00 ₴
Розмір гарантійного внеску:
13 862.90 ₴
Початок прийому пропозицій:
21.02.2025 02:40:26
Завершення прийому пропозицій:
20.03.2025 20:00:00
Проведення аукціону:
21.03.2025 11:00:00
Лот:
CLE001-UA-20250221-06924
№ лоту (УТК):
UTK200225_40U
Лот виставляється на торги (раз):
1
Стислий опис майна:
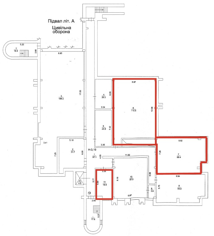
Пропонується до оренди приміщення підвалу, площею 198,70кв.м. Будівля знаходиться в Дарницькому районі міста Києва, житловий масив Харківський. Зупинки маршрутного транспорту, супермаркети, торгово-розважальні центри. Найближчі станції метро «Харківська», «Вирлиця». Вхід з двору. Характеристики: • загальна площа будівлі – 4804,70 кв.м. ; • кількість поверхів – 5; • опалення централізоване (міське); • земельна ділянка – 0,55 га; • каналізація, водозабезпечення, сан. вузол – відсутні;
Адреса місцезнаходження майна:
Україна, м.Київ, Київ, 02091, м. Київ, вул. Архітектора Вербицького , 3
Схожі пропозиції
18.10.2022
м. Київ, вул. Дегтярівська, 28-А. Оренда – приміщення 3-го поверху площею 853,34 кв.м. (В)
73 318.97 грн
85.92 грн / м2
Приміщення
м. Київ, вул. Дегтярівська, 28-А. Оренда – приміщення 3-го поверху площею 853,34 кв.м. (В)
Україна, м.Київ, Київ, вулиця Дегтярівська, 28А
08.05.2024
ДОВГОСТРОКОВА ОРЕНДА! м. Київ, вул. Героїв Севастополя, 39/8 літ. «Е»;  Оренда – приміщення 2-го та 4-го поверхів, площею 1751,8 кв.м. (В)
239 944.05 грн
136.97 грн / м2
Приміщення
ДОВГОСТРОКОВА ОРЕНДА! м. Київ, вул. Героїв Севастополя, 39/8 літ. «Е»; Оренда – приміщення 2-го та 4-го поверхів, площею 1751,8 кв.м. (В)
Україна, м.Київ, Київ, вул. Героїв Севастополя, 39/8(Е)
26.10.2023
ДОВГОСТРОКОВА ОРЕНДА! м. Київ, вул. Героїв Севастополя, 39/8 літ. «Е». Оренда – приміщення 2-го та 4-го поверхів, площею 1751,8 кв.м. (В)
239 944.05 грн
136.97 грн / м2
Приміщення
ДОВГОСТРОКОВА ОРЕНДА! м. Київ, вул. Героїв Севастополя, 39/8 літ. «Е». Оренда – приміщення 2-го та 4-го поверхів, площею 1751,8 кв.м. (В)
Україна, м.Київ, Київ, вулиця Героїв Севастополя, 39
11.03.2025
ДОВГОСТРОКОВА ОРЕНДА!  м. Київ, пр-т Оболонський, 32-Б ;  Оренда – приміщення 4-го поверху, площею 772,40 м2 (В)
112 152.48 грн
145.20 грн / м2
Приміщення
ДОВГОСТРОКОВА ОРЕНДА! м. Київ, пр-т Оболонський, 32-Б ; Оренда – приміщення 4-го поверху, площею 772,40 м2 (В)
Україна, м.Київ, Київ, Оболонський проспект, 32-Б
Переглянуті пропозиції
04.03.2025
м. Харків, вул. Конторська,14.Оренда – приміщення 2-го поверху площею 26,3 кв.м (В)
789.00 грн
30.00 грн / м2
Приміщення
м. Харків, вул. Конторська,14.Оренда – приміщення 2-го поверху площею 26,3 кв.м (В)
Україна, Харківська обл., м. Харків, вул. Конторська,14
06.02.2024
м.Харків, пр-т Ювілейний, 66 ;   Оренда – приміщення 1-го поверху площею 57,6 кв.м (В)
6 734.02 грн
116.91 грн / м2
Приміщення
м.Харків, пр-т Ювілейний, 66 ; Оренда – приміщення 1-го поверху площею 57,6 кв.м (В)
Україна, Харківська обл., Харків, проспект Ювілейний, 66
03.04.2024
Рівненська обл., м. Рівне, вул. Соборна, 271. Оренда – приміщення 2-го поверху площею 430,5 кв.м. (В)
30 410.52 грн
70.64 грн / м2
Приміщення
Рівненська обл., м. Рівне, вул. Соборна, 271. Оренда – приміщення 2-го поверху площею 430,5 кв.м. (В)
Україна, Рівненська обл., м. Рівне, вул. Соборна, 271
30.12.2022
ДОВГОСТРОКОВА ОРЕНДА! м. Київ, вул. Салютна, 5а, літ. «Б». Оренда – приміщення 3-го та 4-го поверхів площею 992,8 кв.м. (В)