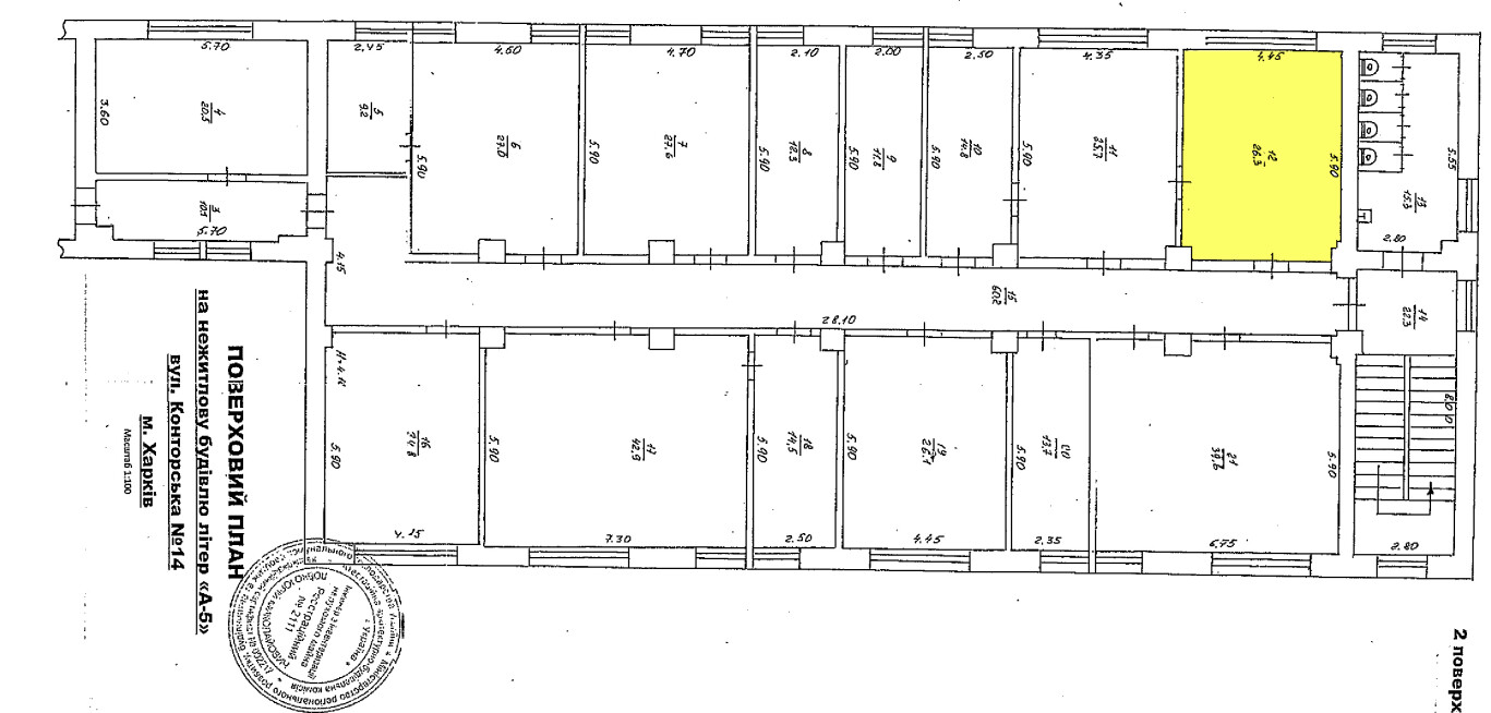
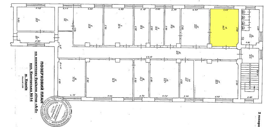
м. Харків, вул. Конторська,14.Оренда – приміщення 2-го поверху площею 26,3 кв.м (В)

789.00 грн
30.00 грн / м2
Україна, Харківська обл., м. Харків, вул. Конторська,14
Перейти до аукціону на сайті
  • Інформація
  • Опис
  • Документи
Дата оголошення пропозиції:
31 січня 2025
Площа:
26.30 м2
Тип об’єкта:
Приміщення
Тип аукціону:
Англійський аукціон
Статус аукціону:
Аукціон не відбувся
Тип угоди:
Оренда
Розмір мінімального кроку:
50.00 ₴
Розмір гарантійного внеску:
473.40 ₴
Початок прийому пропозицій:
31.01.2025 15:31:07
Завершення прийому пропозицій:
03.03.2025 20:00:00
Проведення аукціону:
04.03.2025 11:00:00
Лот:
CLE001-UA-20250131-12907
№ лоту (УТК):
UTK070723_11P
Лот виставляється на торги (раз):
10
Стислий опис майна:
Пропонується до оренди приміщення 2-го поверху площею 26,3 кв.м. Будівля в центрі міста Харкова. 15 хв до метро Центральний ринок. Характеристики: Кількість поверхів – 4; Загальна площа – 5611,00 кв.м_ Площа запропонована до оренди – 26,3 кв.м Дозволена потужність – 4 кВт Теплопостачання - відсутнє Земельна ділянка – 0,5169 га
Адреса місцезнаходження майна:
Україна, Харківська обл., м. Харків, вул. Конторська,14
Схожі пропозиції
Харківська обл., м. Харків, просп. Олександрівський, 83. Оренда – приміщення гаражу
993.00 грн
30.00 грн / м2
Приміщення
Харківська обл., м. Харків, просп. Олександрівський, 83. Оренда – приміщення гаражу
Україна, Харківська обл., м. Харків, просп. Олександрівський, 83
30.04.2024
м. Харків, пр-т. Г. Сталінграду, 169. Оренда – приміщення 2-го поверху площею 5,5 кв.м. (В)
522.50 грн
95.00 грн / м2
Приміщення
м. Харків, пр-т. Г. Сталінграду, 169. Оренда – приміщення 2-го поверху площею 5,5 кв.м. (В)
Україна, Харківська обл., м. Харків, пр-т. Г. Сталінграду, 169
09.08.2023
м. Харків, вул. Конторська,14.Оренда – приміщення 2-го поверху площею 26,3 кв.м (В)
2 603.70 грн
99.00 грн / м2
Приміщення
м. Харків, вул. Конторська,14.Оренда – приміщення 2-го поверху площею 26,3 кв.м (В)
Україна, Харківська обл., м. Харків, вул. Конторська,14
09.08.2023
м. Харків, вул. Конторська,14.Оренда – приміщення 4-го поверху площею 25,9 кв.м (В)
2 564.10 грн
99.00 грн / м2
Приміщення
м. Харків, вул. Конторська,14.Оренда – приміщення 4-го поверху площею 25,9 кв.м (В)
Україна, Харківська обл., м. Харків, вул. Конторська,14
Переглянуті пропозиції
06.02.2024
м.Харків, пр-т Ювілейний, 66 ;   Оренда – приміщення 1-го поверху площею 57,6 кв.м (В)
6 734.02 грн
116.91 грн / м2
Приміщення
м.Харків, пр-т Ювілейний, 66 ; Оренда – приміщення 1-го поверху площею 57,6 кв.м (В)
Україна, Харківська обл., Харків, проспект Ювілейний, 66
03.04.2024
Рівненська обл., м. Рівне, вул. Соборна, 271. Оренда – приміщення 2-го поверху площею 430,5 кв.м. (В)
30 410.52 грн
70.64 грн / м2
Приміщення
Рівненська обл., м. Рівне, вул. Соборна, 271. Оренда – приміщення 2-го поверху площею 430,5 кв.м. (В)
Україна, Рівненська обл., м. Рівне, вул. Соборна, 271
30.12.2022
ДОВГОСТРОКОВА ОРЕНДА! м. Київ, вул. Салютна, 5а, літ. «Б». Оренда – приміщення 3-го та 4-го поверхів площею 992,8 кв.м. (В)
10.06.2025
м. Київ, бульвар Академіка Вернадського, 79-А (В). Оренда – приміщення 2-го поверху, загальною площею – 37,70 кв.м.
4 496.86 грн
119.28 грн / м2
Приміщення
м. Київ, бульвар Академіка Вернадського, 79-А (В). Оренда – приміщення 2-го поверху, загальною площею – 37,70 кв.м.
Україна, м.Київ, Київ, бульвар Академіка Вернадського, 79А