м. Київ, вул. Дегтярівська, 28-А. Оренда – приміщення 3-го поверху площею 853,34 кв.м. (В)

73 318.97 грн
85.92 грн / м2
Україна, м.Київ, Київ, вулиця Дегтярівська, 28А
Перейти до аукціону на сайті
  • Інформація
  • Опис
  • Документи
Дата оголошення пропозиції:
15 вересня 2022
Площа:
853.34 м2
Тип об’єкта:
Приміщення
Тип аукціону:
Англійський аукціон
Статус аукціону:
Аукціон не відбувся
Тип угоди:
Оренда
Розмір мінімального кроку:
700.00 ₴
Розмір гарантійного внеску:
43 991.38 ₴
Початок прийому пропозицій:
15.09.2022 13:40:27
Завершення прийому пропозицій:
17.10.2022 20:00:00
Проведення аукціону:
18.10.2022 11:10:00
Лот:
CLE001-UA-20220915-23317
№ лоту (УТК):
UTK270422_03T
Лот виставляється на торги (раз):
5
Стислий опис майна:
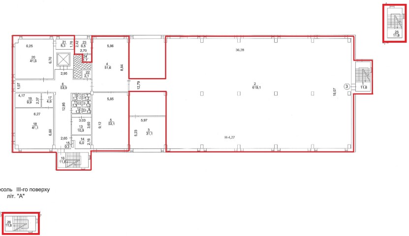
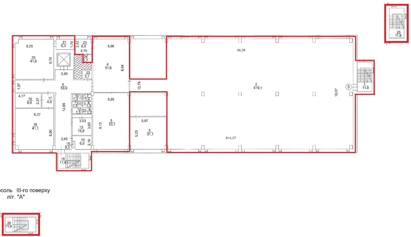
Пропонуються до оренди приміщення 3-го поверху, площею 853,34 м2 . Будівля розташована в Шевченківському районі міста Києва, місцевості Лук'янівка, Сирець, Шулявка. Поруч розвинена інфраструктура, супермаркети, бізнес-центри, зупинки маршрутного транспорту. Найближчі ст. метро «Лук’янівська», «Берестейська». Вхід з двору. Доступ 24/7. Характеристики • загальна площа будівлі – 4710,20 м2 ; • сан. вузол, каналізація, водопостачання – присутне; • кількість поверхів – 4; • опалення централізоване (міське); • площа земельної ділянки – 0,3913 га*; *земельна ділянка не є предметом оренди
Адреса місцезнаходження майна:
Україна, м.Київ, Київ, вулиця Дегтярівська, 28А
Схожі пропозиції
31.05.2023
м. Київ, вул. Ісаакяна, 3 Оренда – Приміщення 2-го поверху площею 149,81 кв.м. (В)
25 401.78 грн
169.56 грн / м2
Приміщення
м. Київ, вул. Ісаакяна, 3 Оренда – Приміщення 2-го поверху площею 149,81 кв.м. (В)
Україна, м.Київ, Київ, вулиця Ісаакяна, 3
23.04.2025
ДОВГОСТРОКОВА ОРЕНДА!  м. Київ, пр-т Оболонський, 32-Б ;  Оренда – приміщення 4-го поверху, площею 772,40 м2 (В)
93 461.94 грн
121.00 грн / м2
Приміщення
ДОВГОСТРОКОВА ОРЕНДА! м. Київ, пр-т Оболонський, 32-Б ; Оренда – приміщення 4-го поверху, площею 772,40 м2 (В)
Україна, м.Київ, Київ, Оболонський проспект, 32-Б
07.09.2022
м. Київ, вул. Миколи Голего, 8. Оренда – приміщення 1-го поверху площею 30,90 м2 (В)
10 011.60 грн
324.00 грн / м2
Приміщення
м. Київ, вул. Миколи Голего, 8. Оренда – приміщення 1-го поверху площею 30,90 м2 (В)
Україна, м.Київ, Київ, вулиця Миколи Голего, 8
26.10.2023
м. Київ, вул. Будівельників, 8-Б;   Оренда – приміщення підвалу, площею 452,6 кв.м. (В)
42 300.00 грн
93.46 грн / м2
Приміщення
м. Київ, вул. Будівельників, 8-Б; Оренда – приміщення підвалу, площею 452,6 кв.м. (В)
Україна, м.Київ, Київ, вулиця Будівельників, 8Б
Переглянуті пропозиції