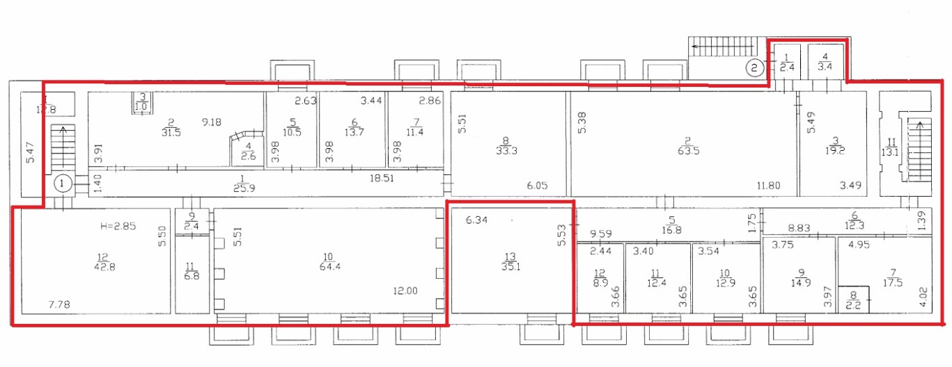
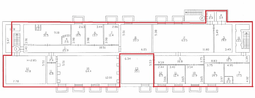
м. Київ, вул. Будівельників, 8-Б, оренда – приміщення підвалу, площею 452,60 кв.м. (В)

42 843.12 грн
94.66 грн / м2
Україна, м.Київ, Київ, вул. Будівельників, 8-Б
Перейти до аукціону на сайті
  • Інформація
  • Опис
  • Документи
Дата оголошення пропозиції:
04 серпня 2021
Площа:
452.60 м2
Тип об’єкта:
Приміщення
Тип аукціону:
Англійський аукціон
Статус аукціону:
Аукціон не відбувся
Тип угоди:
Оренда
Розмір мінімального кроку:
520.00 ₴
Розмір гарантійного внеску:
25 705.87 ₴
Початок прийому пропозицій:
04.08.2021 08:29:04
Завершення прийому пропозицій:
02.09.2021 20:00:00
Лот:
UA-PS-2021-08-04-000001-3
№ лоту (УТК):
UTK020721_01Т
Лот виставляється на торги (раз):
2
Стислий опис майна:
Пропонуються до оренди приміщення 2-го поверху, площею 452,60 м2. Будівля знаходиться у Дніпровському районі міста Києва, місцевість Соцмісто. Поруч розвинена інфраструктура, зупинки маршрутного транспорту, супермаркети, кафе, аптеки, фінансові заклади, зарядна станція UTrecharge Charging Station, в’їзд через майданчик з парко-місцями. Вхід з двору. Доступ 24/7. Характеристики: • кількість поверхів – 3; • опалення централізоване (міське); • земельна ділянка – 0,4851 га*; • загальна площа будівлі – 2022,70 м2; • сан. вузол, каналізація, водопостачання – відсутні; • дозволена потужність – 60 кВт; *земельна ділянка не є предметом оренди.
Адреса місцезнаходження майна:
Україна, м.Київ, Київ, вул. Будівельників, 8-Б
Схожі пропозиції
18.10.2022
м. Київ, вул. Джона Маккейна, №40 , Оренда – приміщення підвалу, площею 44,26 м2 , (В)
11 007.02 грн
249.03 грн / м2
Приміщення
м. Київ, вул. Джона Маккейна, №40 , Оренда – приміщення підвалу, площею 44,26 м2 , (В)
Україна, м.Київ, Київ, вулиця Джона Маккейна, 40
16.08.2022
м. Київ, вул. Макіївська, 3.Оренда – приміщення 2-го поверху, площею 724,10 м2 (В)
33 453.42 грн
46.20 грн / м2
Приміщення
м. Київ, вул. Макіївська, 3.Оренда – приміщення 2-го поверху, площею 724,10 м2 (В)
Україна, м.Київ, Київ, вул. Макіївська, 3
14.10.2025
м. Київ, вул. Макіївська, 3, літ. «А» (Оболонський р-н). Оренда – група приміщень на 1-му поверсі, загальною площею 247,40 кв.м (В)
19 568.10 грн
79.09 грн / м2
Приміщення
м. Київ, вул. Макіївська, 3, літ. «А» (Оболонський р-н). Оренда – група приміщень на 1-му поверсі, загальною площею 247,40 кв.м (В)
Україна, м.Київ, Київ, вул. Макіївська, 3, літ. «А» (Оболонський р-н)
08.04.2025
м. Київ, вул. Наталії Ужвій, 1 (Подільський р-н). Оренда – приміщення 2-го поверху, загальною площею – 78,90 м. кв. (В)
10 320.12 грн
130.80 грн / м2
Приміщення
м. Київ, вул. Наталії Ужвій, 1 (Подільський р-н). Оренда – приміщення 2-го поверху, загальною площею – 78,90 м. кв. (В)
Україна, м.Київ, Київ, вулиця Наталії Ужвій, 1
Переглянуті пропозиції
18.11.2022
Рівненська обл., Вараський р-н. смт. Володимирець вул. Поштова, 23. Оренда – приміщення 1-го поверху площею 52,8 кв.м. (В)
1 172.16 грн
22.20 грн / м2
Приміщення
Рівненська обл., Вараський р-н. смт. Володимирець вул. Поштова, 23. Оренда – приміщення 1-го поверху площею 52,8 кв.м. (В)
Україна, Рівненська обл., Вараський р-н. смт. Володимирець, смт. Володимирець вул. Поштова, 23
17.11.2023
Полтавська обл., Кременчуцький р-н., смт. Семенівка, вул. Воїнів Інтернаціоналістів, 12/9. Оренда – Приміщення 3-го поверху площею 105,6 кв.м. (В)
570.24 грн
5.40 грн / м2
Приміщення
Полтавська обл., Кременчуцький р-н., смт. Семенівка, вул. Воїнів Інтернаціоналістів, 12/9. Оренда – Приміщення 3-го поверху площею 105,6 кв.м. (В)
Україна, Полтавська обл., Кременчуцький р-н., смт. Семенівка, вул. Воїнів Інтернаціоналістів, 12/9
15.10.2025
м. Харків, вул.Сумгаїтська, 9а. Оренда – приміщення 1-го поверху, площею 67,1 кв.м  (В)
2 013.00 грн
30.00 грн / м2
Приміщення
м. Харків, вул.Сумгаїтська, 9а. Оренда – приміщення 1-го поверху, площею 67,1 кв.м (В)
Україна, Харківська обл., м. Харків, вул. Сумгаїтська, 9а
Івано-Франківська обл., Калуський район, смт.Рожнятів, площа Єдності, 9, оренда – Приміщення 3-го поверху площею 109,6 м.кв. (В)
500.87 грн
4.57 грн / м2
Приміщення
Івано-Франківська обл., Калуський район, смт.Рожнятів, площа Єдності, 9, оренда – Приміщення 3-го поверху площею 109,6 м.кв. (В)
Україна, Івано-Франківська обл., Рожнятів, площа Єдності, 9