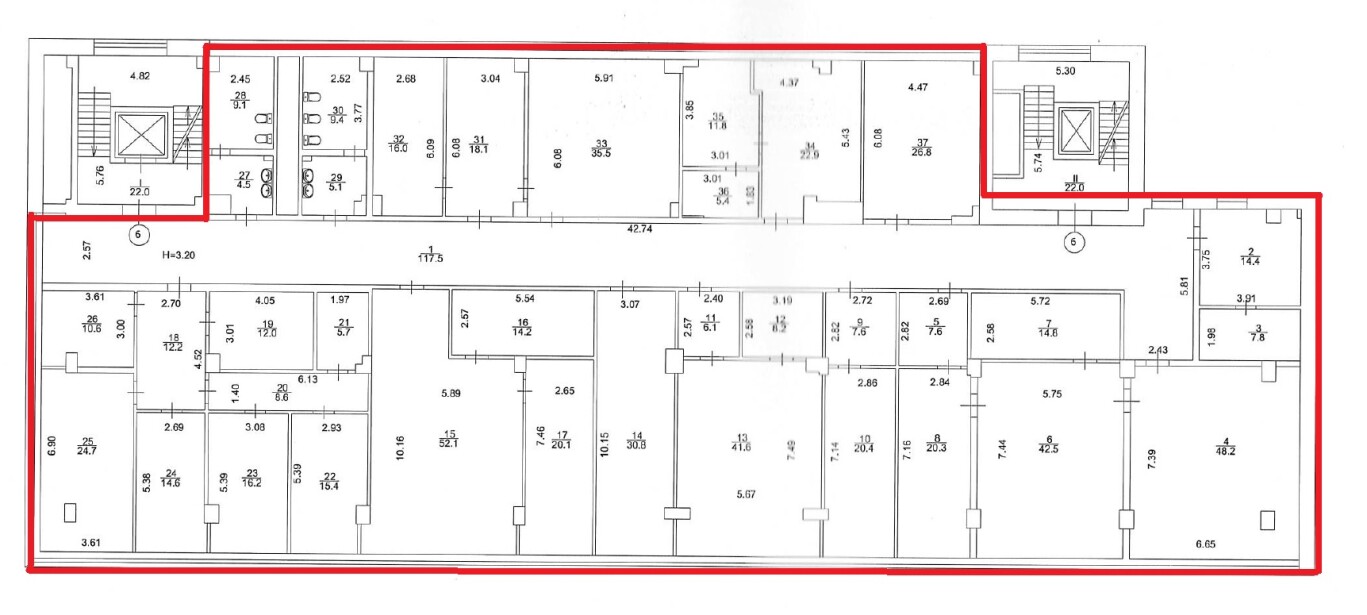
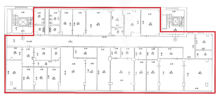
ДОВГОСТРОКОВА ОРЕНДА! м. Київ, вул. Антоновича, 40. Оренда – приміщення 5-го поверху, площею 768,70 м2 (В)

235 222.20 грн
306.00 грн / м2
Україна, м.Київ, Київ, вул. Антоновича, 40
Перейти до аукціону на сайті
  • Інформація
  • Опис
  • Документи
Дата оголошення пропозиції:
23 серпня 2021
Площа:
768.70 м2
Тип об’єкта:
Приміщення
Тип аукціону:
Англійський аукціон
Статус аукціону:
Аукціон не відбувся
Тип угоди:
Оренда
Розмір мінімального кроку:
2 600.00 ₴
Розмір гарантійного внеску:
141 133.32 ₴
Початок прийому пропозицій:
23.08.2021 09:41:58
Завершення прийому пропозицій:
22.09.2021 20:00:00
Лот:
UA-PS-2021-08-23-000002-1
№ лоту (УТК):
UTK210721_01T
Лот виставляється на торги (раз):
2
Стислий опис майна:
Пропонуються до оренди приміщення 5 поверху, площею 768,70 кв. м. Стан приміщень задовільний. Всі комунікації присутні. Кабінетне планування, кондиціонування в кожному кабінеті. Будівля знаходиться у центрі міста на перехресті вулиць Жилянська та Антоновича. Поруч з БЦ розташована зупинка міського автотранспорту, в 5-ти хвилинах ходьби знаходиться станція метро «Олімпійська», парк Тараса Шевченка. Характеристики: • кількість поверхів – 9; • опалення централізоване (міське); • земельна ділянка – 0,2099 га; • загальна площа будівлі -- 7649,30 м2 • каналізація, сан. вузол, водопостачання – присутне;
Адреса місцезнаходження майна:
Україна, м.Київ, Київ, вул. Антоновича, 40
Схожі пропозиції
11.04.2024
ДОВГОСТРОКОВА ОРЕНДА!   м. Київ, вул. Ісаакяна, 3;  Оренда – Приміщення цокольного поверху площею 400,80 кв.м (В)
84 620.90 грн
211.13 грн / м2
Приміщення
ДОВГОСТРОКОВА ОРЕНДА! м. Київ, вул. Ісаакяна, 3; Оренда – Приміщення цокольного поверху площею 400,80 кв.м (В)
Україна, м.Київ, Київ, вулиця Ісаакяна, 3
30.07.2025
м. Київ, вул. Джона Маккейна, 40, літ. «А» (Печерський р-н). Оренда – група приміщень у підвалі, площею 49,40 кв.м (В)
10 021.78 грн
202.87 грн / м2
Приміщення
м. Київ, вул. Джона Маккейна, 40, літ. «А» (Печерський р-н). Оренда – група приміщень у підвалі, площею 49,40 кв.м (В)
Україна, м.Київ, Київ, 01042, м. Київ, вул. Джона Маккейна, 40, літ. «А» (Печерський р-н)
м. Київ, проспект Петра Григоренка, 36-В. Оренда – приміщення 1-го поверху площею 37,70 кв.м. (В)
9 228.96 грн
244.80 грн / м2
Приміщення
м. Київ, проспект Петра Григоренка, 36-В. Оренда – приміщення 1-го поверху площею 37,70 кв.м. (В)
Україна, м.Київ, Київ, проспект Петра Григоренка, 36-В
23.04.2025
м. Київ, вул. Наталії Ужвій 1 (Подільський р-н). Оренда – приміщення 1-го поверху, загальною площею – 65,60 м. кв. (В)
8 580.48 грн
130.80 грн / м2
Приміщення
м. Київ, вул. Наталії Ужвій 1 (Подільський р-н). Оренда – приміщення 1-го поверху, загальною площею – 65,60 м. кв. (В)
Україна, м.Київ, Київ, 04108, м. Київ, вул. Наталії Ужвій 1
Переглянуті пропозиції
15.06.2023
Дніпропетровська обл., м. Дніпро, вул. Шолохова, 7. Оренда – приміщення 1-го поверху площею 79,60 кв.м. (В)
9 870.40 грн
124.00 грн / м2
Приміщення
Дніпропетровська обл., м. Дніпро, вул. Шолохова, 7. Оренда – приміщення 1-го поверху площею 79,60 кв.м. (В)
Україна, Дніпропетровська обл., м. Дніпро, вул. Шолохова, 7
17.03.2023
Дніпропетровська обл., м. Дніпро, вул. Чернишевського, 27. Оренда – приміщення 1-го поверху площею 100,00 кв.м. (В)
6 792.00 грн
67.92 грн / м2
Приміщення
Дніпропетровська обл., м. Дніпро, вул. Чернишевського, 27. Оренда – приміщення 1-го поверху площею 100,00 кв.м. (В)
Україна, Дніпропетровська обл., м. Дніпро, вул. Чернишевського, 27