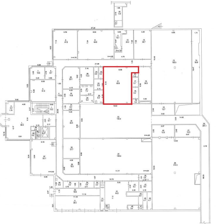
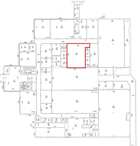
м. Київ, вул. Наталії Ужвій 1 (Подільський р-н). Оренда – приміщення 1-го поверху, загальною площею – 65,60 м. кв. (В)

8 580.48 грн
130.80 грн / м2
Україна, м.Київ, Київ, 04108, м. Київ, вул. Наталії Ужвій 1
Перейти до аукціону на сайті
  • Інформація
  • Опис
  • Документи
Дата оголошення пропозиції:
23 березня 2025
Площа:
65.60 м2
Тип об’єкта:
Приміщення
Тип аукціону:
Англійський аукціон
Статус аукціону:
Аукціон не відбувся
Тип угоди:
Оренда
Розмір мінімального кроку:
100.00 ₴
Розмір гарантійного внеску:
5 148.28 ₴
Початок прийому пропозицій:
23.03.2025 10:35:40
Завершення прийому пропозицій:
22.04.2025 20:00:00
Проведення аукціону:
23.04.2025 11:30:00
Лот:
CLE001-UA-20250323-80483
№ лоту (УТК):
UTK21032502U
Лот виставляється на торги (раз):
1
Стислий опис майна:
Пропонуються до оренди приміщення 1-го поверху, загальною площею65,60 м. кв. Будівля розташована у Подільському районі міста Києва, житловий масив Мостицький. Поруч розвинена інфраструктура, зупинки маршрутного транспорту, кафе. Характеристики: • кількість поверхів – 3; • загальна площа об'єкта – 5230,70 кв. м.; • земельна ділянка – 0,3222 га*; • дозволена потужність – 3,00 кВт; • водозабезпечення, сан. вузол, каналізація – присутні (загальний на поверсі); • опалення - централізоване (присутнє). *земельна ділянка не є предметом оренди.
Адреса місцезнаходження майна:
Україна, м.Київ, Київ, 04108, м. Київ, вул. Наталії Ужвій 1
Схожі пропозиції
24.11.2022
м. Київ, вул. Ісаакяна, 3. Оренда – Приміщення 1-го поверху площею 57,90 кв.м. (В)
10 961.63 грн
189.32 грн / м2
Приміщення
м. Київ, вул. Ісаакяна, 3. Оренда – Приміщення 1-го поверху площею 57,90 кв.м. (В)
Україна, м.Київ, Київ, вулиця Ісаакяна, 3
21.03.2025
м. Київ, вул. Архітектора Вербицького, 3 (Дарницький р-н). Оренда – Приміщення 1-го поверху, площею 215,20 м.кв. (В)
29 439.36 грн
136.80 грн / м2
Приміщення
м. Київ, вул. Архітектора Вербицького, 3 (Дарницький р-н). Оренда – Приміщення 1-го поверху, площею 215,20 м.кв. (В)
Україна, м.Київ, Київ, 02091, м. Київ, вул. Архітектора Вербицького , 3
14.03.2023
м. Київ, вул. Ореста Васкула (Феодори Пушиної), 27. Оренда – приміщення 3-го поверху, площею 7,5 кв.м (В)
1 890.00 грн
252.00 грн / м2
Приміщення
м. Київ, вул. Ореста Васкула (Феодори Пушиної), 27. Оренда – приміщення 3-го поверху, площею 7,5 кв.м (В)
Україна, м.Київ, м. Київ, вул. Ореста Васкула (Феодори Пушиної), 27
23.04.2025
м. Київ, вул. Наталії Ужвій 1 (Подільський р-н). Оренда – приміщення 1-го поверху, загальною площею – 71,20 м. кв. (В)
9 312.96 грн
130.80 грн / м2
Приміщення
м. Київ, вул. Наталії Ужвій 1 (Подільський р-н). Оренда – приміщення 1-го поверху, загальною площею – 71,20 м. кв. (В)
Україна, м.Київ, Київ, 04108, м. Київ, вул. Наталії Ужвій 1
Переглянуті пропозиції
26.10.2022
Дніпропетровська обл., м. Дніпро, вул.Чернишевського, 27. Оренда – приміщення 1-го поверху площею 19,80 кв.м.(В)
1 017.32 грн
51.38 грн / м2
Приміщення
Дніпропетровська обл., м. Дніпро, вул.Чернишевського, 27. Оренда – приміщення 1-го поверху площею 19,80 кв.м.(В)
Україна, Дніпропетровська обл., Дніпро, вулиця Чернишевського, 27
15.10.2020
Харківська обл., м. Харків, просп. Героїв Сталінграду, 169.Оренда – приміщення 2-го поверху площею 34,7 кв.м
568.39 грн
16.38 грн / м2
Приміщення
Харківська обл., м. Харків, просп. Героїв Сталінграду, 169.Оренда – приміщення 2-го поверху площею 34,7 кв.м
Україна, Харківська обл., Харків, просп. Героїв Сталінграду, 169
Харківська обл., м. Харків, вул. Конторська,14. Оренда – приміщення четвертого поверху, площею 25,9 кв.м. (В)
2 331.00 грн
90.00 грн / м2
Приміщення
Харківська обл., м. Харків, вул. Конторська,14. Оренда – приміщення четвертого поверху, площею 25,9 кв.м. (В)
Україна, Харківська обл., м. Харків, вул. Конторська,14
21.03.2023
Рівненська обл., Рівненський р-н, с. Здовбиця, вул. Шосова, 107. Оренда – нежитлові приміщення площею 80,3 м. кв. (В)
1 388.39 грн
17.29 грн / м2
Приміщення
Рівненська обл., Рівненський р-н, с. Здовбиця, вул. Шосова, 107. Оренда – нежитлові приміщення площею 80,3 м. кв. (В)
Україна, Рівненська обл., Рівненський р-н, с. Здовбиця, вул. Шосова, 107