Полтавська обл., Полтавський р-н., м. Решетилівка, вул. Полтавська, 50. Оренда – підсобне приміщення та гараж площею 50,30 кв.м. (В)

934.57 грн
18.58 грн / м2
Україна, Полтавська обл., Полтавський р-н., м. Решетилівка, вул. Полтавська, 50
Перейти до аукціону на сайті
  • Інформація
  • Опис
  • Документи
Дата оголошення пропозиції:
17 вересня 2021
Площа:
50.30 м2
Тип об’єкта:
Приміщення
Тип аукціону:
Англійський аукціон
Статус аукціону:
Аукціон не відбувся
Тип угоди:
Оренда
Розмір мінімального кроку:
30.00 ₴
Розмір гарантійного внеску:
560.74 ₴
Початок прийому пропозицій:
17.09.2021 13:45:22
Завершення прийому пропозицій:
19.10.2021 20:00:00
Лот:
UA-PS-2021-09-17-000056-1
№ лоту (УТК):
UTK130721_03P
Лот виставляється на торги (раз):
3
Стислий опис майна:
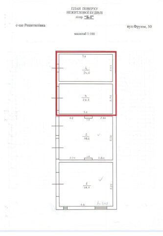
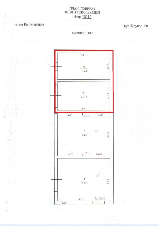
Пропонується до оренди підсобне приміщення та гараж площею 50,30 кв.м. Приміщення знаходиться в центрі м. Решетилівка. Характеристики: Кількість поверхів – 1; Загальна площа – 127,20 кв.м.; Площа запропонована до оренди 50,30 кв.м.; Опалення – відсутнє; Дозволена потужність – відсутня; Земельна ділянка – 0,2039 га (договір оренди)
Адреса місцезнаходження майна:
Україна, Полтавська обл., Полтавський р-н., м. Решетилівка, вул. Полтавська, 50
Схожі пропозиції
14.09.2022
Полтавська обл., Кременчуцький р-н, м. Горішні Плавні, вулиця Миру, 18. Оренда – приміщення 2-го поверху площею 11,80 кв.м. (В)
743.40 грн
63.00 грн / м2
Приміщення
Полтавська обл., Кременчуцький р-н, м. Горішні Плавні, вулиця Миру, 18. Оренда – приміщення 2-го поверху площею 11,80 кв.м. (В)
Україна, Полтавська обл., Кременчуцький р-н, м. Горішні Плавні, вулиця Миру, 18
21.03.2024
Полтавська обл., Кременчуцький р-н, с. Омельник, вул. Центральна, буд. 51б. Оренда – приміщення площею 66,00 кв.м. (В)
330.00 грн
5.00 грн / м2
Приміщення
Полтавська обл., Кременчуцький р-н, с. Омельник, вул. Центральна, буд. 51б. Оренда – приміщення площею 66,00 кв.м. (В)
Україна, Полтавська обл., Кременчуцький р-н, с. Омельник, вул. Центральна, буд. 51б
24.01.2024
Полтавська обл., Полтавський р-н, cмт. Чутове, вул. Незалежності, 24. Оренда – приміщення 3-го поверху площею 106,20 кв.м. (В)
2 531.81 грн
23.84 грн / м2
Приміщення
Полтавська обл., Полтавський р-н, cмт. Чутове, вул. Незалежності, 24. Оренда – приміщення 3-го поверху площею 106,20 кв.м. (В)
Україна, Полтавська обл., Полтавський р-н, cмт. Чутове, вул. Незалежності, 24
Полтавська обл., смт. Семенівка, вул. Воїнів Інтернаціоналістів, буд. 12/9. Оренда – приміщення 2-го поверху 30,7 кв.м.(В)
302.09 грн
9.84 грн / м2
Приміщення
Полтавська обл., смт. Семенівка, вул. Воїнів Інтернаціоналістів, буд. 12/9. Оренда – приміщення 2-го поверху 30,7 кв.м.(В)
Україна, Полтавська обл., Семенівка, вул. Воїнів Інтернаціоналістів, буд. 12/9
Переглянуті пропозиції
Рівненська обл., м. Рівне вул.Соборна,56. Оренда – цокольні приміщення загальною площею 334,1 м.кв. (В)
39 544.08 грн
118.36 грн / м2
Приміщення
Рівненська обл., м. Рівне вул.Соборна,56. Оренда – цокольні приміщення загальною площею 334,1 м.кв. (В)
Україна, Рівненська обл., м. Рівне, вул.Соборна,56
04.04.2023
Рівненська обл., м. Рівне, вул. Орлова, 37. Оренда – приміщення 5-го поверху загальною площею 703 кв.м. (В)
32 478.60 грн
46.20 грн / м2
Приміщення
Рівненська обл., м. Рівне, вул. Орлова, 37. Оренда – приміщення 5-го поверху загальною площею 703 кв.м. (В)
Україна, Рівненська обл., м. Рівне, вул. Орлова, 37
м. Київ, вул. Антоновича, 40, оренда – приміщення підвалу площею 77,00 кв.м. (В)
6 578.11 грн
85.43 грн / м2
Приміщення
м. Київ, вул. Антоновича, 40, оренда – приміщення підвалу площею 77,00 кв.м. (В)
Україна, м.Київ, Київ, вул. Антоновича, 40
Харківська обл., Харківський р-н, м. Мерефа, вул. Дніпровська, 226. Оренда – приміщення 2-го поверху будівлі «Дизельна», площею 85,80 кв.м. (В)
2 975.54 грн
34.68 грн / м2
Приміщення
Харківська обл., Харківський р-н, м. Мерефа, вул. Дніпровська, 226. Оренда – приміщення 2-го поверху будівлі «Дизельна», площею 85,80 кв.м. (В)
Україна, Харківська обл., Харківський р-н, м. Мерефа, вул. Дніпровська, 226