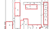
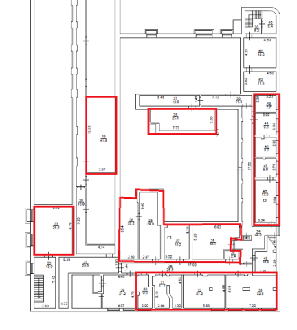
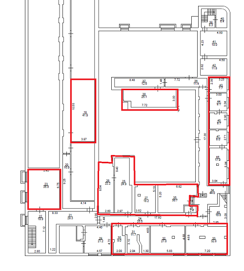
Рівненська обл., м. Рівне вул.Соборна,56. Оренда – цокольні приміщення загальною площею 334,1 м.кв. (В)

39 544.08 грн
118.36 грн / м2
Україна, Рівненська обл., м. Рівне, вул.Соборна,56
Перейти до аукціону на сайті
  • Інформація
  • Опис
  • Документи
Дата оголошення пропозиції:
04 лютого 2022
Площа:
334.10 м2
Тип об’єкта:
Приміщення
Тип аукціону:
Англійський аукціон
Статус аукціону:
Аукціон не відбувся
Тип угоди:
Оренда
Розмір мінімального кроку:
200.00 ₴
Розмір гарантійного внеску:
23 726.45 ₴
Початок прийому пропозицій:
04.02.2022 13:51:12
Завершення прийому пропозицій:
09.03.2022 20:00:00
Лот:
UA-PS-2022-02-04-000037-1
№ лоту (УТК):
UTK040222_22P
Лот виставляється на торги (раз):
1
Стислий опис майна:
Пропонується до оренди цокольні приміщення загальною площею 334,1 м. кв. Будівля знаходиться в центральній частині міста. Розвинена інфраструктура, високі автомобільний та пішохідний потоки. Поряд центральна площа та міський парк. Окремий вхід відсутній. Потребує реконструкції електромережі. Характеристики: Кількість поверхів – 3; Загальна площа – 4240 м. кв.; Площа, запропонована до оренди – 334,1 м. кв.; Опалення – централізоване; Земельна ділянка - площа 0,2097 га. (договір оренди)
Адреса місцезнаходження майна:
Україна, Рівненська обл., м. Рівне, вул.Соборна,56
Схожі пропозиції
14.10.2022
Рівненська обл., Рівненський р-н, с. Пустомити, вул. Радянська, 41. Оренда – виробничі приміщення площею 21,80 кв.м. (В)
500.09 грн
22.94 грн / м2
Приміщення
Рівненська обл., Рівненський р-н, с. Пустомити, вул. Радянська, 41. Оренда – виробничі приміщення площею 21,80 кв.м. (В)
Україна, Рівненська обл., Рівненський р-н, с. Пустомити, вул. Радянська, 41
13.10.2022
Рівненська обл., Вараський р-н., с. Антонівка, вул. Хмельницького, 8а. Оренда – нежитлові приміщення площею 75,6 кв.м. (В)
2 391.98 грн
31.64 грн / м2
Приміщення
Рівненська обл., Вараський р-н., с. Антонівка, вул. Хмельницького, 8а. Оренда – нежитлові приміщення площею 75,6 кв.м. (В)
Україна, Рівненська обл., Вараський р-н., с. Антонівка, вул. Хмельницького, 8а
16.12.2022
Рівненська обл., Вараський р-н., с. Довговоля, вул. Грушевського, 9/2а. Оренда – нежитлові приміщення площею 33,4 кв.м. (В)
610.89 грн
18.29 грн / м2
Приміщення
Рівненська обл., Вараський р-н., с. Довговоля, вул. Грушевського, 9/2а. Оренда – нежитлові приміщення площею 33,4 кв.м. (В)
Україна, Рівненська обл., Вараський р-н., с. Довговоля, вул. Грушевського, 9/2а
28.02.2023
Рівненська обл., Варашський р-н, с. Дібрівськ, вул.Центральна, 1. Оренда – приміщення 1 поверху площею 25,5 кв. м. (В)
500.06 грн
19.61 грн / м2
Приміщення
Рівненська обл., Варашський р-н, с. Дібрівськ, вул.Центральна, 1. Оренда – приміщення 1 поверху площею 25,5 кв. м. (В)
Україна, Рівненська обл., Варашський р-н, с. Дібрівськ, вул.Центральна, 1
Переглянуті пропозиції
04.04.2023
Рівненська обл., м. Рівне, вул. Орлова, 37. Оренда – приміщення 5-го поверху загальною площею 703 кв.м. (В)
32 478.60 грн
46.20 грн / м2
Приміщення
Рівненська обл., м. Рівне, вул. Орлова, 37. Оренда – приміщення 5-го поверху загальною площею 703 кв.м. (В)
Україна, Рівненська обл., м. Рівне, вул. Орлова, 37
м. Київ, вул. Антоновича, 40, оренда – приміщення підвалу площею 77,00 кв.м. (В)
6 578.11 грн
85.43 грн / м2
Приміщення
м. Київ, вул. Антоновича, 40, оренда – приміщення підвалу площею 77,00 кв.м. (В)
Україна, м.Київ, Київ, вул. Антоновича, 40
Харківська обл., Харківський р-н, м. Мерефа, вул. Дніпровська, 226. Оренда – приміщення 2-го поверху будівлі «Дизельна», площею 85,80 кв.м. (В)
2 975.54 грн
34.68 грн / м2
Приміщення
Харківська обл., Харківський р-н, м. Мерефа, вул. Дніпровська, 226. Оренда – приміщення 2-го поверху будівлі «Дизельна», площею 85,80 кв.м. (В)
Україна, Харківська обл., Харківський р-н, м. Мерефа, вул. Дніпровська, 226
14.03.2025
м. Харків, вул. Амосова,13 в. Оренда – приміщення цокольного поверху площею 31,60 кв.м (В)
2 051.47 грн
64.92 грн / м2
Приміщення
м. Харків, вул. Амосова,13 в. Оренда – приміщення цокольного поверху площею 31,60 кв.м (В)
Україна, Харківська обл., м. Харків, вул. Амосова,13 в