м. Київ, вул. Олени Теліги, 39-г, літ. «А», оренда – приміщення виробничої будівлі, площею 1116,90 м2 (В)

94 210.52 грн
84.35 грн / м2
Україна, м.Київ, Київ, вул. Олени Теліги, 39-Г
Перейти до аукціону на сайті
  • Інформація
  • Опис
  • Документи
Дата оголошення пропозиції:
13 жовтня 2021
Площа:
1116.90 м2
Тип об’єкта:
Приміщення
Тип аукціону:
Англійський аукціон
Статус аукціону:
Аукціон не відбувся
Тип угоди:
Оренда
Розмір мінімального кроку:
2 000.00 ₴
Розмір гарантійного внеску:
56 526.31 ₴
Початок прийому пропозицій:
13.10.2021 11:34:40
Завершення прийому пропозицій:
11.11.2021 20:00:00
Лот:
UA-PS-2021-10-13-000036-1
№ лоту (УТК):
UTK070721_01Т
Лот виставляється на торги (раз):
4
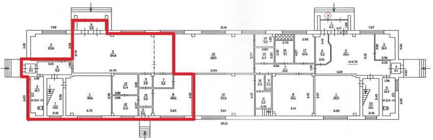
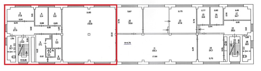
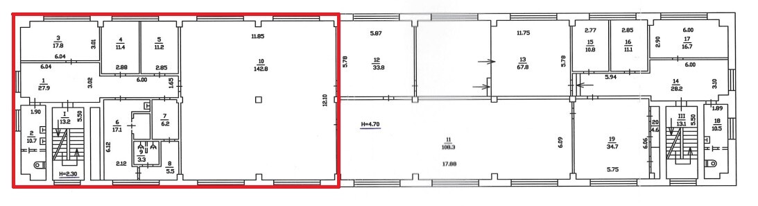
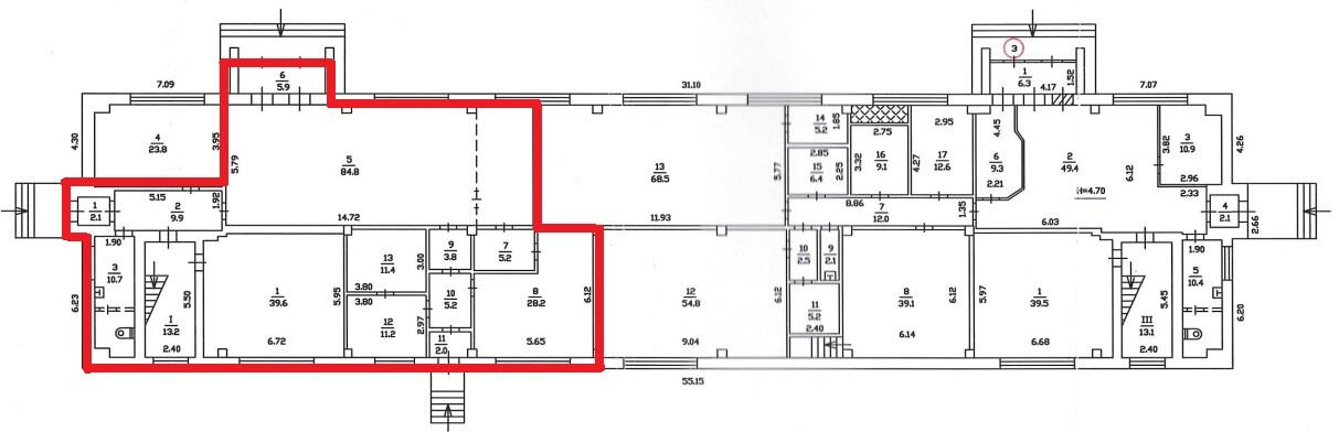
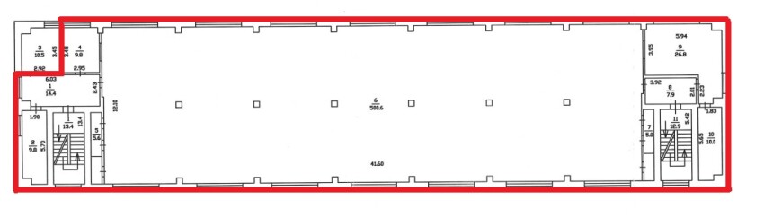
Стислий опис майна:
Пропонуються до оренди приміщення виробничої будівлі, літ. «А», площею 1116,90 м2. Будівля розташована в Шевченківському районі міста Києва, місцевість Сирець. Поруч розвинена інфраструктура, зупинки маршрутного транспорту, супермаркети, 5 хв. від ст. м. «Дорогожичі». Вхід з двору. Доступ 24/7. Характеристики: • кількість поверхів – 3; • сан. вузол, каналізація, теплозабезпечення – присутнє, не задовільний стан; • площа будівлі – літ. «А» - 2000,40 м2; • опалення централізоване (міське); • земельна ділянка – 0,3000 га;
Адреса місцезнаходження майна:
Україна, м.Київ, Київ, вул. Олени Теліги, 39-Г
Схожі пропозиції
25.10.2022
м. Київ, пр-т. Оболонський, 32-Б. Оренда – приміщення 4-го поверху, площею 715,60 м2 (В)
122 918.61 грн
171.77 грн / м2
Приміщення
м. Київ, пр-т. Оболонський, 32-Б. Оренда – приміщення 4-го поверху, площею 715,60 м2 (В)
Україна, м.Київ, м. Київ, пр-т. Оболонський, 32-Б
30.04.2025
ДОВГОСТРОКОВА ОРЕНДА!   м. Київ, вул. Стрілецька, 4-6;  Оренда – приміщення другого поверху площею – 570,00 кв.м (В)
178 489.80 грн
313.14 грн / м2
Приміщення
ДОВГОСТРОКОВА ОРЕНДА! м. Київ, вул. Стрілецька, 4-6; Оренда – приміщення другого поверху площею – 570,00 кв.м (В)
Україна, м.Київ, Київ, Стрілецька вулиця, 4-6
м. Київ, вул. Олени Теліги, 39-г, літ. «А», оренда – частина приміщень виробничої будівлі, площею 1116,90 м2 (В)
94 210.52 грн
84.35 грн / м2
Приміщення
м. Київ, вул. Олени Теліги, 39-г, літ. «А», оренда – частина приміщень виробничої будівлі, площею 1116,90 м2 (В)
Україна, м.Київ, Київ, вул. Олени Теліги, 39-Г
м. Київ, вул. Дегтярівська, 28-А. Оренда – приміщення 3-го поверху площею 853,34 кв.м. (В)
128 308.20 грн
150.36 грн / м2
Приміщення
м. Київ, вул. Дегтярівська, 28-А. Оренда – приміщення 3-го поверху площею 853,34 кв.м. (В)
Україна, м.Київ, Київ, вул. Дегтярівська, 28-А