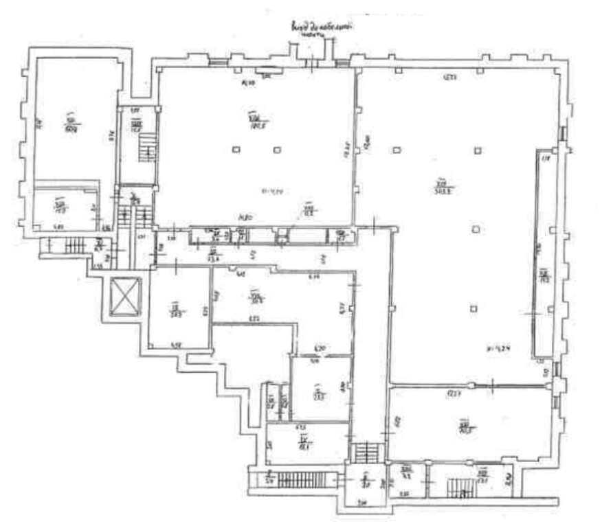
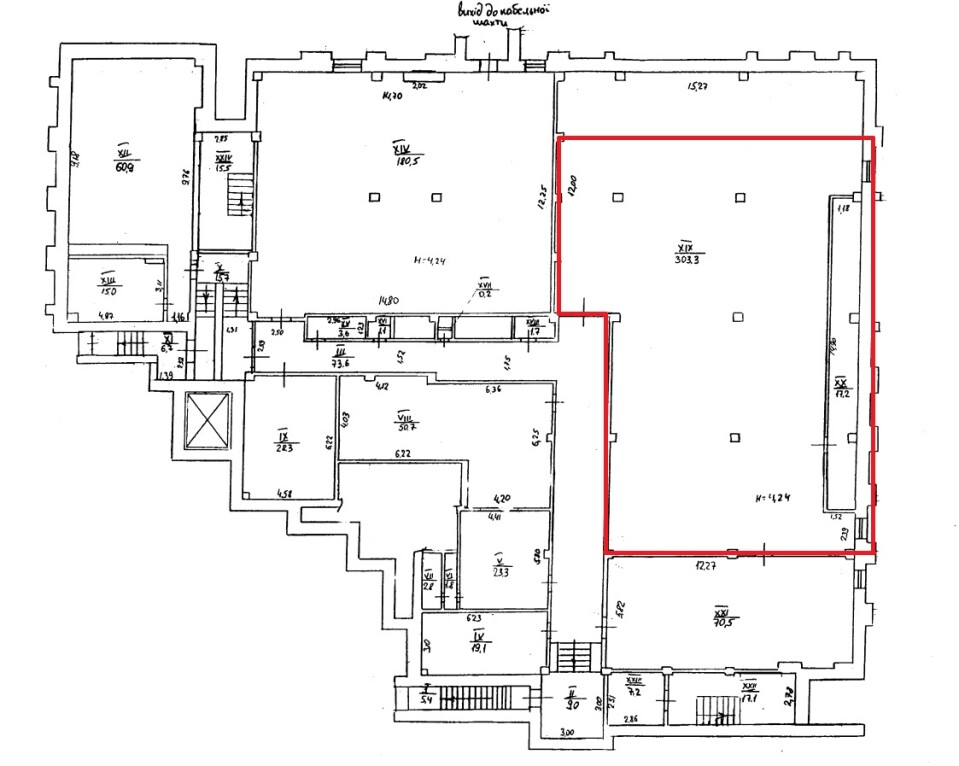
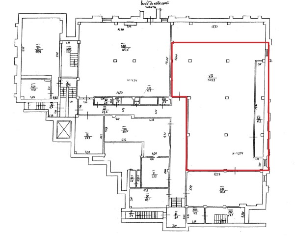
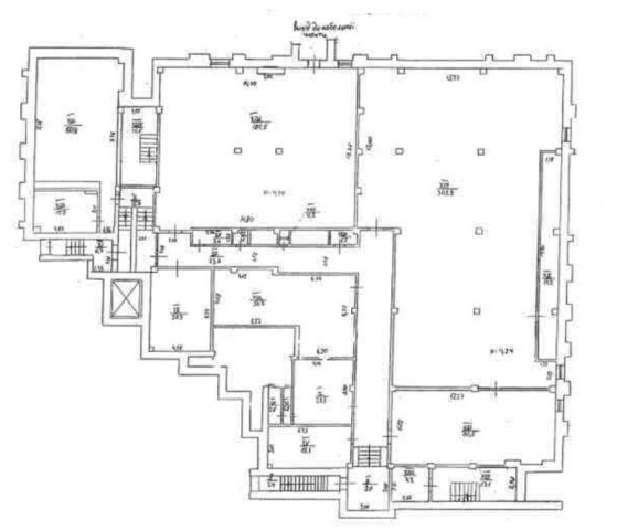
м. Київ, вул. Райдужна, 27-А, оренда – приміщення підвалу, площею 274,70 кв.м. (В)

14 833.80 грн
54.00 грн / м2
Україна, м.Київ, Київ, вул. Райдужна, 27-А
Перейти до аукціону на сайті
  • Інформація
  • Опис
  • Документи
Дата оголошення пропозиції:
27 жовтня 2021
Площа:
274.70 м2
Тип об’єкта:
Приміщення
Тип аукціону:
Англійський аукціон
Статус аукціону:
Аукціон не відбувся
Тип угоди:
Оренда
Розмір мінімального кроку:
300.00 ₴
Розмір гарантійного внеску:
8 900.28 ₴
Початок прийому пропозицій:
27.10.2021 11:52:30
Завершення прийому пропозицій:
25.11.2021 20:00:00
Лот:
UA-PS-2021-10-27-000015-3
№ лоту (УТК):
UTK160621_02T
Лот виставляється на торги (раз):
5
Стислий опис майна:
Пропонуються до оренди приміщення підвалу, площею 274,70 м2. Будівля знаходиться у Дніпровському районі міста Києва, житловий масив Райдужний. Поруч розвинена інфраструктура, зупинки маршрутного транспорту, авторинок, супермаркети, торгівельно-розважальні центри. Вхід у будівлю з двору. Характеристики: • кількість поверхів – 2; • опалення централізоване (міське); • земельна ділянка – 0,2524 га; • загальна площа будівлі -- 3040,30 м2; • каналізація, сан. вузол, водопостачання – відсутнє;
Адреса місцезнаходження майна:
Україна, м.Київ, Київ, вул. Райдужна, 27-А
Схожі пропозиції
16.09.2022
м. Київ, вул. Ісаакяна, 3 Оренда – Приміщення 2-го поверху площею 149,81 кв.м. (В)
22 690.22 грн
151.46 грн / м2
Приміщення
м. Київ, вул. Ісаакяна, 3 Оренда – Приміщення 2-го поверху площею 149,81 кв.м. (В)
Україна, м.Київ, Київ, вулиця Ісаакяна, 3
19.11.2025
м. Київ, вул. Джона Маккейна, 40, літ. «В» (Печерський р-н). Оренда – гаражі, загальною площею - 315,10 кв.м. (В)
63 924.34 грн
202.87 грн / м2
Приміщення
м. Київ, вул. Джона Маккейна, 40, літ. «В» (Печерський р-н). Оренда – гаражі, загальною площею - 315,10 кв.м. (В)
Україна, м.Київ, Київ, 01042, м. Київ, вул. Джона Маккейна, 40, літ. «В» (Печерський р-н)
м. Київ, Антоновича 40 Оренда приміщень 5 пов.
276 732.00 грн
360.00 грн / м2
Приміщення
м. Київ, Антоновича 40 Оренда приміщень 5 пов.
Україна, м.Київ, місто Київ, вул. Антоновича, 40
13.05.2025
м. Київ, вулиця Академіка Шалімова, 39/8, літ. «Е» (Солом’янський р-н). Оренда – приміщення 1-го поверху, площею 74,40 м. кв. (В)
13 716.38 грн
184.36 грн / м2
Приміщення
м. Київ, вулиця Академіка Шалімова, 39/8, літ. «Е» (Солом’янський р-н). Оренда – приміщення 1-го поверху, площею 74,40 м. кв. (В)
Україна, м.Київ, Київ, вулиця Академіка Шалімова, 39/8
Переглянуті пропозиції
05.10.2023
Дніпропетровська обл., м. Дніпро, вул. Січових Стрільців, 10. Оренда – приміщення 2-го поверху площею 28,50 кв.м. (В)
4 275.00 грн
150.00 грн / м2
Приміщення
Дніпропетровська обл., м. Дніпро, вул. Січових Стрільців, 10. Оренда – приміщення 2-го поверху площею 28,50 кв.м. (В)
Україна, Дніпропетровська обл., м. Дніпро, вул. Січових Стрільців, 10
05.12.2023
м. Київ, вул. Героїв Севастополя, 39/8, літ.«В»;   Оренда – приміщення 1-го поверху блоку зовнішніх споруд, площею 80,60 кв.м. (В)
15 771.00 грн
195.67 грн / м2
Приміщення
м. Київ, вул. Героїв Севастополя, 39/8, літ.«В»; Оренда – приміщення 1-го поверху блоку зовнішніх споруд, площею 80,60 кв.м. (В)
Україна, м.Київ, Київ, вулиця Героїв Севастополя, 39/8