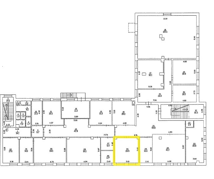
Дніпропетровська обл., м. Дніпро, вул. Січових Стрільців, 10. Оренда – приміщення 2-го поверху площею 28,50 кв.м. (В)

4 275.00 грн
150.00 грн / м2
Україна, Дніпропетровська обл., м. Дніпро, вул. Січових Стрільців, 10
Перейти до аукціону на сайті
  • Інформація
  • Опис
  • Документи
Дата оголошення пропозиції:
05 вересня 2023
Площа:
28.50 м2
Тип об’єкта:
Приміщення
Тип аукціону:
Англійський аукціон
Статус аукціону:
Аукціон не відбувся
Тип угоди:
Оренда
Розмір мінімального кроку:
400.00 ₴
Розмір гарантійного внеску:
2 565.00 ₴
Початок прийому пропозицій:
05.09.2023 16:10:03
Завершення прийому пропозицій:
04.10.2023 20:00:00
Проведення аукціону:
05.10.2023 12:35:00
Лот:
CLE001-UA-20230905-44467
№ лоту (УТК):
UTK260623_07P
Лот виставляється на торги (раз):
3
Стислий опис майна:
Пропонується до оренди приміщення 2-го поверху площею 28,50 кв.м. Розташування – будівля (літ. «А-3») знаходиться в центральному районі міста. Поруч знаходяться відділення банку, високий автомобільний і пішохідний потоки. Стан приміщення задовільний, підходить для офісу, для дитячої студії, школи розвитку. Ідеальне місце під розвиток будь-якого бізнесу. Можливість передачі приміщень в суборенду. Характеристики: Кількість поверхів – 4 (враховуючи цокольний поверх) Загальна площа будівель на ЗД – 2876,70 кв.м. Площа запропонована до оренди – 28,50 кв.м. Електропостачання, водопостачання, теплопостачання, охорона та обслуговування пожежної сигналізації, вивіз сміття, прибирання території; Земельна ділянка – 0, 1636 га (договір оренди) Ресурсні податки – 5,55 грн за 1 кв.м
Адреса місцезнаходження майна:
Україна, Дніпропетровська обл., м. Дніпро, вул. Січових Стрільців, 10
Схожі пропозиції
06.10.2023
Дніпропетровська обл., м. Синельникове, вул. Богми, 4. Оренда – приміщення гаражу площею 17,2 кв.м. (В)
258.00 грн
15.00 грн / м2
Приміщення
Дніпропетровська обл., м. Синельникове, вул. Богми, 4. Оренда – приміщення гаражу площею 17,2 кв.м. (В)
Україна, Дніпропетровська обл., Синельникове, вулиця Богми, 4
31.01.2023
Дніпропетровська обл., м. Новомосковськ, вул. Сучкова, 64. Оренда – приміщення 2-го поверху площею 25,4 кв.м. (В)
651.00 грн
25.63 грн / м2
Приміщення
Дніпропетровська обл., м. Новомосковськ, вул. Сучкова, 64. Оренда – приміщення 2-го поверху площею 25,4 кв.м. (В)
Україна, Дніпропетровська обл., Новомосковськ, вулиця Сучкова, 64
09.04.2024
Дніпропетровська обл., м. Дніпро, вул. Князя Ярослава Мудрого, 3. Оренда – приміщення 5-го поверху площею 23,10 кв.м. (В)
2 763.91 грн
119.65 грн / м2
Приміщення
Дніпропетровська обл., м. Дніпро, вул. Князя Ярослава Мудрого, 3. Оренда – приміщення 5-го поверху площею 23,10 кв.м. (В)
Україна, Дніпропетровська обл., м. Дніпро, вул. Князя Ярослава Мудрого, 3
10.01.2023
Дніпропетровська обл., м. Дніпро, вул. Чернишевського, 27. Оренда – приміщення 2-го поверху площею 98,40 кв.м. (В)
6 683.33 грн
67.92 грн / м2
Приміщення
Дніпропетровська обл., м. Дніпро, вул. Чернишевського, 27. Оренда – приміщення 2-го поверху площею 98,40 кв.м. (В)
Україна, Дніпропетровська обл., м. Дніпро, вул. Чернишевського, 27
Переглянуті пропозиції
05.12.2023
м. Київ, вул. Героїв Севастополя, 39/8, літ.«В»;   Оренда – приміщення 1-го поверху блоку зовнішніх споруд, площею 80,60 кв.м. (В)
15 771.00 грн
195.67 грн / м2
Приміщення
м. Київ, вул. Героїв Севастополя, 39/8, літ.«В»; Оренда – приміщення 1-го поверху блоку зовнішніх споруд, площею 80,60 кв.м. (В)
Україна, м.Київ, Київ, вулиця Героїв Севастополя, 39/8