Рівненська обл., м. Рівне вул. Орлова, 37. Оренда – приміщення 4го поверху площею 326,3 м. кв. (В)

30 463.37 грн
93.36 грн / м2
Україна, Рівненська обл., м. Рівне , Рівне вул. Орлова, 37
Перейти до аукціону на сайті
  • Інформація
  • Опис
  • Документи
Дата оголошення пропозиції:
17 листопада 2021
Площа:
326.30 м2
Тип об’єкта:
Приміщення
Тип аукціону:
Англійський аукціон
Статус аукціону:
Аукціон не відбувся
Тип угоди:
Оренда
Розмір мінімального кроку:
400.00 ₴
Розмір гарантійного внеску:
18 278.02 ₴
Початок прийому пропозицій:
17.11.2021 14:34:33
Завершення прийому пропозицій:
16.12.2021 20:00:00
Лот:
UA-PS-2021-11-17-000086-1
№ лоту (УТК):
UTK190821_20P
Лот виставляється на торги (раз):
3
Стислий опис майна:
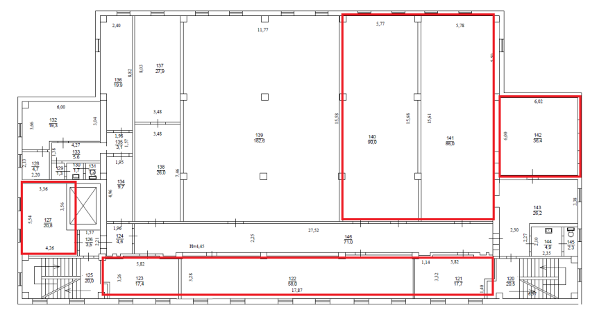
Пропонується до оренди приміщення 4го поверху площею 326,3 м. кв. Будівля знаходиться в серединній частині міста, досить розвинена інфраструктура. Поряд відділення Ощадбанку, магазини, середні автомобільні та пішохідні потоки. Територія огороджена та частково впорядкована. Окремий вхід відсутній. Приміщення потребують реконструкції системи електропостачання. Опалення відсутнє. Характеристики: Кількість поверхів – 6 ; Загальна площа – 4535,1 м. кв.; Площа, запропонована до оренди – 326,3 м.кв.; Земельна ділянка - площа 0,3639 га.
Адреса місцезнаходження майна:
Україна, Рівненська обл., м. Рівне , Рівне вул. Орлова, 37
Схожі пропозиції
25.10.2023
Рівненська обл., Сарненський р-н, смт. Рокитне, вул. Незалежності, 9. Оренда – приміщення 1, 2, 3-го поверху площею 343,9 кв.м. (В)
11 266.16 грн
32.76 грн / м2
Приміщення
Рівненська обл., Сарненський р-н, смт. Рокитне, вул. Незалежності, 9. Оренда – приміщення 1, 2, 3-го поверху площею 343,9 кв.м. (В)
Україна, Рівненська обл., смт. Рокитне, вул. Незалежності, 9
03.04.2024
Рівненська обл., Рівненський р-н., с. Вітковичі, вул. Ковальська, 1. Оренда – частина приміщення одноповерхової будівлі, площею 10,8 кв.м. (В)
270.00 грн
25.00 грн / м2
Приміщення
Рівненська обл., Рівненський р-н., с. Вітковичі, вул. Ковальська, 1. Оренда – частина приміщення одноповерхової будівлі, площею 10,8 кв.м. (В)
Україна, Рівненська обл., Рівненський р-н., с. Вітковичі, вул. Ковальська, 1
06.12.2022
Рівненська обл., Рівненський р-н, с. Дорогобуж, вул. Гудкова, 84. Оренда – виробничі приміщення площею 19,4 кв.м. (В)
500.13 грн
25.78 грн / м2
Приміщення
Рівненська обл., Рівненський р-н, с. Дорогобуж, вул. Гудкова, 84. Оренда – виробничі приміщення площею 19,4 кв.м. (В)
Україна, Рівненська обл., Рівненський р-н, с. Дорогобуж, вул. Гудкова, 84
Рівненська обл., м. Рівне вул.Соборна,56. Оренда – цокольні приміщення загальною площею 334,1 м.кв. (В)
27 683.53 грн
82.86 грн / м2
Приміщення
Рівненська обл., м. Рівне вул.Соборна,56. Оренда – цокольні приміщення загальною площею 334,1 м.кв. (В)
Україна, Рівненська обл., м. Рівне, вул.Соборна,56
Переглянуті пропозиції
30.08.2024
Вінницька обл., Вінницький р-н, с. Івча, вул. Центральна, 35;   Оренда – приміщення площею 35,0 кв.м. (В)
350.00 грн
10.00 грн / м2
Приміщення
Вінницька обл., Вінницький р-н, с. Івча, вул. Центральна, 35; Оренда – приміщення площею 35,0 кв.м. (В)
Україна, Вінницька обл., Івча, вул. Центральна, 35