Рівненська обл., м. Рівне вул.Соборна,56. Оренда – цокольні приміщення загальною площею 334,1 м.кв. (В)

27 683.53 грн
82.86 грн / м2
Україна, Рівненська обл., м. Рівне, вул.Соборна,56
Перейти до аукціону на сайті
  • Інформація
  • Опис
  • Документи
Дата оголошення пропозиції:
20 квітня 2022
Площа:
334.10 м2
Тип об’єкта:
Приміщення
Тип аукціону:
Англійський аукціон
Статус аукціону:
Аукціон не відбувся
Тип угоди:
Оренда
Розмір мінімального кроку:
500.00 ₴
Розмір гарантійного внеску:
16 610.12 ₴
Початок прийому пропозицій:
20.04.2022 11:17:59
Завершення прийому пропозицій:
19.05.2022 20:00:00
Лот:
UA-PS-2022-04-20-000017-1
№ лоту (УТК):
UTK040222_22P
Лот виставляється на торги (раз):
3
Стислий опис майна:
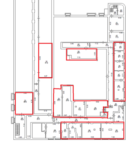
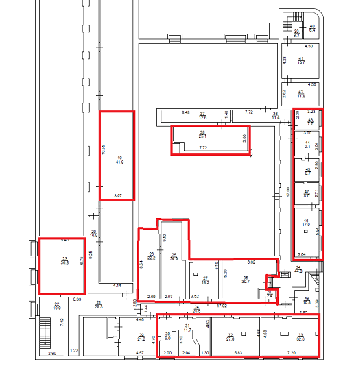
Пропонується до оренди цокольні приміщення загальною площею 334,1 м. кв. Будівля знаходиться в центральній частині міста. Розвинена інфраструктура, високі автомобільний та пішохідний потоки. Поряд центральна площа та міський парк. Окремий вхід відсутній. Потребує реконструкції електромережі. Характеристики: Кількість поверхів – 3; Загальна площа – 4240 м. кв.; Площа, запропонована до оренди – 334,1 м. кв.; Опалення – централізоване; Земельна ділянка - площа 0,2097 га. (договір оренди)
Адреса місцезнаходження майна:
Україна, Рівненська обл., м. Рівне, вул.Соборна,56
Схожі пропозиції
26.01.2023
Рівненська обл., м. Рівне, вул. Міцкевича, 2. Оренда – приміщення 1-го та 2-го поверху площею 347,5 кв.м. (В)
38 614.20 грн
111.12 грн / м2
Приміщення
Рівненська обл., м. Рівне, вул. Міцкевича, 2. Оренда – приміщення 1-го та 2-го поверху площею 347,5 кв.м. (В)
Україна, Рівненська обл., м. Рівне, вул. Міцкевича, 2
Рівненська обл., м. Рівне вул. В. Чорновола, 1. Оренда – приміщення 1-го , 2-го та 3 –го поверху, загальною площею 115,2 м.кв. (В)
13 644.29 грн
118.44 грн / м2
Приміщення
Рівненська обл., м. Рівне вул. В. Чорновола, 1. Оренда – приміщення 1-го , 2-го та 3 –го поверху, загальною площею 115,2 м.кв. (В)
Україна, Рівненська обл., м. Рівне , вул. В. Чорновола, 1
м. Рівне, вул. Орлова, 37. Оренда приміщень 3-го поверху
16 069.60 грн
21.20 грн / м2
Приміщення
м. Рівне, вул. Орлова, 37. Оренда приміщень 3-го поверху
Україна, Рівненська обл., м. Рівне, вул. Орлова, 37
21.04.2023
Рівненська обл., м. Дубровиця, вул. Шевченка, 53. Оренда – приміщення 2-го та 3-го поверху площею 163,7 кв.м. (В)
1 715.58 грн
10.48 грн / м2
Приміщення
Рівненська обл., м. Дубровиця, вул. Шевченка, 53. Оренда – приміщення 2-го та 3-го поверху площею 163,7 кв.м. (В)
Україна, Рівненська обл., м. Дубровиця, вул. Шевченка, 53
Переглянуті пропозиції
30.04.2024
Полтавська обл., Лубенський р-н, с.Новоаврамівка, вул.Центральна, буд.14;   Оренда–будівля площею 62,1 кв.м. (В)
632.80 грн
10.19 грн / м2
Приміщення
Полтавська обл., Лубенський р-н, с.Новоаврамівка, вул.Центральна, буд.14; Оренда–будівля площею 62,1 кв.м. (В)
Україна, Полтавська обл., с. Новоаврамівка, вул. Центральна, буд. 14