Полтавська обл., Кременчуцький р-н., смт. Градизьк, вул. Героїв Дніпра, буд. 15. Оренда – частина будівлі площею 33,60 кв.м. (В)

428.06 грн
12.74 грн / м2
Україна, Полтавська обл., смт. Градизьк, вул. Героїв Дніпра, 15
Перейти до аукціону на сайті
  • Інформація
  • Опис
  • Документи
Дата оголошення пропозиції:
25 листопада 2021
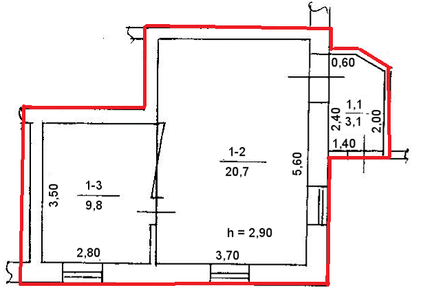
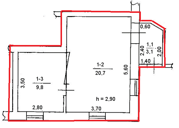
Площа:
33.60 м2
Тип об’єкта:
Будівля
Тип аукціону:
Англійський аукціон
Статус аукціону:
Аукціон не відбувся
Тип угоди:
Оренда
Розмір мінімального кроку:
10.00 ₴
Розмір гарантійного внеску:
256.84 ₴
Початок прийому пропозицій:
25.11.2021 11:17:19
Завершення прийому пропозицій:
27.12.2021 20:00:00
Лот:
UA-PS-2021-11-25-000015-1
№ лоту (УТК):
UTK170721_03С
Лот виставляється на торги (раз):
5
Стислий опис майна:
Пропонується до оренди частина будівлі площею 33,60 кв.м. в центрі смт. Градизьк. Окремий вхід. Характеристики кількість поверхів – 1; загальна площа – 33,60 кв.м.; площа запропонована до оренди 33,60 кв.м.; електропостачання - відсутнє; опалення, водопостачання – відсутні; земельна ділянка – 0, 0134 га (договір оренди ЗД).
Адреса місцезнаходження майна:
Україна, Полтавська обл., смт. Градизьк, вул. Героїв Дніпра, 15
Схожі пропозиції
23.07.2025
Полтавська обл., Лубенський р-н, с. Засулля, вул. Молодіжна, 20. Оренда – одноповерхова будівля загальною площею 189,80 кв.м. (В)
2 459.81 грн
12.96 грн / м2
Будівля
Полтавська обл., Лубенський р-н, с. Засулля, вул. Молодіжна, 20. Оренда – одноповерхова будівля загальною площею 189,80 кв.м. (В)
Україна, Полтавська обл., вул. Молодіжна, 20, Лубенський р-н, с. Засулля
26.11.2025
Полтавська обл., Кременчуцький р-н., с. Вишняки, вул. Шкільна,14. Оренда – частина будівлі площею 41,20 кв. м. (В)
500.58 грн
12.15 грн / м2
Будівля
Полтавська обл., Кременчуцький р-н., с. Вишняки, вул. Шкільна,14. Оренда – частина будівлі площею 41,20 кв. м. (В)
Україна, Полтавська обл., Вишняки, вул. Шкільна,14
Полтавська обл., Лубенський р-н, с. Засулля, вул. Молодіжна, буд.20. Оренда – одноповерхова будівля площею 189,80 кв.м. (В)
1 639.87 грн
8.64 грн / м2
Будівля
Полтавська обл., Лубенський р-н, с. Засулля, вул. Молодіжна, буд.20. Оренда – одноповерхова будівля площею 189,80 кв.м. (В)
Україна, Полтавська обл., Лубенський р-н, с. Засулля, вул. Молодіжна, буд.20
11.10.2022
Полтавська обл., м. Полтава, провулок Латишева, буд. 11-А. Оренда – Частина будівлі площею 1287,60 кв.м. (В)
59 487.12 грн
46.20 грн / м2
Будівля
Полтавська обл., м. Полтава, провулок Латишева, буд. 11-А. Оренда – Частина будівлі площею 1287,60 кв.м. (В)
Україна, Полтавська обл., м. Полтава, провулок Латишева, буд. 11-А
Переглянуті пропозиції
17.04.2025
Одеська обл., м. Одеса, вул. Катерининська, 37. Оренда – приміщення 8-го, 9-го поверхів загальною площею 335,60 кв.м (В)
83 900.00 грн
250.00 грн / м2
Приміщення
Одеська обл., м. Одеса, вул. Катерининська, 37. Оренда – приміщення 8-го, 9-го поверхів загальною площею 335,60 кв.м (В)
Україна, Одеська обл., м. Одеса, вул. Катерининська, 37.