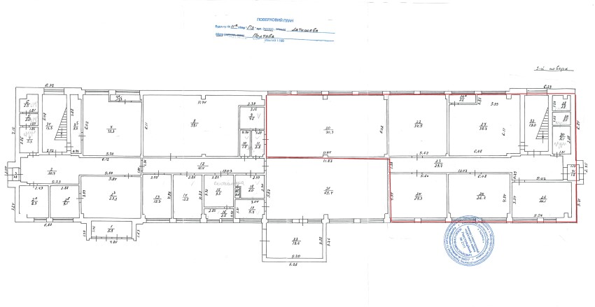
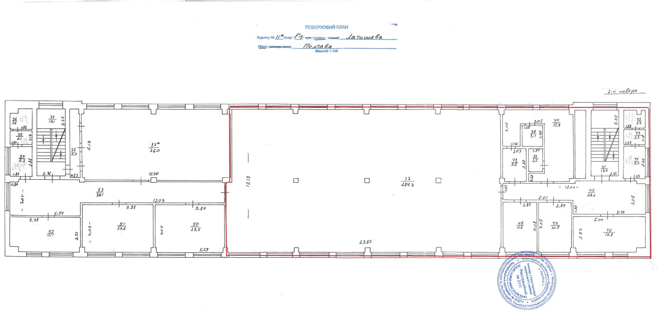
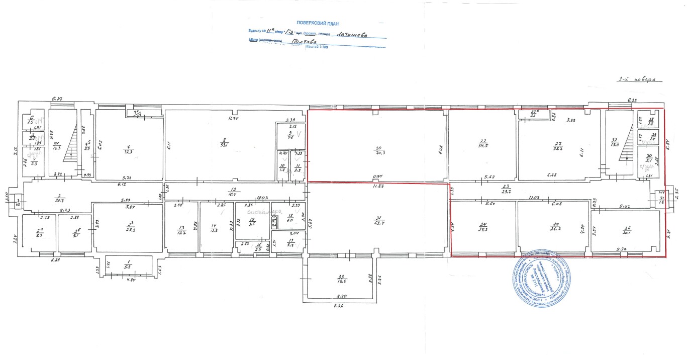
Полтавська обл., м. Полтава, провулок Латишева, буд. 11-А. Оренда – Частина будівлі площею 1287,60 кв.м. (В)

59 487.12 грн
46.20 грн / м2
Україна, Полтавська обл., м. Полтава, провулок Латишева, буд. 11-А
Перейти до аукціону на сайті
  • Інформація
  • Опис
  • Документи
Дата оголошення пропозиції:
08 вересня 2022
Площа:
1287.60 м2
Тип об’єкта:
Будівля
Тип аукціону:
Англійський аукціон
Статус аукціону:
Аукціон не відбувся
Тип угоди:
Оренда
Розмір мінімального кроку:
800.00 ₴
Розмір гарантійного внеску:
35 692.27 ₴
Початок прийому пропозицій:
08.09.2022 11:51:25
Завершення прийому пропозицій:
10.10.2022 20:00:00
Проведення аукціону:
11.10.2022 11:00:00
Лот:
CLE001-UA-20220908-06535
№ лоту (УТК):
UTK020821_21P
Лот виставляється на торги (раз):
10
Стислий опис майна:
Пропонується до оренди частина будівлі площею 1287,60 кв.м. Приміщення знаходяться на 1,2 та 3 поверсі 3-поверхової будівлі, яка розташована в районі наближеному до центру м. Полтава. Вхід з вулиці. Доступ 24/7 Характеристики: Кількість поверхів – 3; Загальна площа – 1911,90 кв.м.; Площа запропонована до оренди 1287,60 кв.м.; Опалення – наявне; Дозволена потужність – до 5 кВт; Земельна ділянка – 0,1739 га (договір оренди).
Адреса місцезнаходження майна:
Україна, Полтавська обл., м. Полтава, провулок Латишева, буд. 11-А
Схожі пропозиції
24.11.2020
ГОЛЛАНДСЬКИЙ АУКЦІОН. Полтавська обл., м. Пирятин, вул. Архітектора Хітріна, буд. 16. Оренда – будівля одноповерхова площею 69,7 кв.м. (В)
208.40 грн
2.99 грн / м2
Будівля
ГОЛЛАНДСЬКИЙ АУКЦІОН. Полтавська обл., м. Пирятин, вул. Архітектора Хітріна, буд. 16. Оренда – будівля одноповерхова площею 69,7 кв.м. (В)
Україна, Полтавська обл., м. Пирятин, вул. Архітектора Хітріна, буд. 16
26.11.2025
Полтавська обл., Лубенський р-н, с. Засулля, вул. Молодіжна, 20. Оренда – одноповерхова будівля загальною площею 189,80 кв.м. (В)
2 459.81 грн
12.96 грн / м2
Будівля
Полтавська обл., Лубенський р-н, с. Засулля, вул. Молодіжна, 20. Оренда – одноповерхова будівля загальною площею 189,80 кв.м. (В)
Україна, Полтавська обл., вул. Молодіжна, 20, Лубенський р-н, с. Засулля
05.11.2024
Полтавська обл., Кременчуцький р-н., с. Вишняки, вул. Шкільна,14;   Оренда – Частина будівлі площею 41,2 кв.м. (В)
500.58 грн
12.15 грн / м2
Будівля
Полтавська обл., Кременчуцький р-н., с. Вишняки, вул. Шкільна,14; Оренда – Частина будівлі площею 41,2 кв.м. (В)
Україна, Полтавська обл., Вишняки, вул. Шкільна,14
Полтавська обл., Полтавський р-н., смт. Диканька, вул. Полтавська, 29. Оренда – комплекс будівель площею 192,70 кв.м. (В)
2 499.32 грн
12.97 грн / м2
Будівля
Полтавська обл., Полтавський р-н., смт. Диканька, вул. Полтавська, 29. Оренда – комплекс будівель площею 192,70 кв.м. (В)
Україна, Полтавська обл., Полтавський р-н., смт. Диканька, вул. Полтавська, 29
Переглянуті пропозиції
Полтавська обл., Полтавський р-н., м. Решетилівка, вул. Полтавська, 50. Оренда – підсобне приміщення та гараж площею 50,30 кв.м. (В)
503.00 грн
10.00 грн / м2
Приміщення
Полтавська обл., Полтавський р-н., м. Решетилівка, вул. Полтавська, 50. Оренда – підсобне приміщення та гараж площею 50,30 кв.м. (В)
Україна, Полтавська обл., Полтавський р-н., м. Решетилівка, вул. Полтавська, 50
Львівська обл., м. Новояворівськ, вул. Шевченка,7. Оренда – приміщення 3-го поверху площею 314 кв.м. (В)
7 912.80 грн
25.20 грн / м2
Приміщення
Львівська обл., м. Новояворівськ, вул. Шевченка,7. Оренда – приміщення 3-го поверху площею 314 кв.м. (В)
Україна, Львівська обл., Новояворівськ, вул. Шевченка,7
24.01.2025
ДОВГОСТРОКОВА ОРЕНДА!  м. Київ, пр-т Оболонський, 32-Б ;  Оренда – приміщення 4-го поверху, площею 772,40 м2 (В)
149 179.01 грн
193.14 грн / м2
Приміщення
ДОВГОСТРОКОВА ОРЕНДА! м. Київ, пр-т Оболонський, 32-Б ; Оренда – приміщення 4-го поверху, площею 772,40 м2 (В)
Україна, м.Київ, Київ, Оболонський проспект, 32-Б
10.10.2023
Сумська обл., м. Суми, вул. Івана Сірка, буд. 9. Оренда – частина нежитлової будівлі 2-го поверху площею 566,00 кв.м. (В)
26 828.40 грн
47.40 грн / м2
Будівля
Сумська обл., м. Суми, вул. Івана Сірка, буд. 9. Оренда – частина нежитлової будівлі 2-го поверху площею 566,00 кв.м. (В)
Україна, Сумська обл., м. Суми, вул. Івана Сірка, буд. 9