ДОВГОСТРОКОВА ОРЕНДА! Рівненська обл., м. Рівне вул. В. Чорновола, 1. Оренда – приміщення 5-го поверху загальною площею 483,4 кв.м. (В)

47 068.66 грн
97.37 грн / м2
Україна, Рівненська обл., Рівне, вулиця Вячеслава Чорновола, 1
Перейти до аукціону на сайті
  • Інформація
  • Опис
  • Документи
Дата оголошення пропозиції:
17 січня 2023
Площа:
483.40 м2
Тип об’єкта:
Приміщення
Тип аукціону:
Англійський аукціон
Статус аукціону:
Аукціон не відбувся
Тип угоди:
Оренда
Розмір мінімального кроку:
500.00 ₴
Розмір гарантійного внеску:
28 241.19 ₴
Початок прийому пропозицій:
17.01.2023 13:06:11
Завершення прийому пропозицій:
16.02.2023 20:00:00
Проведення аукціону:
17.02.2023 11:10:00
Лот:
CLE001-UA-20230117-91961
№ лоту (УТК):
UTK081222_00Т
Лот виставляється на торги (раз):
2
Стислий опис майна:
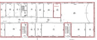
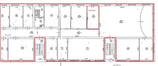
Пропонується до оренди приміщення 5-го поверху загальною площею 483,4 кв.м. Будівля знаходиться в центральній частині міста. Розвинена інфраструктура, високі автомобільний та пішохідний потоки. Поряд центральна площа та міський парк. Приміщення потребують реконструкції електромережі . Характеристики: • Кількість поверхів – 5; • Загальна площа – 2032,6 кв.м.; • Площа, запропонована до оренди – загальною площею 483,4 кв.м.; • Опалення – централізоване; • Земельна ділянка - площа 0,1652 га. (договір оренди)
Адреса місцезнаходження майна:
Україна, Рівненська обл., Рівне, вулиця Вячеслава Чорновола, 1
Схожі пропозиції
23.02.2024
Рівненська обл., м. Дубровиця, вул. Шевченка, 53. Оренда – приміщення 2-го та 3-го поверху площею 163,7 кв.м. (В)
579.50 грн
3.54 грн / м2
Приміщення
Рівненська обл., м. Дубровиця, вул. Шевченка, 53. Оренда – приміщення 2-го та 3-го поверху площею 163,7 кв.м. (В)
Україна, Рівненська обл., м. Дубровиця, вул. Шевченка, 53
18.08.2023
Рівненська обл., Рівненський р-н, с. Бочаниця, вул. В. Климчука, 6. Оренда – частина нежитлового приміщення площею 11,2 кв.м. (П)
244.27 грн
21.81 грн / м2
Приміщення
Рівненська обл., Рівненський р-н, с. Бочаниця, вул. В. Климчука, 6. Оренда – частина нежитлового приміщення площею 11,2 кв.м. (П)
Україна, Рівненська обл., Рівненський р-н, с. Бочаниця, вул. В. Климчука, 6
14.05.2024
Рівненська обл., Вараський р-н, с. Воронки, вул. Чкалова,14;   Оренда–нежитлові приміщення площею 24,9 кв.м. (В)
273.90 грн
11.00 грн / м2
Приміщення
Рівненська обл., Вараський р-н, с. Воронки, вул. Чкалова,14; Оренда–нежитлові приміщення площею 24,9 кв.м. (В)
Україна, Рівненська обл., Воронки, вул. Чкалова, 14
Рівненська обл., смт. Гоща вул. Незалежності, 37. Оренда приміщення 1-го поверху
63.80 грн
5.80 грн / м2
Приміщення
Рівненська обл., смт. Гоща вул. Незалежності, 37. Оренда приміщення 1-го поверху
Україна, Рівненська обл., смт. Гоща, вул. Незалежності, 37
Переглянуті пропозиції
26.08.2025
Полтавська обл., м. Зіньків, вулиця Воздвиженська, 36. Оренда – приміщення 2-го поверху площею 22,00 кв.м. (В)
607.20 грн
27.60 грн / м2
Приміщення
Полтавська обл., м. Зіньків, вулиця Воздвиженська, 36. Оренда – приміщення 2-го поверху площею 22,00 кв.м. (В)
Україна, Полтавська обл., Зіньків, вулиця Воздвиженська, 36
21.08.2024
м. Харків, вул. Конторська,14.Оренда – приміщення 2-го поверху площею 20,5 кв.м (В)
1 420.65 грн
69.30 грн / м2
Приміщення
м. Харків, вул. Конторська,14.Оренда – приміщення 2-го поверху площею 20,5 кв.м (В)
Україна, Харківська обл., м. Харків, вул. Конторська,14