м. Київ, вул. Миколи Голего, 8. Оренда – приміщення 1-го поверху площею 30,9 м2 (В)

3 337.20 грн
108.00 грн / м2
Україна, м.Київ, Київ, вулиця Миколи Голего, 8
Перейти до аукціону на сайті
  • Інформація
  • Опис
  • Документи
Дата оголошення пропозиції:
27 січня 2023
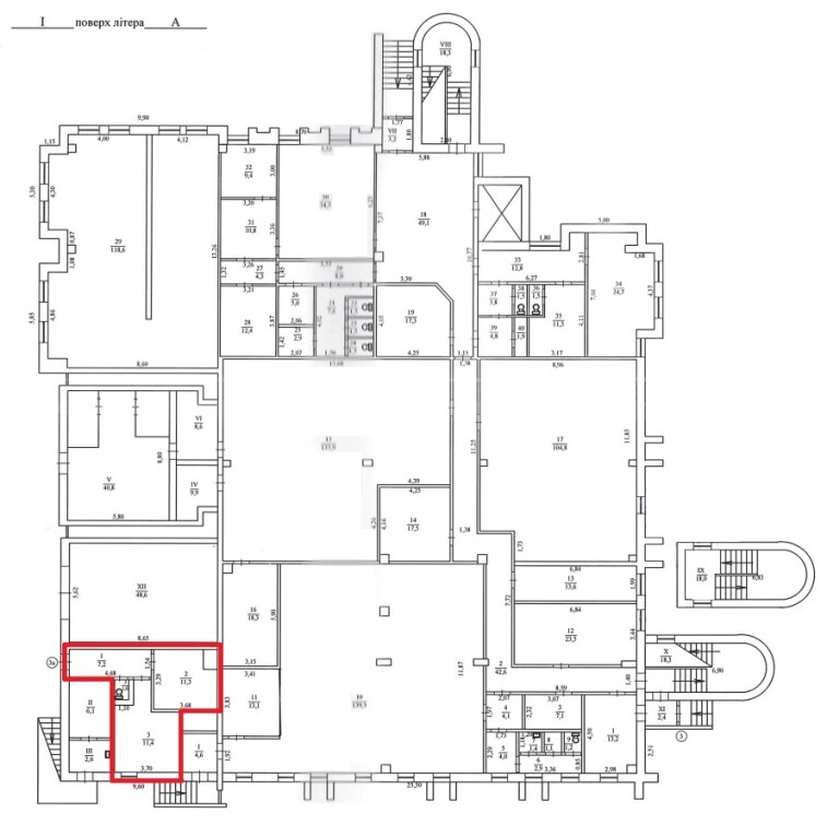
Площа:
30.90 м2
Тип об’єкта:
Приміщення
Тип аукціону:
Англійський аукціон
Статус аукціону:
Аукціон не відбувся
Тип угоди:
Оренда
Розмір мінімального кроку:
35.00 ₴
Розмір гарантійного внеску:
2 002.32 ₴
Початок прийому пропозицій:
27.01.2023 14:10:18
Завершення прийому пропозицій:
28.02.2023 20:00:00
Проведення аукціону:
01.03.2023 11:55:00
Лот:
CLE001-UA-20230127-99472
№ лоту (УТК):
UTK050822_6T
Лот виставляється на торги (раз):
6
Стислий опис майна:
Пропонуються до оренди приміщення 1-го поверху площею 30,9 м2 . Розташування будівлі: у Солом'янському районі міста Києва, місцевість Караваєві дачі. Поруч розвинена інфраструктура, зупинки маршрутного транспорту, магазини, кафе, аптеки, середній автомобільний і пішохідний потоки. Характеристики • загальна площа будівлі – 5639,8 м2 ; • сан. вузол, каналізація, водопостачання – присутне; • кількість поверхів – 4; • енергетична потужність – 3 кВт; • опалення централізоване (міське); • площа земельної ділянки – 0,3625 га*; *земельна ділянка не є предметом оренди;
Адреса місцезнаходження майна:
Україна, м.Київ, Київ, вулиця Миколи Голего, 8
Схожі пропозиції
м. Київ, вул. Дегтярівська, 28-А. Оренда – приміщення 1-го поверху площею 115,95 кв.м. (В)
37 359.09 грн
322.20 грн / м2
Приміщення
м. Київ, вул. Дегтярівська, 28-А. Оренда – приміщення 1-го поверху площею 115,95 кв.м. (В)
Україна, м.Київ, Київ, вул. Дегтярівська, 28-А
25.11.2022
м. Київ, вул. Макіївська, 3.Оренда – приміщення 2-го поверху, площею 724,10 м2 (В)
33 453.42 грн
46.20 грн / м2
Приміщення
м. Київ, вул. Макіївська, 3.Оренда – приміщення 2-го поверху, площею 724,10 м2 (В)
Україна, м.Київ, м. Київ, вулиця Макіївська, 3
31.01.2023
м. Київ, вул. Миколи Голего, 8. Оренда – приміщення 3-го поверху площею 79,7 м2 (В)
17 215.20 грн
216.00 грн / м2
Приміщення
м. Київ, вул. Миколи Голего, 8. Оренда – приміщення 3-го поверху площею 79,7 м2 (В)
Україна, м.Київ, Київ, вулиця Миколи Голего, 8
м. Київ, вул. Антоновича, 40, оренда – приміщення 1-го поверху, площею 66,60 кв.м. (В)
37 511.12 грн
563.23 грн / м2
Приміщення
м. Київ, вул. Антоновича, 40, оренда – приміщення 1-го поверху, площею 66,60 кв.м. (В)
Україна, м.Київ, Київ, вул. Антоновича, 40
Переглянуті пропозиції
09.07.2025
м. Київ, вул. Миколи Голего, 8. Оренда – приміщення 3-го поверху, загальною площею – 299,00 кв. м (В)
29 011.97 грн
97.03 грн / м2
Приміщення
м. Київ, вул. Миколи Голего, 8. Оренда – приміщення 3-го поверху, загальною площею – 299,00 кв. м (В)
Україна, м.Київ, м. Київ, вул. Миколи Голего, 8
10.09.2024
Дніпропетровська обл., м. Дніпро, пр. Богдана Хмельницького, 28а.Оренда – приміщення 2-го поверху площею 74,90 кв.м. (В)
5 159.11 грн
68.88 грн / м2
Приміщення
Дніпропетровська обл., м. Дніпро, пр. Богдана Хмельницького, 28а.Оренда – приміщення 2-го поверху площею 74,90 кв.м. (В)
Україна, Дніпропетровська обл., м. Дніпро, пр. Богдана Хмельницького, 28а
17.05.2024
Дніпропетровська обл., м. Покров, вул. Центральна, 50. Оренда – приміщення будівлі гаражів загальною площею 26,90 кв.м (В)
538.00 грн
20.00 грн / м2
Приміщення
Дніпропетровська обл., м. Покров, вул. Центральна, 50. Оренда – приміщення будівлі гаражів загальною площею 26,90 кв.м (В)
Україна, Дніпропетровська обл., м. Покров, вул. Центральна, 50
09.07.2024
ДОВГОСТРОКОВА ОРЕНДА! Дніпропетровська обл., м. Кам’янське, просп. Героїв АТО, 1. Оренда – приміщення 5-го поверху загальною площею 720,40 кв.м (В)
21 612.00 грн
30.00 грн / м2
Приміщення
ДОВГОСТРОКОВА ОРЕНДА! Дніпропетровська обл., м. Кам’янське, просп. Героїв АТО, 1. Оренда – приміщення 5-го поверху загальною площею 720,40 кв.м (В)
Україна, Дніпропетровська обл., м. Кам’янське, просп. Героїв АТО, 1