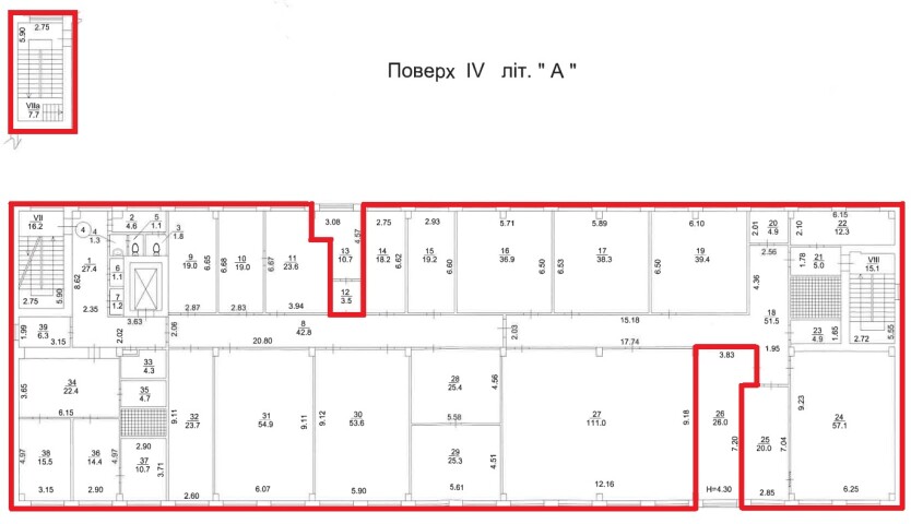
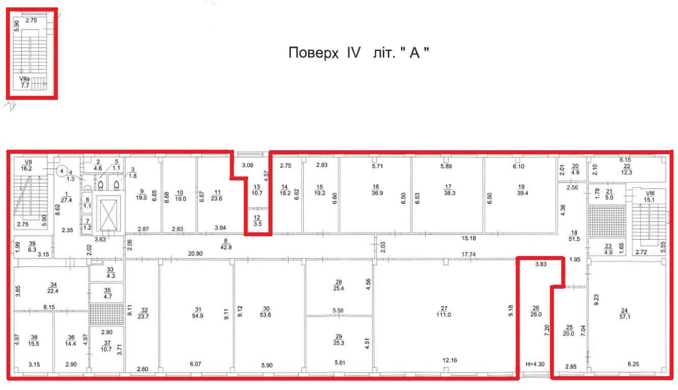
м. Київ, пр-т. Василя Порика, 12А Оренда – приміщення 4-го поверху площею 861,8 кв.м. (П)

150 556.46 грн
174.70 грн / м2
Україна, м.Київ, м. Київ, проспект Василя Порика, 12А
Перейти до аукціону на сайті
  • Інформація
  • Опис
  • Документи
Дата оголошення пропозиції:
30 січня 2023
Площа:
861.80 м2
Тип об’єкта:
Приміщення
Тип аукціону:
Англійський аукціон
Статус аукціону:
Аукціон не відбувся
Тип угоди:
Оренда
Розмір мінімального кроку:
1 500.00 ₴
Розмір гарантійного внеску:
90 333.88 ₴
Початок прийому пропозицій:
30.01.2023 10:23:33
Завершення прийому пропозицій:
01.03.2023 20:00:00
Проведення аукціону:
02.03.2023 11:35:00
Лот:
CLE001-UA-20230130-76519
№ лоту (УТК):
UTK270123_02Т
Лот виставляється на торги (раз):
1
Стислий опис майна:
Пропонуються до оренди приміщення 4-го поверху, літ. «А» площею 861,8 кв.м. Будівля розташована у Подільському районі міста Києва, житловий масив Виноградар. Поруч розвинена інфраструктура, зупинки маршрутного транспорту, супермаркети, аптеки, кафе. Вхід з двору. Доступ 24/7. Характеристики: • кількість поверхів – 4; • опалення централізоване (міське); • земельна ділянка – 0,429137 га; • загальна площа майнового комплексу – 4575,0 м2; • сан. вузол, каналізація, водопостачання – присутні; • енерго потужність – 30 кВт.
Адреса місцезнаходження майна:
Україна, м.Київ, м. Київ, проспект Василя Порика, 12А
Схожі пропозиції
20.06.2023
м. Київ, вул. Ореста Васкула (Феодори Пушиної), 27-А. Оренда – приміщення 3-го поверху, площею 34,5 кв.м. (В)
3 891.95 грн
112.81 грн / м2
Приміщення
м. Київ, вул. Ореста Васкула (Феодори Пушиної), 27-А. Оренда – приміщення 3-го поверху, площею 34,5 кв.м. (В)
Україна, м.Київ, м. Київ, вулиця Ореста Васкула, 27
09.09.2025
м. Київ, вул. Дегтярівська, 28А, літ. «А» (Шевченківський р-н). Оренда – приміщення на 1-му поверсі, площею – 35,20 кв.м (В)
4 536.58 грн
128.88 грн / м2
Приміщення
м. Київ, вул. Дегтярівська, 28А, літ. «А» (Шевченківський р-н). Оренда – приміщення на 1-му поверсі, площею – 35,20 кв.м (В)
Україна, м.Київ, Київ, 04119, м. Київ, вул. Дегтярівська, 28А, літ. «А» (Шевченківський р-н
01.03.2023
ДОВГОСТРОКОВА ОРЕНДА! м. Київ, вул. Героїв Севастополя, 39/8 літ. «Е». Оренда – приміщення 2-го та 4-го поверхів, площею 1751,8 м2 (В)
80 933.16 грн
46.20 грн / м2
Приміщення
ДОВГОСТРОКОВА ОРЕНДА! м. Київ, вул. Героїв Севастополя, 39/8 літ. «Е». Оренда – приміщення 2-го та 4-го поверхів, площею 1751,8 м2 (В)
Україна, м.Київ, Київ, вулиця Героїв Севастополя, 39
29.03.2023
Довгострокова оренда. м. Київ, вул. Горького (Антоновича), 40. Оренда – приміщення 1-го поверху, площею 538,5 кв. м. (В)