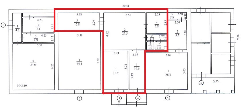
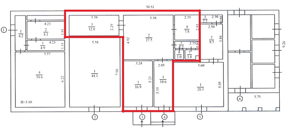
м. Київ, вул. Героїв Севастополя, 39/8, літ.«В». Оренда – приміщення 1-го поверху блоку зовнішніх споруд, площею 80,60 кв.м. (В)

11 039.78 грн
136.97 грн / м2
Україна, м.Київ, Київ, вулиця Героїв Севастополя, 39/8
Перейти до аукціону на сайті
  • Інформація
  • Опис
  • Документи
Дата оголошення пропозиції:
10 травня 2023
Площа:
80.60 м2
Тип об’єкта:
Приміщення
Тип аукціону:
Англійський аукціон
Статус аукціону:
Аукціон не відбувся
Тип угоди:
Оренда
Розмір мінімального кроку:
150.00 ₴
Розмір гарантійного внеску:
6 623.87 ₴
Початок прийому пропозицій:
10.05.2023 10:01:31
Завершення прийому пропозицій:
13.06.2023 20:00:00
Проведення аукціону:
14.06.2023 11:30:00
Лот:
CLE001-UA-20230510-10948
№ лоту (УТК):
UTK010323_1T
Лот виставляється на торги (раз):
3
Стислий опис майна:
Пропонується до оренди приміщення 1-го поверху блоку зовнішніх споруд, площею 80,60 кв.м.. Розташування будівлі у Солом'янському районі міста Києва, місцевості Відрадний та Новокараваєві дачі. Поруч розвинена інфраструктура, зупинки маршрутного транспорту, трамваю, магазини, кафе, аптеки, середній автомобільний і пішохідний потоки. Вхід з вулиці Героїв Севастополя та з прохідної. Доступ 24/7. Характеристики: - загальна площа будівлі – 216,40 кв.м.; - кількість поверхів – 1; - загальна площа земельної ділянки – 0,9713 га; - опалення – відсутнє; - сан. вузол, каналізація, водопостачання – присутне;
Адреса місцезнаходження майна:
Україна, м.Київ, Київ, вулиця Героїв Севастополя, 39/8
Схожі пропозиції
23.07.2024
ДОВГОСТРОКОВА ОРЕНДА! м. Київ, вул. Героїв Севастополя, 39/8 літ. «Е»;  Оренда – приміщення 2-го та 4-го поверхів, площею 1751,8 кв.м. (В)
239 944.05 грн
136.97 грн / м2
Приміщення
ДОВГОСТРОКОВА ОРЕНДА! м. Київ, вул. Героїв Севастополя, 39/8 літ. «Е»; Оренда – приміщення 2-го та 4-го поверхів, площею 1751,8 кв.м. (В)
Україна, м.Київ, Київ, вул. Героїв Севастополя, 39/8(Е)
м. Київ, вул. Райдужна, 27-А, оренда – приміщення підвалу, площею 274,70 кв.м. (В)
12 691.14 грн
46.20 грн / м2
Приміщення
м. Київ, вул. Райдужна, 27-А, оренда – приміщення підвалу, площею 274,70 кв.м. (В)
Україна, м.Київ, Київ, вул. Райдужна, 27-А
13.05.2025
м. Київ, вул. Джона Маккейна, 40, літ. «А» (Печерський р-н). Оренда – група приміщень на 3-му поверсі, площею 62,80 кв. м. (В)
14 863.50 грн
217.94 грн / м2
Приміщення
м. Київ, вул. Джона Маккейна, 40, літ. «А» (Печерський р-н). Оренда – група приміщень на 3-му поверсі, площею 62,80 кв. м. (В)
Україна, м.Київ, Київ, 01042, м. Київ, вул. Джона Маккейна, 40, літ. «А»
Переглянуті пропозиції
14.03.2023
Дніпропетровська обл., м. Дніпро, пр. Пушкіна, 75а. Оренда – приміщення 1-го поверху площею 11,5 кв.м. (В)
760.73 грн
66.15 грн / м2
Приміщення
Дніпропетровська обл., м. Дніпро, пр. Пушкіна, 75а. Оренда – приміщення 1-го поверху площею 11,5 кв.м. (В)
Україна, Дніпропетровська обл., Дніпро, вулиця Пушкіна, 75
29.02.2024
Дніпропетровська обл., м. Жовті Води, вул. Свободи, 39;   Оренда – приміщення 3-го поверху площею 34,1 кв.м. (В)
511.50 грн
15.00 грн / м2
Приміщення
Дніпропетровська обл., м. Жовті Води, вул. Свободи, 39; Оренда – приміщення 3-го поверху площею 34,1 кв.м. (В)
Україна, Дніпропетровська обл., Жовті Води, бульвар Свободи, 39
21.03.2025
м. Київ, вул. Джона Маккейна, 40, літ. «А» (Печерський р-н). Оренда – група приміщень на 1-му поверсі, площею 65,60 кв.м. (В)
22 180.67 грн
338.12 грн / м2
Приміщення
м. Київ, вул. Джона Маккейна, 40, літ. «А» (Печерський р-н). Оренда – група приміщень на 1-му поверсі, площею 65,60 кв.м. (В)
Україна, м.Київ, Київ, вулиця Джона Маккейна, 40