м. Київ, вул. Джона Маккейна, 40, літ. «А» (Печерський р-н). Оренда – група приміщень на 3-му поверсі, площею 62,80 кв. м. (В)

14 863.50 грн
217.94 грн / м2
Україна, м.Київ, Київ, 01042, м. Київ, вул. Джона Маккейна, 40, літ. «А»
Перейти до аукціону на сайті
  • Інформація
  • Опис
  • Документи
Дата оголошення пропозиції:
12 квітня 2025
Площа:
68.20 м2
Тип об’єкта:
Приміщення
Тип аукціону:
Англійський аукціон
Статус аукціону:
Аукціон не відбувся
Тип угоди:
Оренда
Розмір мінімального кроку:
500.00 ₴
Розмір гарантійного внеску:
8 918.10 ₴
Початок прийому пропозицій:
12.04.2025 22:03:54
Завершення прийому пропозицій:
12.05.2025 20:00:00
Проведення аукціону:
13.05.2025 11:10:00
Лот:
CLE001-UA-20250412-19812
№ лоту (УТК):
UTK070325_01U
Лот виставляється на торги (раз):
2
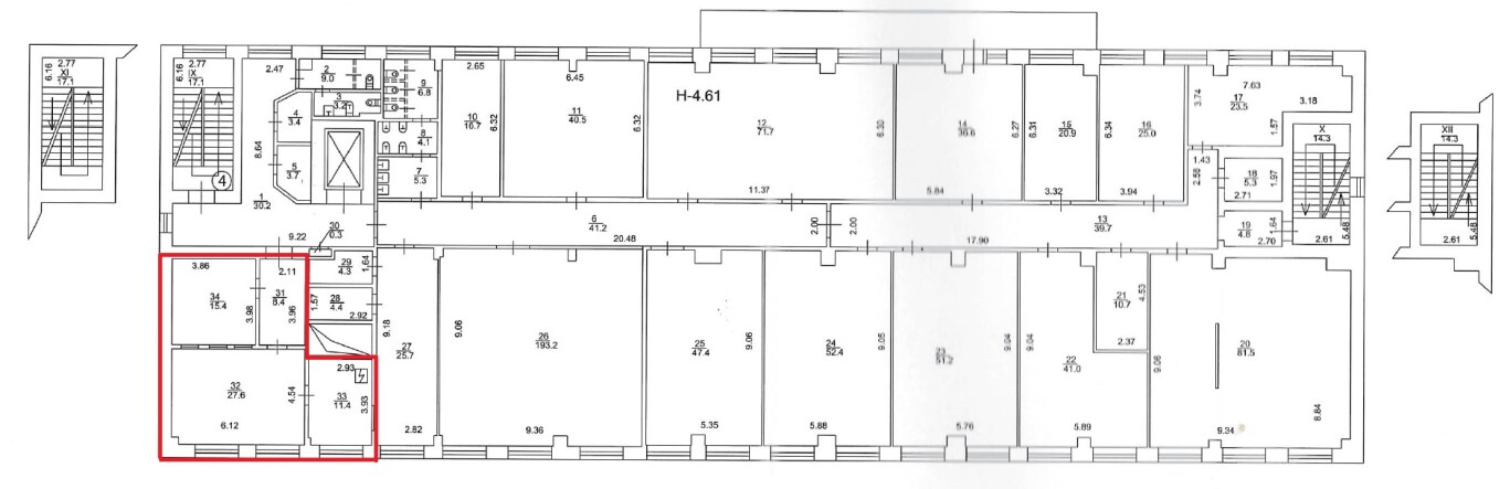
Стислий опис майна:
До оренди пропонується група приміщень на 3-му поверсі, площею 62,80 кв. м. Будівля знаходиться в Печерському районі міста Києва, місцевість Саперне поле, в пішому доступі до ст. м. Дружби Народів (до 5 хв.) та ст. м. Либідська, ст. м. Печерська (до 10 хв.), у районі розвинена інфраструктура й відмінна транспортна розв’язка, поруч торгові центри, супермаркети, парки. Характеристики • кількість поверхів – 4; • загальна площа – 4 778,70 кв. м; • площа запропонована до оренди – 62,80 кв.м; • опалення централізоване (міське); • водопостачання, каналізація, сан. вузол – присутні (на поверсі); • земельна ділянка – 0,46 га (договір оренди).
Адреса місцезнаходження майна:
Україна, м.Київ, Київ, 01042, м. Київ, вул. Джона Маккейна, 40, літ. «А»
Схожі пропозиції
26.10.2023
м. Київ, вул. Героїв Севастополя, 39/8, літ.«В». Оренда – приміщення 1-го поверху блоку зовнішніх споруд, площею 80,60 кв.м. (В)
15 771.00 грн
195.67 грн / м2
Приміщення
м. Київ, вул. Героїв Севастополя, 39/8, літ.«В». Оренда – приміщення 1-го поверху блоку зовнішніх споруд, площею 80,60 кв.м. (В)
Україна, м.Київ, Київ, вулиця Героїв Севастополя, 39/8
08.05.2024
м. Київ, бульвар Бучми Амвросія, 5;   Оренда – приміщення 3-го та 4-го поверхів технічної будівлі АТС-550 (літ. «Б»), площею 1006,83 кв.м. (В)
92 628.36 грн
92.00 грн / м2
Приміщення
м. Київ, бульвар Бучми Амвросія, 5; Оренда – приміщення 3-го та 4-го поверхів технічної будівлі АТС-550 (літ. «Б»), площею 1006,83 кв.м. (В)
Україна, м.Київ, м. Київ, вулиця Амвросія Бучми, 5 літ.Б
ДОВГОСТРОКОВА ОРЕНДА! м. Київ, вул. Антоновича, 40. Оренда – приміщення 5-го поверху, площею 768,70 м2 (В)
235 222.20 грн
306.00 грн / м2
Приміщення
ДОВГОСТРОКОВА ОРЕНДА! м. Київ, вул. Антоновича, 40. Оренда – приміщення 5-го поверху, площею 768,70 м2 (В)
Україна, м.Київ, Київ, вул. Антоновича, 40
12.08.2022
ДОВГОСТРОКОВА ОРЕНДА! м. Київ, вул. Ісаакяна, 3. Оренда – Приміщення цокольного поверху площею 400,80 кв.м. (В)