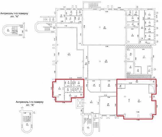
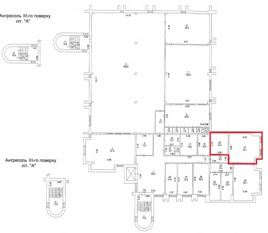
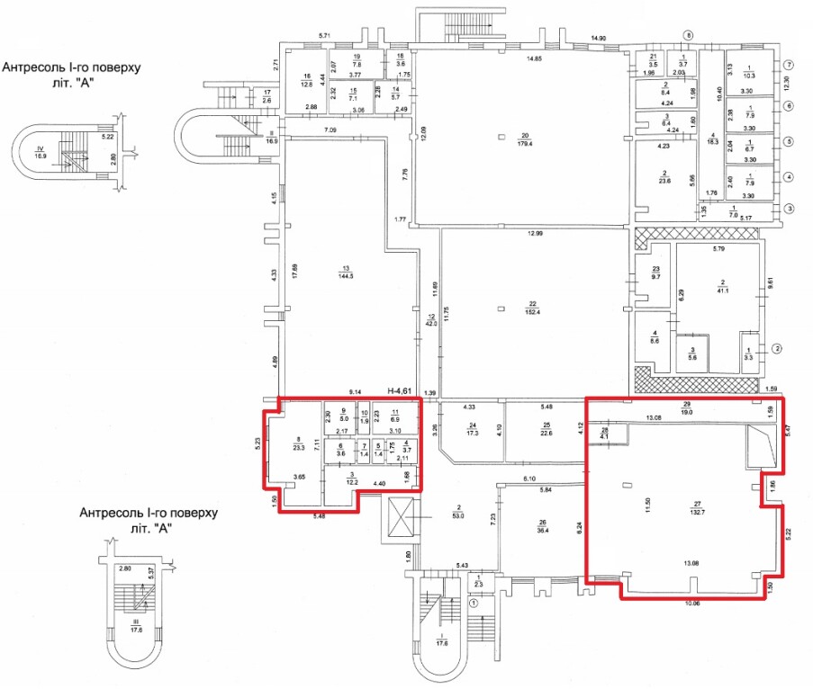
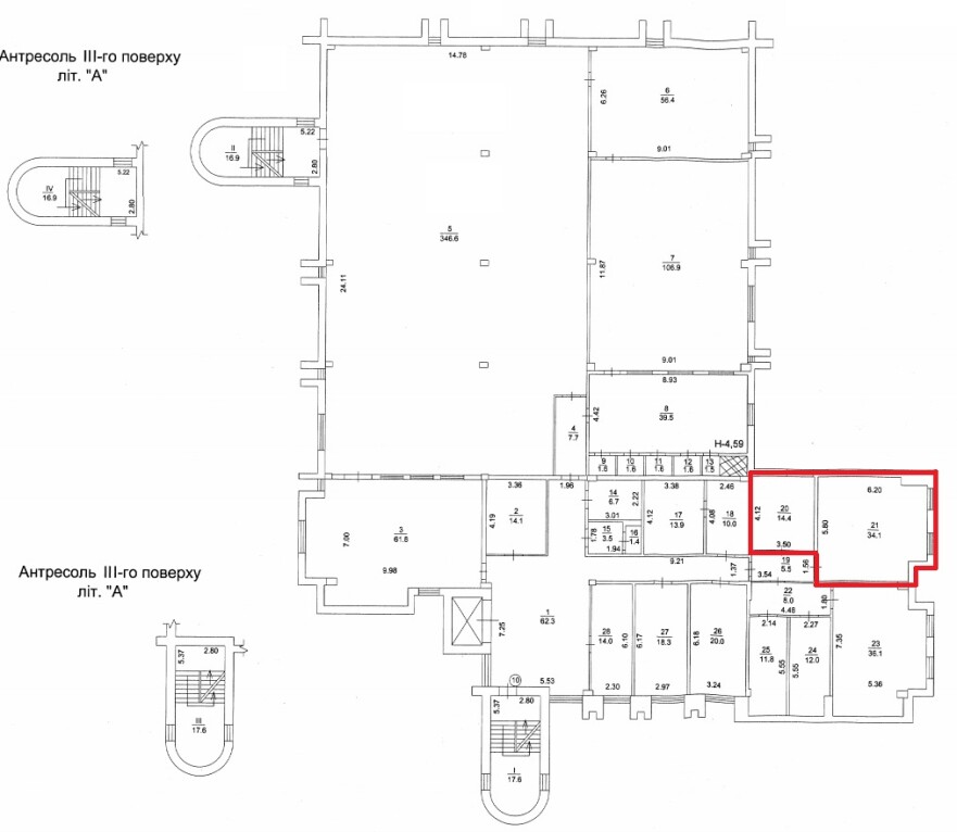
м. Київ, вул. Архітектора Вербицького, 3. Оренда – приміщення 1-го та 3-го поверху площею 263,7 м2 (В)

12 182.94 грн
46.20 грн / м2
Україна, м.Київ, Київ, вулиця Архітектора Вербицького, 3
Перейти до аукціону на сайті
  • Інформація
  • Опис
  • Документи
Дата оголошення пропозиції:
15 травня 2023
Площа:
263.70 м2
Тип об’єкта:
Приміщення
Тип аукціону:
Англійський аукціон
Статус аукціону:
Аукціон не відбувся
Тип угоди:
Оренда
Розмір мінімального кроку:
200.00 ₴
Розмір гарантійного внеску:
7 309.76 ₴
Початок прийому пропозицій:
15.05.2023 10:13:06
Завершення прийому пропозицій:
19.06.2023 20:00:00
Проведення аукціону:
20.06.2023 11:05:00
Лот:
CLE001-UA-20230515-36525
№ лоту (УТК):
UTK181122_01T
Лот виставляється на торги (раз):
6
Стислий опис майна:
Пропонується до оренди приміщення 1-го та 3-го поверху площею 263,7 м2 . Будівля знаходиться в Дарницькому районі міста Києва, житловий масив Харківський. Зупинки маршрутного транспорту, супермаркети, торгово-розважальні центри. Найближчі станції метро «Харківська», «Вирлиця». Вхід з двору. Характеристики: • загальна площа будівлі – 4804,7 м2 ; • кількість поверхів – 5; • опалення централізоване (міське); • земельна ділянка – 0,5530 га; • каналізація, водозабезпечення, сан. вузол – присутні
Адреса місцезнаходження майна:
Україна, м.Київ, Київ, вулиця Архітектора Вербицького, 3
Схожі пропозиції
11.10.2022
м. Київ, вул. Миколи Голего, 8. Оренда – приміщення 1-го поверху площею 30,90 м2 (В)
6 674.40 грн
216.00 грн / м2
Приміщення
м. Київ, вул. Миколи Голего, 8. Оренда – приміщення 1-го поверху площею 30,90 м2 (В)
Україна, м.Київ, Київ, вулиця Миколи Голего, 8
30.04.2025
м. Київ, вул. Ореста Васкула, 27 (Святошинський р-н). Оренда – приміщення на 3-му поверсі, загальною площею - 521,10 м.кв. (В)
83 626.13 грн
160.48 грн / м2
Приміщення
м. Київ, вул. Ореста Васкула, 27 (Святошинський р-н). Оренда – приміщення на 3-му поверсі, загальною площею - 521,10 м.кв. (В)
Україна, м.Київ, Київ, вулиця Ореста Васкула, 27
23.07.2024
ДОВГОСТРОКОВА ОРЕНДА! м. Київ, вул. Героїв Севастополя, 39/8 літ. «Е»;  Оренда – приміщення 2-го та 4-го поверхів, площею 1751,8 кв.м. (В)
239 944.05 грн
136.97 грн / м2
Приміщення
ДОВГОСТРОКОВА ОРЕНДА! м. Київ, вул. Героїв Севастополя, 39/8 літ. «Е»; Оренда – приміщення 2-го та 4-го поверхів, площею 1751,8 кв.м. (В)
Україна, м.Київ, Київ, вул. Героїв Севастополя, 39/8(Е)
23.07.2024
м. Київ, вул. Героїв Севастополя, 39/8, літ.«В»;   Оренда – приміщення 1-го поверху блоку зовнішніх споруд, площею 80,60 кв.м. (В)
15 771.00 грн
195.67 грн / м2
Приміщення
м. Київ, вул. Героїв Севастополя, 39/8, літ.«В»; Оренда – приміщення 1-го поверху блоку зовнішніх споруд, площею 80,60 кв.м. (В)
Україна, м.Київ, Київ, вул. Героїв Севастополя, 39/8(В)
Переглянуті пропозиції
05.07.2023
Дніпропетровська обл., Верхньодніпровський р-н, с. Малоолександрівка, вул. Центральна, 45. Оренда – приміщення площею 37,30 кв.м. (В)
500.19 грн
13.41 грн / м2
Приміщення
Дніпропетровська обл., Верхньодніпровський р-н, с. Малоолександрівка, вул. Центральна, 45. Оренда – приміщення площею 37,30 кв.м. (В)
Україна, Дніпропетровська обл., Верхньодніпровський р-н, с. Малоолександрівка, вул. Центральна, 45
12.08.2022
м. Київ, вул. Ісаакяна, 3. Оренда – Приміщення 1-го поверху площею 57,90 кв.м. (В)
10 961.63 грн
189.32 грн / м2
Приміщення
м. Київ, вул. Ісаакяна, 3. Оренда – Приміщення 1-го поверху площею 57,90 кв.м. (В)
Україна, м.Київ, Київ, вул. Ісаакяна, 3
Дніпропетровська обл., м. Дніпро, вул. Князя Ярослава Мудрого, 3. Оренда – приміщення  5-го  поверху площею 23,10 кв.м. (В)
2 494.80 грн
108.00 грн / м2
Приміщення
Дніпропетровська обл., м. Дніпро, вул. Князя Ярослава Мудрого, 3. Оренда – приміщення 5-го поверху площею 23,10 кв.м. (В)
Україна, Дніпропетровська обл., м. Дніпро, вул. Князя Ярослава Мудрого, 3
13.10.2023
Дніпропетровська обл., м. Дніпро, вул. Січових Стрільців, 10. Оренда – приміщення цокольного поверху площею 47,90 кв.м. (В)
5 006.51 грн
104.52 грн / м2
Приміщення
Дніпропетровська обл., м. Дніпро, вул. Січових Стрільців, 10. Оренда – приміщення цокольного поверху площею 47,90 кв.м. (В)
Україна, Дніпропетровська обл., м. Дніпро, вул. Січових Стрільців, 10