Рівненська обл., м. Рівне, вул. В. Чорновола, 1.Оренда – приміщення 1-го та 2-го поверху загальною площею 147,8 м. кв. (В)

17 563.07 грн
118.83 грн / м2
Україна, Рівненська обл., м. Рівне, вул. В. Чорновола, 1
Перейти до аукціону на сайті
  • Інформація
  • Опис
  • Документи
Дата оголошення пропозиції:
17 листопада 2023
Площа:
147.80 м2
Тип об’єкта:
Приміщення
Тип аукціону:
Англійський аукціон
Статус аукціону:
Аукціон не відбувся
Тип угоди:
Оренда
Розмір мінімального кроку:
500.00 ₴
Розмір гарантійного внеску:
10 537.84 ₴
Початок прийому пропозицій:
17.11.2023 17:20:20
Завершення прийому пропозицій:
18.12.2023 20:00:00
Проведення аукціону:
19.12.2023 12:00:00
Лот:
CLE001-UA-20231117-10231
№ лоту (УТК):
UTK161023_31P
Лот виставляється на торги (раз):
2
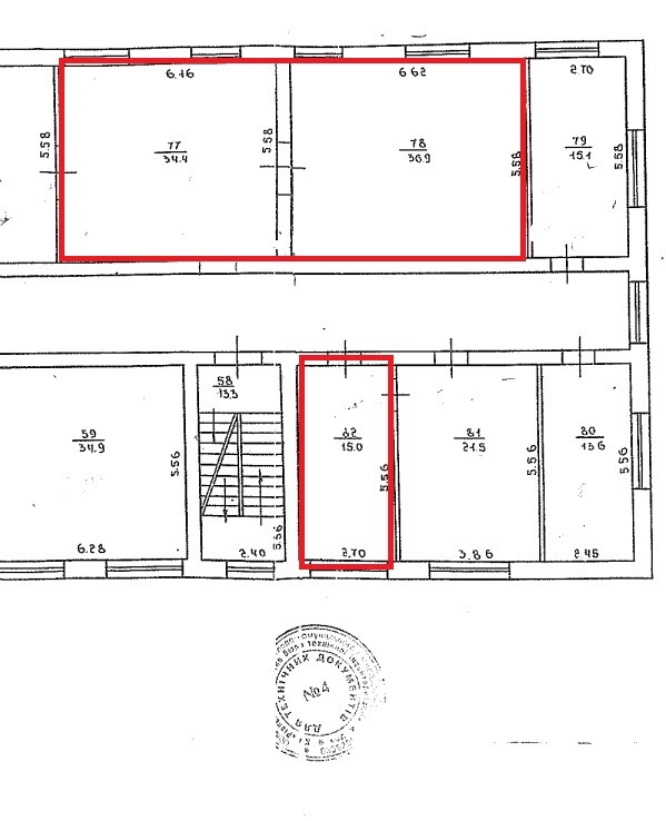
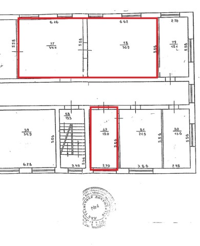
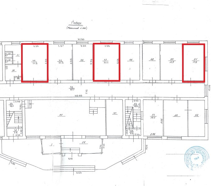
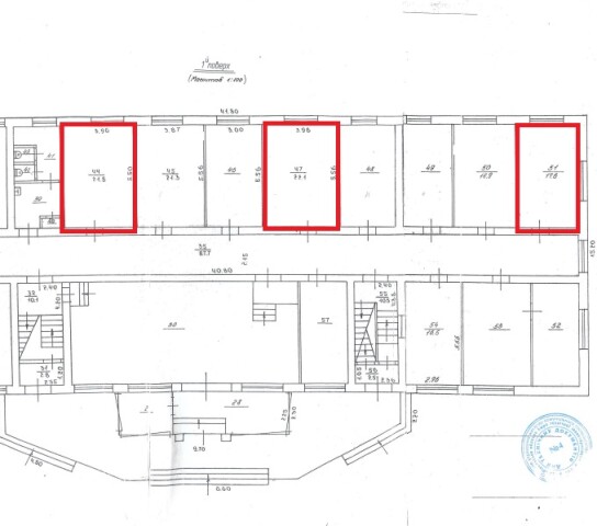
Стислий опис майна:
Пропонується до оренди приміщення 1-го та 2-го поверху загальною площею 147,8 м. кв. Будівля знаходиться в центральній частині міста. Розвинена інфраструктура, високі автомобільний та пішохідний потоки. Поряд центральна площа та міський парк. Приміщення потребують реконструкції електромережі . Характеристики: Кількість поверхів – 5; Загальна площа – 2032,6 м. кв ; Площа, запропонована до оренди – загальною площею 147,8 м.кв. ; Опалення – централізоване; Земельна ділянка - площа 0,1652 га. (договір оренди)
Адреса місцезнаходження майна:
Україна, Рівненська обл., м. Рівне, вул. В. Чорновола, 1
Схожі пропозиції
Рівненська обл., Вараський р-н. смт. Володимирець  вул. Поштова, 23. Оренда – приміщення 1-го поверху площею 52,8 кв.м. (В)
1 172.16 грн
22.20 грн / м2
Приміщення
Рівненська обл., Вараський р-н. смт. Володимирець вул. Поштова, 23. Оренда – приміщення 1-го поверху площею 52,8 кв.м. (В)
Україна, Рівненська обл., Вараський р-н. смт. Володимирець , вул. Поштова ,23
18.01.2024
Рівненська обл., м. Рівне, вул. Транспортна, 14.Оренда – приміщення 1-го та 2-го поверху площею 296,4 м. кв. (П)
14 049.36 грн
47.40 грн / м2
Приміщення
Рівненська обл., м. Рівне, вул. Транспортна, 14.Оренда – приміщення 1-го та 2-го поверху площею 296,4 м. кв. (П)
Україна, Рівненська обл., м. Рівне, вул. Транспортна, 14
Рівненська обл., Сарненський р-н, смт. Степань, вул. Київська, 18. Оренда – приміщення 2-го поверху
1 603.01 грн
16.56 грн / м2
Приміщення
Рівненська обл., Сарненський р-н, смт. Степань, вул. Київська, 18. Оренда – приміщення 2-го поверху
Україна, Рівненська обл., Сарненський р-н, смт. Степань, вул. Київська, буд. 8
Одеська обл., м. Одеса, вул. Героїв оборони Одеси, 84. Оренда – приміщення 1-го поверху 4-х поверхової будівлі площею 85,50 кв.м (В)
17 698.50 грн
192.79 грн / м2
Приміщення
Одеська обл., м. Одеса, вул. Героїв оборони Одеси, 84. Оренда – приміщення 1-го поверху 4-х поверхової будівлі площею 85,50 кв.м (В)
Україна, Рівненська обл., м. Дубровиця, вул. Шевченка, 53
Переглянуті пропозиції
14.06.2023
Львівська обл., м. Новий Розділ, пр. Шевченка, 30. Оренда – приміщення 2-го поверху, площею 17,80 кв. м. (В)
500.18 грн
28.10 грн / м2
Приміщення
Львівська обл., м. Новий Розділ, пр. Шевченка, 30. Оренда – приміщення 2-го поверху, площею 17,80 кв. м. (В)
Україна, Львівська обл., м. Новий Розділ, пр. Шевченка, 30