м. Харків, пр-т. Г. Сталінграду, 3. Оренда – приміщення 3-го поверху площею 344,7 кв.м. (В)

18 820.62 грн
54.60 грн / м2
Україна, Харківська обл., м. Харків, пр-т. Г. Сталінграду, 3
Перейти до аукціону на сайті
  • Інформація
  • Опис
  • Документи
Дата оголошення пропозиції:
21 листопада 2023
Площа:
344.70 м2
Тип об’єкта:
Приміщення
Тип аукціону:
Англійський аукціон
Статус аукціону:
Аукціон не відбувся
Тип угоди:
Оренда
Розмір мінімального кроку:
300.00 ₴
Розмір гарантійного внеску:
11 292.37 ₴
Початок прийому пропозицій:
21.11.2023 12:18:07
Завершення прийому пропозицій:
19.12.2023 20:00:00
Проведення аукціону:
20.12.2023 11:55:00
Лот:
CLE001-UA-20231121-40637
№ лоту (УТК):
UTK070823_07P
Лот виставляється на торги (раз):
4
Стислий опис майна:
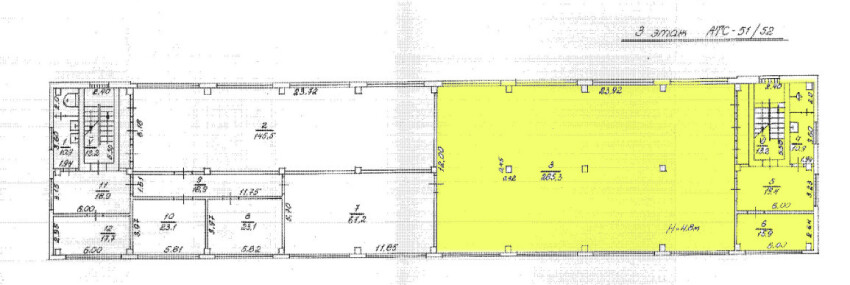
Пропонується до оренди приміщення третього поверху площею 344,7 кв.м. Будівля в спальному районі міста Харкова. 10 хв до зупинки транспорту. Характеристики: Кількість поверхів – 4. Загальна площа – 3 761,8 кв.м. Площа запропонована до оренди – 344,7 кв.м. Дозволена потужність – 20 кВт. Теплопостачання-відсутнє. Земельна ділянка – 0,6208 га.
Адреса місцезнаходження майна:
Україна, Харківська обл., м. Харків, пр-т. Г. Сталінграду, 3
Схожі пропозиції
11.12.2024
м. Харків, пр-т. Г. Сталінграду, 3. Оренда – приміщення 3-го поверху площею 344,7 кв.м. (В)
18 820.62 грн
54.60 грн / м2
Приміщення
м. Харків, пр-т. Г. Сталінграду, 3. Оренда – приміщення 3-го поверху площею 344,7 кв.м. (В)
Україна, Харківська обл., м. Харків, пр-т. Г. Сталінграду, 3
24.09.2024
м.Харків, вул. Конторська,14. Оренда – приміщення 1-го поверху, площею 15,2 кв.м  (В)
1 464.06 грн
96.32 грн / м2
Приміщення
м.Харків, вул. Конторська,14. Оренда – приміщення 1-го поверху, площею 15,2 кв.м (В)
Україна, Харківська обл., м. Харків, вул. Конторська,14
11.12.2024
Харківська обл., м. Лозова, вул. Михайла Грушевського, 7. Оренда – приміщення 3-го поверху, площею 1243,7 кв.м. (В)
6 803.04 грн
5.47 грн / м2
Приміщення
Харківська обл., м. Лозова, вул. Михайла Грушевського, 7. Оренда – приміщення 3-го поверху, площею 1243,7 кв.м. (В)
Україна, Харківська обл., м. Лозова, вул. Михайла Грушевського, 7
16.11.2023
м. Харків, пр-т. Г. Сталінграду, 169. Оренда – приміщення 3-го поверху площею 320,9 кв.м. (В)
17 521.14 грн
54.60 грн / м2
Приміщення
м. Харків, пр-т. Г. Сталінграду, 169. Оренда – приміщення 3-го поверху площею 320,9 кв.м. (В)
Україна, Харківська обл., м. Харків, пр-т. Г. Сталінграду, 169
Переглянуті пропозиції
Полтавська обл., смт. Шишаки, вул. Корніліча, буд. 10. Оренда – приміщення 2-го поверху
196.48 грн
6.14 грн / м2
Приміщення
Полтавська обл., смт. Шишаки, вул. Корніліча, буд. 10. Оренда – приміщення 2-го поверху
Україна, Полтавська обл., смт. Шишаки, вул. Корніліча, буд. 10
Київська обл., м. Миронівка, вул. Соборності, 54 літ. «Г», оренда – приміщення 2-го поверху, площею 151,10 м. кв. (В)
2 538.48 грн
16.80 грн / м2
Приміщення
Київська обл., м. Миронівка, вул. Соборності, 54 літ. «Г», оренда – приміщення 2-го поверху, площею 151,10 м. кв. (В)
Україна, Київська обл., Миронівка, вул. Соборності, 54
19.08.2022
Тернопільська обл., Чортківський р-н, м. Монастириська, вул. Шевченка, 23. Оренда – приміщення 3-го поверху площею 167,30 кв.м. (В)
4 666.00 грн
27.89 грн / м2
Приміщення
Тернопільська обл., Чортківський р-н, м. Монастириська, вул. Шевченка, 23. Оренда – приміщення 3-го поверху площею 167,30 кв.м. (В)
Україна, Харківська обл., Чортківський р-н, м. Монастириська, вул. Шевченка, 23
07.08.2024
м.Харків, вул. Амосова,13 в. Оренда – приміщення четвертого поверху площею 77,6 кв.м (П)
6 733.35 грн
86.77 грн / м2
Приміщення
м.Харків, вул. Амосова,13 в. Оренда – приміщення четвертого поверху площею 77,6 кв.м (П)
Україна, Харківська обл., м. Харків, вул. Амосова,13 в