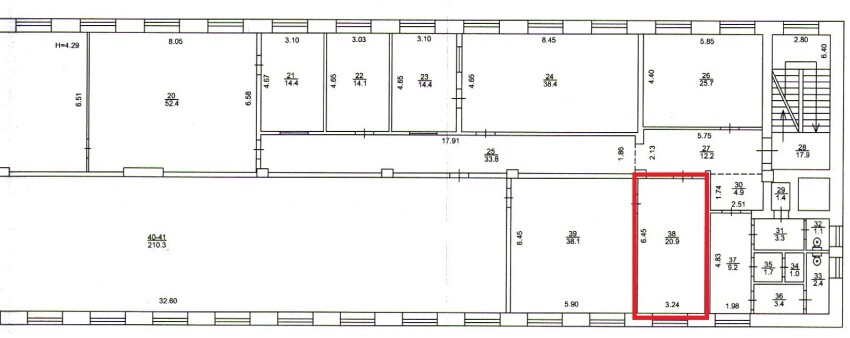
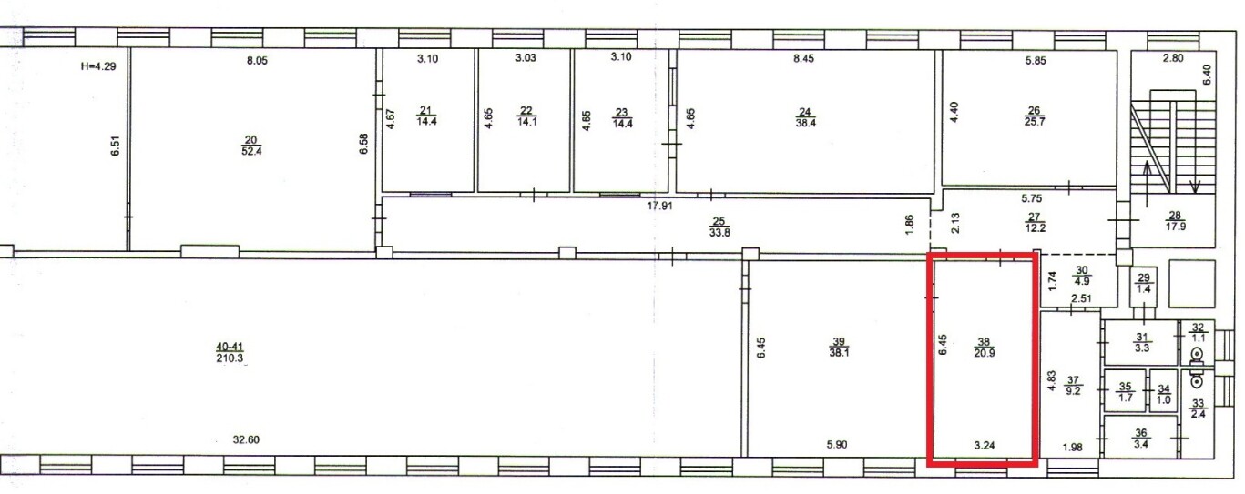
Вінницька обл., м. Вінниця, вул.Соборна, 8; Оренда – приміщення 2-го поверху площею 20,9 кв.м. (В)

2 538.72 грн
121.47 грн / м2
Україна, Вінницька обл., Вінниця, вулиця Соборна, 8
Перейти до аукціону на сайті
  • Інформація
  • Опис
  • Документи
Дата оголошення пропозиції:
11 грудня 2023
Площа:
20.90 м2
Тип об’єкта:
Приміщення
Тип аукціону:
Англійський аукціон
Статус аукціону:
Аукціон не відбувся
Тип угоди:
Оренда
Розмір мінімального кроку:
40.00 ₴
Розмір гарантійного внеску:
1 523.23 ₴
Початок прийому пропозицій:
11.12.2023 10:55:32
Завершення прийому пропозицій:
11.01.2024 20:00:00
Проведення аукціону:
12.01.2024 11:35:00
Лот:
CLE001-UA-20231211-10787
№ лоту (УТК):
UTK210723_04T
Лот виставляється на торги (раз):
4
Стислий опис майна:
Пропонується до оренди офісне приміщення 2 поверху будівлі поштамту площею 20,9 кв.м. Будівля знаходиться в центральній частині м. Вінниця в діловому та культурному центрі міста, поруч Вінницька міська та обласна ради, ресторани, торгові центри(ТРЦ «Скайпарк», «Варшава»), православний та католицький собори. Зручна транспортна розв’язка та інфраструктура. Характеристики - Кількість поверхів – 4; - Загальна площа – 5062,3 кв.м; - Площа пропонована до оренди – 20,9 кв.м.; - Електропостачання, теплопостачання.
Адреса місцезнаходження майна:
Україна, Вінницька обл., Вінниця, вулиця Соборна, 8
Схожі пропозиції
Вінницька обл., м. Вінниця, вул. Соборна, 8, оренда – Приміщення 1го поверху площею 154,5 кв.м. (В)
14 957.15 грн
96.81 грн / м2
Приміщення
Вінницька обл., м. Вінниця, вул. Соборна, 8, оренда – Приміщення 1го поверху площею 154,5 кв.м. (В)
Україна, Вінницька обл., Вінниця, вул. Соборна, 8
Вінницька обл., Гайсинський р-н. смт Чечельник, вул. Свято-Михайлівська, 2. Оренда – приміщення 2-го поверху площею 21,1 кв.м. (В)
810.24 грн
38.40 грн / м2
Приміщення
Вінницька обл., Гайсинський р-н. смт Чечельник, вул. Свято-Михайлівська, 2. Оренда – приміщення 2-го поверху площею 21,1 кв.м. (В)
Україна, Вінницька обл., Гайсинський р-н. смт Чечельник, вул. Свято-Михайлівська, 2
09.07.2025
Вінницька обл., м. Вінниця, вул. Соборна, 8. Оренда – приміщення 2-го поверху площею 38,10 кв.м. (В)
7 223.00 грн
189.58 грн / м2
Приміщення
Вінницька обл., м. Вінниця, вул. Соборна, 8. Оренда – приміщення 2-го поверху площею 38,10 кв.м. (В)
Україна, Вінницька обл., м. Вінниця, вул. Соборна, 8
10.04.2024
Вінницька обл., Гайсинський р-н., м. Тростянець, вул. Соборна, 47;   Оренда – приміщення 1 поверху площею 35,0 кв.м. (В)
1 302.00 грн
37.20 грн / м2
Приміщення
Вінницька обл., Гайсинський р-н., м. Тростянець, вул. Соборна, 47; Оренда – приміщення 1 поверху площею 35,0 кв.м. (В)
Україна, Вінницька обл., Тростянець, вулиця Соборна, 47
Переглянуті пропозиції
14.02.2023
Дніпропетровська обл., м. Кривий Ріг, вул. Головка Адмірала, 71. Оренда – приміщення 2-го поверху, площею 306,9 кв.м. (В)
8 986.03 грн
29.28 грн / м2
Приміщення
Дніпропетровська обл., м. Кривий Ріг, вул. Головка Адмірала, 71. Оренда – приміщення 2-го поверху, площею 306,9 кв.м. (В)
Україна, Дніпропетровська обл., Кривий Ріг, вулиця Адмірала Головка, 71
21.01.2025
Полтавська обл., м. Полтава, провулок Латишева, буд. 11-А. Оренда – Частина будівлі площею 1287,60 кв.м. (В)
61 032.24 грн
47.40 грн / м2
Будівля
Полтавська обл., м. Полтава, провулок Латишева, буд. 11-А. Оренда – Частина будівлі площею 1287,60 кв.м. (В)
Україна, Полтавська обл., м. Полтава, провулок Латишева, буд. 11-А
11.12.2024
Сумська обл., Охтирський район, м. Тростянець, вул. Сосновий Бір, буд. 24. Оренда – нежитлове приміщення площею 57,70 кв.м. (В)
587.96 грн
10.19 грн / м2
Приміщення
Сумська обл., Охтирський район, м. Тростянець, вул. Сосновий Бір, буд. 24. Оренда – нежитлове приміщення площею 57,70 кв.м. (В)
Україна, Сумська обл., Охтирський район, м. Тростянець, вул. Сосновий Бір, буд. 24
Івано-Франківська обл., м. Коломия, вул. Чорновола, 45. Оренда приміщень 5-го поверху
7 560.53 грн
14.88 грн / м2
Приміщення
Івано-Франківська обл., м. Коломия, вул. Чорновола, 45. Оренда приміщень 5-го поверху
Україна, Івано-Франківська обл., м. Коломия, вул. Чорновола, 45