Дніпропетровська обл., м. Кам’янське, просп. Свободи, 44. Оренда – приміщення 5-го поверху загальною площею 237,20 кв.м (В)

15 085.92 грн
63.60 грн / м2
Україна, Дніпропетровська обл., м. Кам’янське, просп. Свободи, 44
Перейти до аукціону на сайті
  • Інформація
  • Опис
  • Документи
Дата оголошення пропозиції:
23 лютого 2024
Площа:
237.20 м2
Тип об’єкта:
Приміщення
Тип аукціону:
Англійський аукціон
Статус аукціону:
Аукціон не відбувся
Тип угоди:
Оренда
Розмір мінімального кроку:
500.00 ₴
Розмір гарантійного внеску:
9 051.55 ₴
Початок прийому пропозицій:
23.02.2024 14:43:51
Завершення прийому пропозицій:
25.03.2024 20:00:00
Проведення аукціону:
26.03.2024 11:50:00
Лот:
CLE001-UA-20240223-97398
№ лоту (УТК):
UTK230224_16P
Лот виставляється на торги (раз):
1
Стислий опис майна:
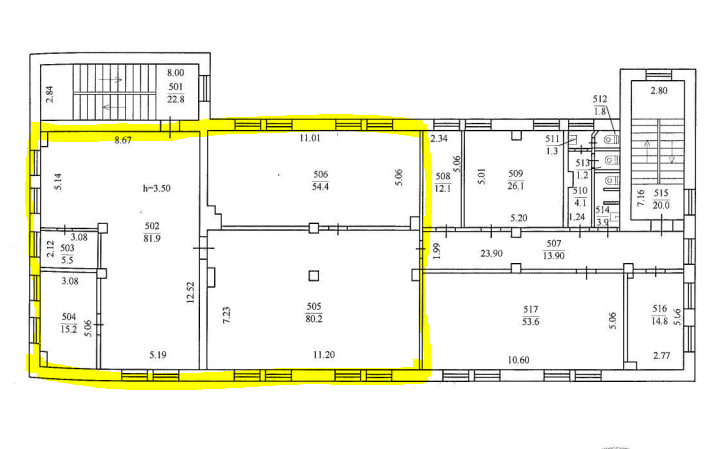
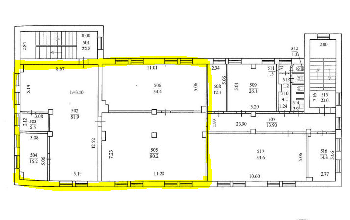
Пропонується до оренди приміщення 5-го поверху площею 237,20 кв.м (прим.№№502-506). Будівля в центрі міста. Поруч знаходяться об’єкти соціальної інфраструктури: відділення пошти та банку, клініка, магазини, ринок тощо. Стан приміщення відмінний, підходить для офісу, ідеальне місце під розвиток будь-якого бізнесу. Зручна транспортна розв’язка та інфраструктура. Характеристики: Кількість поверхів – 5 Загальна площа – 2506,00 кв.м Площа запропонована до оренди – 237,20 кв.м Електропостачання, водопостачання, теплопостачання Земельна ділянка – 0,2324 га (договір оренди) Ресурсні податки – 2,68 грн за 1 кв.м
Адреса місцезнаходження майна:
Україна, Дніпропетровська обл., м. Кам’янське, просп. Свободи, 44
Схожі пропозиції
08.08.2023
Дніпропетровська обл., м. Дніпро, вул. Чернишевського, 27. Оренда – приміщення 2-го поверху площею 98,40 кв.м. (В)
4 546.08 грн
46.20 грн / м2
Приміщення
Дніпропетровська обл., м. Дніпро, вул. Чернишевського, 27. Оренда – приміщення 2-го поверху площею 98,40 кв.м. (В)
Україна, Дніпропетровська обл., м. Дніпро, вул. Чернишевського, 27
11.11.2025
Дніпропетровська обл. Царічанський р-н. с-ще. Залелія, вул.Чкалова, 9б. Оренда – група приміщень 1-поверхової будівлі площею 48,1 кв.м (В)
2 481.96 грн
51.60 грн / м2
Приміщення
Дніпропетровська обл. Царічанський р-н. с-ще. Залелія, вул.Чкалова, 9б. Оренда – група приміщень 1-поверхової будівлі площею 48,1 кв.м (В)
Україна, Дніпропетровська обл., Царічанський р-н. с-ще. Залелія, вул.Чкалова, 9б
23.01.2024
Дніпропетровська обл., Апостолівський р-н, с. Мар`янське, вул. Терешкової, 7. Оренда – приміщення 1-го поверху площею 32,30 кв.м. (В)
323.00 грн
10.00 грн / м2
Приміщення
Дніпропетровська обл., Апостолівський р-н, с. Мар`янське, вул. Терешкової, 7. Оренда – приміщення 1-го поверху площею 32,30 кв.м. (В)
Україна, Дніпропетровська обл., Апостолівський р-н, с. Мар`янське, вул. Терешкової, 7
Дніпропетровська обл., м. Дніпро, вул. Князя Ярослава Мудрого, 3. Оренда – приміщення  5-го  поверху площею 58,20 кв.м. (В)
6 318.19 грн
108.56 грн / м2
Приміщення
Дніпропетровська обл., м. Дніпро, вул. Князя Ярослава Мудрого, 3. Оренда – приміщення 5-го поверху площею 58,20 кв.м. (В)
Україна, Дніпропетровська обл., м. Дніпро, вул. Князя Ярослава Мудрого, 3
Переглянуті пропозиції
15.08.2023
м. Київ, вул. Ореста Васкула (Феодори Пушиної), 27-А. Оренда – приміщення 3-го поверху, площею 34,5 кв.м. (В)
6 810.99 грн
197.42 грн / м2
Приміщення
м. Київ, вул. Ореста Васкула (Феодори Пушиної), 27-А. Оренда – приміщення 3-го поверху, площею 34,5 кв.м. (В)
Україна, м.Київ, м. Київ, вулиця Ореста Васкула, 27
22.03.2023
м. Київ, вул. Макіївська, 3.Оренда – приміщення 2-го поверху, площею 724,1 м2 (В)
33 453.42 грн
46.20 грн / м2
Приміщення
м. Київ, вул. Макіївська, 3.Оренда – приміщення 2-го поверху, площею 724,1 м2 (В)
Україна, м.Київ, м. Київ, вулиця Макіївська, 3
27.11.2024
 ДОВГОСТРОКОВА ОРЕНДА!  м. Київ, вул. Антоновича, 40;  Оренда – група приміщень на 4-му поверсі, площею - 774,90 кв.м. (В)
26.08.2025
м. Київ, вул. Миколи Голего, 8. Оренда – приміщення 1-го поверху площею 30,90 кв.м (В)
1 854.00 грн
60.00 грн / м2
Приміщення
м. Київ, вул. Миколи Голего, 8. Оренда – приміщення 1-го поверху площею 30,90 кв.м (В)
Україна, м.Київ, Київ, вулиця Миколи Голего, 8