Сумська обл., м. Суми, вул. Нижньосироватська, 64. Оренда – офісні приміщення 2-го поверху площею 22,90 кв.м. (В)

1 281.94 грн
55.98 грн / м2
Україна, Сумська обл., м. Суми, вул. Нижньосироватська, 64
Перейти до аукціону на сайті
  • Інформація
  • Опис
  • Документи
Дата оголошення пропозиції:
28 березня 2024
Площа:
22.90 м2
Тип об’єкта:
Офіс
Тип аукціону:
Англійський аукціон
Статус аукціону:
Аукціон не відбувся
Тип угоди:
Оренда
Розмір мінімального кроку:
90.00 ₴
Розмір гарантійного внеску:
769.17 ₴
Початок прийому пропозицій:
28.03.2024 14:14:09
Завершення прийому пропозицій:
29.04.2024 20:00:00
Проведення аукціону:
30.04.2024 11:35:00
Лот:
CLE001-UA-20240328-98490
№ лоту (УТК):
UTK250923_15P
Лот виставляється на торги (раз):
6
Стислий опис майна:
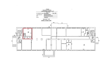
Пропонуються до оренди офісні приміщення 2-го поверху триповерхової будівлі площею 22,90 кв.м. Будівля знаходиться на околиці міста, але поруч є магазини, продуктовий супермаркет, відділення нової пошти та університет. Можливість передачі приміщень в суборенду. Наявні всі комунікації. Доступ вільний 24/7. Характеристики: Кількість поверхів – 3; Загальна площа – 1894,10 кв.м. Площа запропонована до оренди – 22,90 кв.м. Опалення, електропостачання – наявні; Водопостачання – відсутнє (наявний санвузол та вода загального користування); Земельна ділянка – 0,3944 га (договір оренди)
Адреса місцезнаходження майна:
Україна, Сумська обл., м. Суми, вул. Нижньосироватська, 64
Схожі пропозиції
Сумська обл., м. Білопілля, вул. Старопутивльська, буд. 47. Оренда – офісні приміщення 2-го поверху, площею 85,6 кв.м. (В)
505.04 грн
5.90 грн / м2
Офіс
Сумська обл., м. Білопілля, вул. Старопутивльська, буд. 47. Оренда – офісні приміщення 2-го поверху, площею 85,6 кв.м. (В)
Україна, Сумська обл., м. Білопілля, вул. Старопутивльська, буд. 47
02.12.2022
Сумська обл., м. Тростянець, вул. Миру, буд. 1А. Оренда – офісні приміщення 2-го поверху площею 50,5 кв.м. (В)
429.25 грн
8.50 грн / м2
Офіс
Сумська обл., м. Тростянець, вул. Миру, буд. 1А. Оренда – офісні приміщення 2-го поверху площею 50,5 кв.м. (В)
Україна, Сумська обл., м. Тростянець, вулиця Миру, 1а
15.10.2025
Сумська обл., Роменський р-н, смт. Липова Долина, вул. Загорянка, буд. 2. Оренда – офісні приміщення 1-го поверху площею 25,70 кв.м. (В)
21.08.2024
Сумська обл., м. Суми, вул. Іллінська, буд. 2. Оренда – офісні приміщення 6-го поверху площею 415,40 кв. м. (В)
19 689.96 грн
47.40 грн / м2
Офіс
Сумська обл., м. Суми, вул. Іллінська, буд. 2. Оренда – офісні приміщення 6-го поверху площею 415,40 кв. м. (В)
Україна, Сумська обл., м. Суми, вул. Іллінська, буд. 2