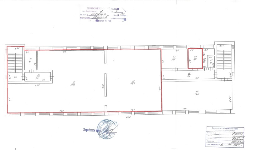
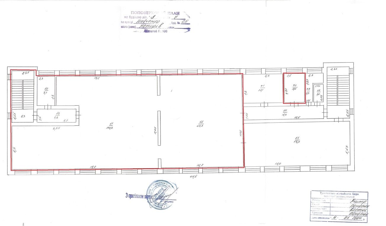
Вінницька обл., Вінницький р-н, м. Немирів, вул. Шевченка, 25; Оренда – приміщення 4-го поверху, площею 349,8 кв.м. (В)

4 466.95 грн
12.77 грн / м2
Україна, Вінницька обл., Немирів, вул. Шевченка, 25
Перейти до аукціону на сайті
  • Інформація
  • Опис
  • Документи
Дата оголошення пропозиції:
03 квітня 2024
Площа:
349.80 м2
Тип об’єкта:
Приміщення
Тип аукціону:
Англійський аукціон
Статус аукціону:
Аукціон не відбувся
Тип угоди:
Оренда
Розмір мінімального кроку:
20.00 ₴
Розмір гарантійного внеску:
2 680.17 ₴
Початок прийому пропозицій:
03.04.2024 20:19:44
Завершення прийому пропозицій:
07.05.2024 20:00:00
Проведення аукціону:
08.05.2024 12:00:00
Лот:
CLE001-UA-20240403-41342
№ лоту (УТК):
UTK140122_04T
Лот виставляється на торги (раз):
10
Стислий опис майна:
Пропонується до оренди приміщення 4-го поверху, площею 349,8 кв.м. Будівля знаходиться в прицентральній частині м. Немирова. Поруч знаходиться санаторій «Авангард». Характеристики - Кількість поверхів – 4; - Загальна площа будівлі- 1320,0 кв.м; - Площа, що пропонується в оренду – 349,8 кв.м.; - Електропостачання; - Теплопостачання від власного опалювального пункту.
Адреса місцезнаходження майна:
Україна, Вінницька обл., Немирів, вул. Шевченка, 25
Схожі пропозиції
13.12.2022
Вінницька обл., смт. Чернівці вул. Святомиколаївська, 182. Оренда – приміщення 1-го поверху площею 12,8 кв.м. (В)
504.32 грн
39.40 грн / м2
Приміщення
Вінницька обл., смт. Чернівці вул. Святомиколаївська, 182. Оренда – приміщення 1-го поверху площею 12,8 кв.м. (В)
Україна, Вінницька обл., смт. Чернівці, вул. Святомиколаївська, 182
11.05.2023
Вінницька обл., Вінницький р-н. м. Липовець, вул. В. Липківського, 37. Оренда – Приміщення підвалу площею 112,2 кв.м. (В)
3 040.62 грн
27.10 грн / м2
Приміщення
Вінницька обл., Вінницький р-н. м. Липовець, вул. В. Липківського, 37. Оренда – Приміщення підвалу площею 112,2 кв.м. (В)
Україна, Вінницька обл., Липовець, вулиця Василя Липківського, 37
19.12.2023
Вінницька обл., Гайсинський р-н, м. Тростянець, вул. Соборна, 47;      Оренда – приміщення 1-го поверху площею 12,70 кв.м. (В)
330.71 грн
26.04 грн / м2
Приміщення
Вінницька обл., Гайсинський р-н, м. Тростянець, вул. Соборна, 47; Оренда – приміщення 1-го поверху площею 12,70 кв.м. (В)
Україна, Вінницька обл., Тростянець, вулиця Соборна, 47
Вінницька обл., Гайсинський р-н, с. Ольгопіль, вул. Центральна, 131. Оренда – приміщення площею 86,10 кв.м. (В)
3 207.23 грн
37.25 грн / м2
Приміщення
Вінницька обл., Гайсинський р-н, с. Ольгопіль, вул. Центральна, 131. Оренда – приміщення площею 86,10 кв.м. (В)
Україна, Вінницька обл., Гайсинський р-н, с. Ольгопіль, вул. Центральна, 131
Переглянуті пропозиції
ДОВГОСТРОКОВА ОРЕНДА! м. Київ, проспект Академіка Глушкова, 38. Оренда – приміщення 1-го, 2-го, 3-го, 4-го поверхів, площею 1 932,00 м2 (В)
261 921.24 грн
135.57 грн / м2
Приміщення
ДОВГОСТРОКОВА ОРЕНДА! м. Київ, проспект Академіка Глушкова, 38. Оренда – приміщення 1-го, 2-го, 3-го, 4-го поверхів, площею 1 932,00 м2 (В)
Україна, м.Київ, Київ, проспект Академіка Глушкова, 38
26.07.2024
Одеська обл., Подільський р-н., смт. Окни, вул. К.Маркса, буд. 11. Оренда – приміщення 1-го поверху загальною площею 105,40 кв.м.
737.80 грн
7.00 грн / м2
Приміщення
Одеська обл., Подільський р-н., смт. Окни, вул. К.Маркса, буд. 11. Оренда – приміщення 1-го поверху загальною площею 105,40 кв.м.
Україна, Одеська обл., смт. Окни, вул. К.Маркса, буд. 11
02.03.2023
м. Київ, вул. Будівельників, 8-Б Оренда – приміщення 1-го, 2-го та 3-го поверхів, площею 1520,3 м. кв. (П)
218 816.78 грн
143.93 грн / м2
Приміщення
м. Київ, вул. Будівельників, 8-Б Оренда – приміщення 1-го, 2-го та 3-го поверхів, площею 1520,3 м. кв. (П)
Україна, м.Київ, м. Київ, вулиця Будівельників, 8-Б
22.04.2025
Полтавська обл., Лубенський р-н, с.Новоаврамівка, вул.Центральна, буд.14;   Оренда–будівля площею 62,1 кв.м. (В)
745.20 грн
12.00 грн / м2
Приміщення
Полтавська обл., Лубенський р-н, с.Новоаврамівка, вул.Центральна, буд.14; Оренда–будівля площею 62,1 кв.м. (В)
Україна, Полтавська обл., с. Новоаврамівка, вул. Центральна, буд. 14