Дніпропетровська обл., м. Кривий Ріг, вул. Калантая, 12. Оренда – приміщення підвалу, 1-го та 2-го поверхів площею 520,50 кв.м. (В)

11 877.81 грн
22.82 грн / м2
Україна, Дніпропетровська обл., м. Кривий Ріг, вул. Калантая, 12
Перейти до аукціону на сайті
  • Інформація
  • Опис
  • Документи
Дата оголошення пропозиції:
17 травня 2024
Площа:
520.50 м2
Тип об’єкта:
Приміщення
Тип аукціону:
Англійський аукціон
Статус аукціону:
Аукціон не відбувся
Тип угоди:
Оренда
Розмір мінімального кроку:
200.00 ₴
Розмір гарантійного внеску:
7 126.69 ₴
Початок прийому пропозицій:
17.05.2024 11:21:37
Завершення прийому пропозицій:
18.06.2024 20:00:00
Проведення аукціону:
19.06.2024 11:05:00
Лот:
CLE001-UA-20240517-78813
№ лоту (УТК):
UTK150324_02P
Лот виставляється на торги (раз):
3
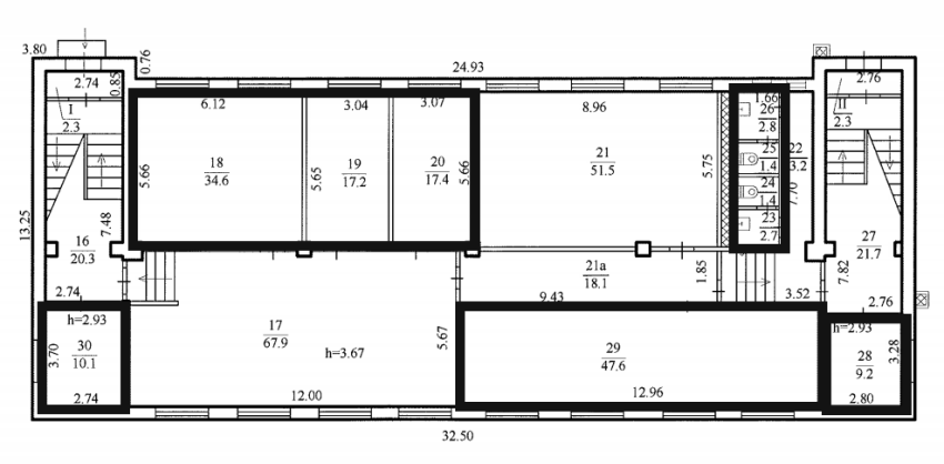
Стислий опис майна:
Пропонуються до оренди приміщення підвалу (№№ 4,5,6 площею 63,8 кв.м),1-го (№№ 18-20, 23-26, 29-30 площею 144,4 кв.м) та 2-го (№№ 32,34,35 площею 312,3 кв.м) поверхів, площею 520,50 кв.м . Будівля знаходиться в Покровському районі м. Кривого Рогу. Поруч розташовані: житловий масив, ТЦ, магазини, школи, ДК. Технічний стан потребує ремонту. Характеристики: Кількість поверхів – 2; Загальна площа – 1 029,6 кв.м_ Площа запропонована до оренди – 520,50 кв.м Електропостачання, водопостачання, теплопостачання - централізоване. Земельна ділянка – 0,1161 га (договір оренди) Ресурсні податки – 10,31 грн за 1 кв.м
Адреса місцезнаходження майна:
Україна, Дніпропетровська обл., м. Кривий Ріг, вул. Калантая, 12
Схожі пропозиції
09.08.2022
Дніпропетровська обл., м. Дніпро, вул. Князя Ярослава Мудрого, 3. Оренда – приміщення  5-го  поверху площею 58,20 кв.м. (В)
3 887.76 грн
66.80 грн / м2
Приміщення
Дніпропетровська обл., м. Дніпро, вул. Князя Ярослава Мудрого, 3. Оренда – приміщення 5-го поверху площею 58,20 кв.м. (В)
Україна, Дніпропетровська обл., м. Дніпро, вул. Князя Ярослава Мудрого, 3
18.10.2024
Дніпропетровська обл., м. Кривий Ріг, вул. Дніпропетровське шосе, 48;  Оренда – приміщення 4-го поверху, площею 640,0 кв.м. (В)
9 843.20 грн
15.38 грн / м2
Приміщення
Дніпропетровська обл., м. Кривий Ріг, вул. Дніпропетровське шосе, 48; Оренда – приміщення 4-го поверху, площею 640,0 кв.м. (В)
Україна, Дніпропетровська обл., Кривий Ріг, вулиця Дніпровське шосе, 48
15.09.2022
Дніпропетровська обл., м. Кривий Ріг, вул. Водоп`янова, 1а. Оренда – приміщення 4-го поверху, площею 789,8 кв.м. (В)
25 399.97 грн
32.16 грн / м2
Приміщення
Дніпропетровська обл., м. Кривий Ріг, вул. Водоп`янова, 1а. Оренда – приміщення 4-го поверху, площею 789,8 кв.м. (В)
Україна, Дніпропетровська обл., Кривий Ріг, вулиця Водоп'янова, 1а
18.07.2025
Дніпропетровська обл., м. Жовті Води, вул. Свободи, 39. Оренда – приміщення 3-го поверху площею 104,40 кв.м. (В)
1 252.80 грн
12.00 грн / м2
Приміщення
Дніпропетровська обл., м. Жовті Води, вул. Свободи, 39. Оренда – приміщення 3-го поверху площею 104,40 кв.м. (В)
Україна, Дніпропетровська обл., м. Жовті Води, вул. Свободи, 39