Дніпропетровська обл., м. Жовті Води, вул. Свободи, 39. Оренда – приміщення 3-го поверху площею 104,40 кв.м. (В)

1 252.80 грн
12.00 грн / м2
Україна, Дніпропетровська обл., м. Жовті Води, вул. Свободи, 39
Перейти до аукціону на сайті
  • Інформація
  • Опис
  • Документи
Дата оголошення пропозиції:
16 червня 2025
Площа:
104.40 м2
Тип об’єкта:
Приміщення
Тип аукціону:
Англійський аукціон
Статус аукціону:
Аукціон не відбувся
Тип угоди:
Оренда
Розмір мінімального кроку:
50.00 ₴
Розмір гарантійного внеску:
751.68 ₴
Початок прийому пропозицій:
16.06.2025 11:31:18
Завершення прийому пропозицій:
17.07.2025 20:00:00
Проведення аукціону:
18.07.2025 12:50:00
Лот:
CLE001-UA-20250616-44748
№ лоту (УТК):
UTK181122_02P
Лот виставляється на торги (раз):
10
Стислий опис майна:
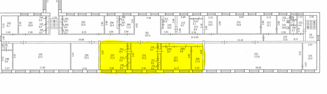
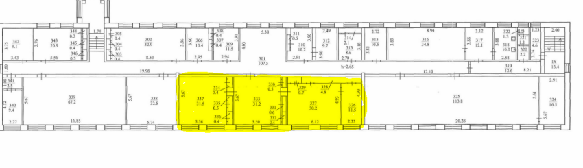
Пропонується до оренди приміщення 3-го поверху площею 104,40 кв.м. Розташування – 3-поверхова будівля (літ.А-Б-В, приміщ.№ 327, 333, 337, 326), знаходиться в центральному районі міста. Поруч знаходяться відділення банку, високий автомобільний і пішохідний потоки. Стан приміщення задовільний, підходить для офісу, Ідеальне місце під розвиток будь-якого бізнесу. Можливість передачі приміщень в суборенду. Характеристики: Кількість поверхів – 3; Загальна площа – 3622,50 кв.м.; Площа запропонована до оренди – 104,40 кв.м.; Електропостачання, водопостачання, теплопостачання-централізоване; Земельна ділянка – 0, 603 га (договір оренди)
Адреса місцезнаходження майна:
Україна, Дніпропетровська обл., м. Жовті Води, вул. Свободи, 39
Схожі пропозиції
25.04.2025
Дніпропетровська обл., м. Дніпро, просп. Героїв, 14. Оренда – приміщення 1-го поверху загальною площею 54,50 кв.м (В)
5 008.55 грн
91.90 грн / м2
Приміщення
Дніпропетровська обл., м. Дніпро, просп. Героїв, 14. Оренда – приміщення 1-го поверху загальною площею 54,50 кв.м (В)
Україна, Дніпропетровська обл., м. Дніпро, просп. Героїв, 14
30.11.2022
Дніпропетровська обл., м. Дніпро, проспект Героїв, 14. Оренда – приміщення гаражу площею 139,60 кв.м. (П)
9 297.36 грн
66.60 грн / м2
Приміщення
Дніпропетровська обл., м. Дніпро, проспект Героїв, 14. Оренда – приміщення гаражу площею 139,60 кв.м. (П)
Україна, Дніпропетровська обл., м. Дніпро, проспект Героїв, 14
Дніпропетровська обл., м. Кам’янське, просп. Героїв АТО, 1. Оренда – приміщення 3-го поверху, площею 26,30 кв.м. (В)
500.23 грн
19.02 грн / м2
Приміщення
Дніпропетровська обл., м. Кам’янське, просп. Героїв АТО, 1. Оренда – приміщення 3-го поверху, площею 26,30 кв.м. (В)
Україна, Дніпропетровська обл., м. Кам’янське, просп. Героїв АТО, 1
25.04.2025
Дніпропетровська обл., м.Кривий Ріг, вул. Головка Адмірала, 71;   Оренда–приміщення 3-го поверху, площею 777,3 кв.м. (В)
9 327.60 грн
12.00 грн / м2
Приміщення
Дніпропетровська обл., м.Кривий Ріг, вул. Головка Адмірала, 71; Оренда–приміщення 3-го поверху, площею 777,3 кв.м. (В)
Україна, Дніпропетровська обл., Кривий Ріг, вулиця Адмірала Головка, 71
Переглянуті пропозиції
15.08.2023
ДОВГОСТРОКОВА ОРЕНДА! м. Київ, вул. Салютна, 5а, літ. «Б». Оренда – приміщення 3-го та 4-го поверхів площею 992,8 кв.м. (В)