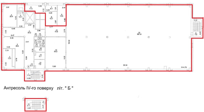
ДОВГОСТРОКОВА ОРЕНДА! м. Київ, вул. Салютна, 5а, літ. «Б». Оренда – приміщення 3-го та 4-го поверхів площею 992,8 кв.м. (В)

122 720.01 грн
123.61 грн / м2
Україна, м.Київ, Київ, вулиця Салютна, 5А
Перейти до аукціону на сайті
  • Інформація
  • Опис
  • Документи
Дата оголошення пропозиції:
14 липня 2023
Площа:
992.80 м2
Тип об’єкта:
Приміщення
Тип аукціону:
Англійський аукціон
Статус аукціону:
Аукціон не відбувся
Тип угоди:
Оренда
Розмір мінімального кроку:
1 500.00 ₴
Розмір гарантійного внеску:
73 632.00 ₴
Початок прийому пропозицій:
14.07.2023 18:56:02
Завершення прийому пропозицій:
14.08.2023 20:00:00
Проведення аукціону:
15.08.2023 11:20:00
Лот:
CLE001-UA-20230714-79424
№ лоту (УТК):
UTK040422_06T
Лот виставляється на торги (раз):
10
Стислий опис майна:
Пропонуються до оренди приміщення 3-го та 4-го поверху, літ. «Б», площею 992,8 м2 . Будівля розташована в Шевченківському районі міста Києва, місцевість Нивки. Поруч розвинена інфраструктура, зупинки маршрутного транспорту, супермаркети, бізнес-центри, фінансові заклади, 5 хв. від ст. м. «Нивки». Вхід з двору. Доступ 24/7. Характеристики • кількість поверхів – 4; • сан. вузол, каналізація – присутні; • площа будівлі – літ. «Б» - 4892,1 м2; • опалення централізоване (міське); • земельна ділянка – 0,6317 га;
Адреса місцезнаходження майна:
Україна, м.Київ, Київ, вулиця Салютна, 5А
Схожі пропозиції
06.04.2023
м. Київ, вул. Архітектора Вербицького, 3. Оренда – приміщення 1-го та 3-го поверху площею 263,7 м2 (В)
14 429.66 грн
54.72 грн / м2
Приміщення
м. Київ, вул. Архітектора Вербицького, 3. Оренда – приміщення 1-го та 3-го поверху площею 263,7 м2 (В)
Україна, м.Київ, Київ, вулиця Архітектора Вербицького, 3
м. Київ, вул. Олени Теліги, 39-г, літ. «А», оренда – приміщення виробничої будівлі, площею 1116,90 м2 (В)
94 210.52 грн
84.35 грн / м2
Приміщення
м. Київ, вул. Олени Теліги, 39-г, літ. «А», оренда – приміщення виробничої будівлі, площею 1116,90 м2 (В)
Україна, м.Київ, Київ, вул. Олени Теліги, 39-Г
07.11.2024
м. Київ, вул. Героїв Севастополя, 39/8, літ.«В»;   Оренда – приміщення 1-го поверху блоку зовнішніх споруд, площею 80,60 кв.м. (В)
15 771.00 грн
195.67 грн / м2
Приміщення
м. Київ, вул. Героїв Севастополя, 39/8, літ.«В»; Оренда – приміщення 1-го поверху блоку зовнішніх споруд, площею 80,60 кв.м. (В)
Україна, м.Київ, Київ, вул. Героїв Севастополя, 39/8(В)
07.11.2024
м. Київ, вул. Василя Макуха (Івана Шевцова), 5;   Оренда – приміщення 1-го поверху будівлі, площею 401,5 кв.м. (В)
83 720.78 грн
208.52 грн / м2
Приміщення
м. Київ, вул. Василя Макуха (Івана Шевцова), 5; Оренда – приміщення 1-го поверху будівлі, площею 401,5 кв.м. (В)
Україна, м.Київ, м. Київ, вулиця Василя Макуха (Івана Шевцова), 5