Дніпропетровська обл., м. Жовті Води, вул. Свободи, 39. Оренда – приміщення 3-го поверху площею 104,40 кв.м. (В)

552.28 грн
5.29 грн / м2
Україна, Дніпропетровська обл., м. Жовті Води, вул. Свободи, 39
Перейти до аукціону на сайті
  • Інформація
  • Опис
  • Документи
Дата оголошення пропозиції:
02 липня 2024
Площа:
104.40 м2
Тип об’єкта:
Приміщення
Тип аукціону:
Англійський аукціон
Статус аукціону:
Аукціон не відбувся
Тип угоди:
Оренда
Розмір мінімального кроку:
50.00 ₴
Розмір гарантійного внеску:
331.37 ₴
Початок прийому пропозицій:
02.07.2024 12:00:42
Завершення прийому пропозицій:
01.08.2024 20:00:00
Проведення аукціону:
02.08.2024 11:45:00
Лот:
CLE001-UA-20240702-49540
№ лоту (УТК):
UTK181122_02P
Лот виставляється на торги (раз):
10
Стислий опис майна:
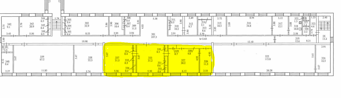
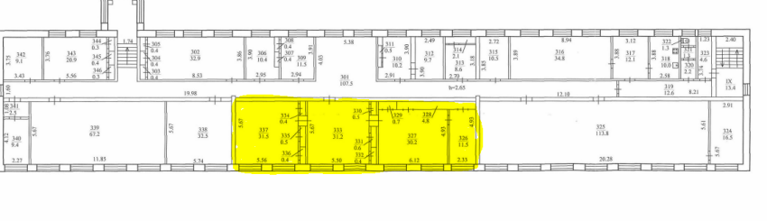
Пропонується до оренди приміщення 3-го поверху площею 104,40 кв.м. Розташування – 3-поверхова будівля (літ.А-Б-В, приміщ.№ 327, 333, 337, 326), знаходиться в центральному районі міста. Поруч знаходяться відділення банку, високий автомобільний і пішохідний потоки. Стан приміщення задовільний, підходить для офісу, Ідеальне місце під розвиток будь-якого бізнесу. Можливість передачі приміщень в суборенду. Характеристики: Кількість поверхів – 3; Загальна площа – 3622,50 кв.м.; Площа запропонована до оренди – 104,40 кв.м.; Електропостачання, водопостачання, теплопостачання-централізоване; Земельна ділянка – 0, 603 га (договір оренди)
Адреса місцезнаходження майна:
Україна, Дніпропетровська обл., м. Жовті Води, вул. Свободи, 39
Схожі пропозиції
Дніпропетровська обл., м. Дніпро, вулиця Князя Ярослава Мудрого, 3. Оренда – приміщення 5-го поверху, площею 39,70 кв.м. (В)
2 462.59 грн
62.03 грн / м2
Приміщення
Дніпропетровська обл., м. Дніпро, вулиця Князя Ярослава Мудрого, 3. Оренда – приміщення 5-го поверху, площею 39,70 кв.м. (В)
Україна, Дніпропетровська обл., м. Дніпро, вулиця Князя Ярослава Мудрого, 3
25.06.2024
Дніпропетровська обл., м. Дніпро, вул.Чернишевського, 27;   Оренда – приміщення 1-го поверху площею 19,8 кв.м.(В)
2 004.95 грн
101.26 грн / м2
Приміщення
Дніпропетровська обл., м. Дніпро, вул.Чернишевського, 27; Оренда – приміщення 1-го поверху площею 19,8 кв.м.(В)
Україна, Дніпропетровська обл., Дніпро, вулиця Чернишевського, 27
29.02.2024
Дніпропетровська обл., м. Жовті Води, вул. Свободи, 39;  Оренда – приміщення 3-го поверху площею 32,5 кв.м. (В)
487.50 грн
15.00 грн / м2
Приміщення
Дніпропетровська обл., м. Жовті Води, вул. Свободи, 39; Оренда – приміщення 3-го поверху площею 32,5 кв.м. (В)
Україна, Дніпропетровська обл., Жовті Води, бульвар Свободи, 39
21.11.2025
Дніпропетровська обл., м. Кривий Ріг, вул. Водоп'янова, 1а. Оренда – приміщення 1-го поверху, площею 282,50 кв.м. (В)
3 390.00 грн
12.00 грн / м2
Приміщення
Дніпропетровська обл., м. Кривий Ріг, вул. Водоп'янова, 1а. Оренда – приміщення 1-го поверху, площею 282,50 кв.м. (В)
Україна, Дніпропетровська обл., Кривий Ріг, вулиця Водоп'янова, 1
Переглянуті пропозиції
26.04.2023
м. Київ, вул. Ісаакяна, 3 Оренда – Приміщення 2-го поверху площею 149,81 кв.м. (В)
22 690.22 грн
151.46 грн / м2
Приміщення
м. Київ, вул. Ісаакяна, 3 Оренда – Приміщення 2-го поверху площею 149,81 кв.м. (В)
Україна, м.Київ, Київ, вулиця Ісаакяна, 3