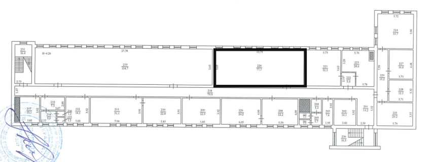
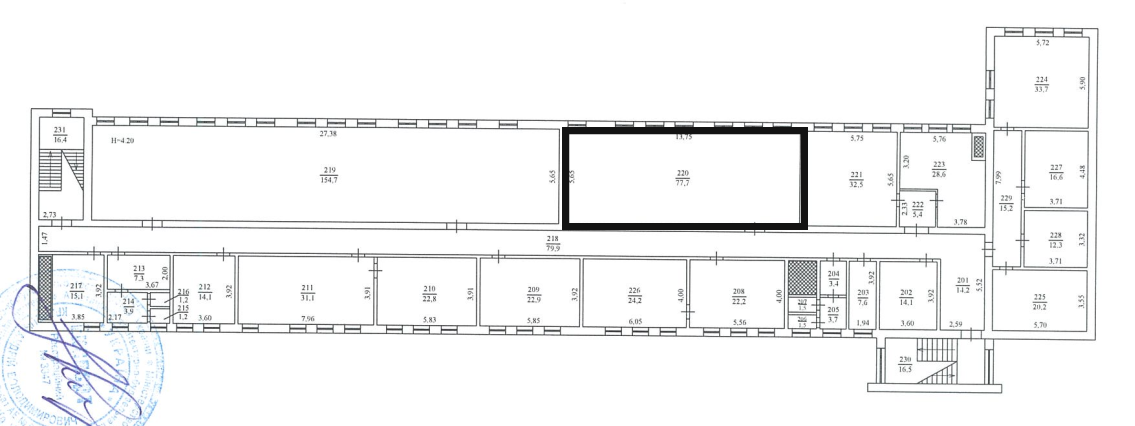
Дніпропетровська обл., м. Дніпро, просп. Героїв, 14. Оренда – приміщення 2-го поверху загальною площею 77,70 кв.м (В)

4 998.15 грн
64.33 грн / м2
Україна, Дніпропетровська обл., м. Дніпро, просп. Героїв, 14
Перейти до аукціону на сайті
  • Інформація
  • Опис
  • Документи
Дата оголошення пропозиції:
24 жовтня 2024
Площа:
77.70 м2
Тип об’єкта:
Приміщення
Тип аукціону:
Англійський аукціон
Статус аукціону:
Аукціон не відбувся
Тип угоди:
Оренда
Розмір мінімального кроку:
100.00 ₴
Розмір гарантійного внеску:
2 998.80 ₴
Початок прийому пропозицій:
24.10.2024 15:47:34
Завершення прийому пропозицій:
25.11.2024 20:00:00
Проведення аукціону:
26.11.2024 11:35:00
Лот:
CLE001-UA-20241024-75132
№ лоту (УТК):
UTK130524_08P
Лот виставляється на торги (раз):
5
Стислий опис майна:
Пропонується до оренди приміщення 2-го поверху загальною площею 77,70 кв.м (прим.220). Розташування - будівля знаходиться в Соборному районі міста. Поруч знаходяться відділення банку, супермаркети, лікарня, зупинка громадського транспорту, високий автомобільний і пішохідний потоки. Стан приміщення задовільний. Вхід в приміщення спільний. Зручна транспортна розв’язка та інфраструктура. Характеристики: Кількість поверхів – 4; Загальна площа – 3705,30 кв.м Площа запропонована до оренди – 77,70 кв.м Теплопостачання – централізоване; водопостачання, електропостачання, Земельна ділянка – 0,2755 га (договір оренди)
Адреса місцезнаходження майна:
Україна, Дніпропетровська обл., м. Дніпро, просп. Героїв, 14
Схожі пропозиції
18.07.2025
Дніпропетровська обл., м. Кривий Ріг, вул. Героїв АТО, 30. Оренда – приміщення 1-го поверху площею 76,90 кв. м. (В)
2 892.21 грн
37.61 грн / м2
Приміщення
Дніпропетровська обл., м. Кривий Ріг, вул. Героїв АТО, 30. Оренда – приміщення 1-го поверху площею 76,90 кв. м. (В)
Україна, Дніпропетровська обл., м. Кривий Ріг, вул. Героїв АТО, 30
01.09.2023
Дніпропетровська обл., м. Кривий Ріг, вул. Водоп`янова, 1а. Оренда – приміщення 2-го поверху, площею 569,4 кв.м. (В)
5 124.60 грн
9.00 грн / м2
Приміщення
Дніпропетровська обл., м. Кривий Ріг, вул. Водоп`янова, 1а. Оренда – приміщення 2-го поверху, площею 569,4 кв.м. (В)
Україна, Дніпропетровська обл., Кривий Ріг, вулиця Водоп'янова, 1а
21.11.2025
Дніпропетровська обл., м. Нікополь, вулиця Патріотів України, буд. 113А. Оренда – перший поверх, загальною площею 1104,30 кв.м. (В)
28.10.2022
Дніпропетровська обл., м. Кривий Ріг, вул. Головка Адмірала, 71. Оренда – приміщення 4-го поверху, площею 580,5 кв.м. (В)
16 997.04 грн
29.28 грн / м2
Приміщення
Дніпропетровська обл., м. Кривий Ріг, вул. Головка Адмірала, 71. Оренда – приміщення 4-го поверху, площею 580,5 кв.м. (В)
Україна, Дніпропетровська обл., Кривий Ріг, вулиця Адмірала Головка, 71
Переглянуті пропозиції
30.04.2024
Чернігівська обл., смт Олишівка, вул. Чернігівська, 29. Оренда – частина майнового комплексу, площею 842,5 кв.м. (В)
3 833.38 грн
4.55 грн / м2
Приміщення
Чернігівська обл., смт Олишівка, вул. Чернігівська, 29. Оренда – частина майнового комплексу, площею 842,5 кв.м. (В)
Україна, Чернігівська обл., смт Олишівка, вул. Чернігівська, 29