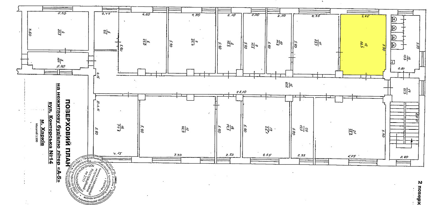
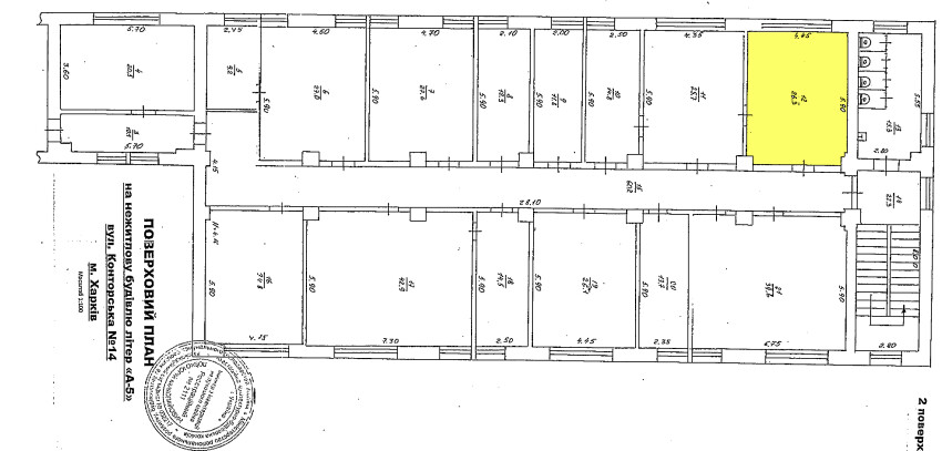
м. Харків, вул. Конторська,14.Оренда – приміщення 2-го поверху площею 26,3 кв.м (В)

1 822.59 грн
69.30 грн / м2
Україна, Харківська обл., м. Харків, вул. Конторська,14
Перейти до аукціону на сайті
  • Інформація
  • Опис
  • Документи
Дата оголошення пропозиції:
07 листопада 2024
Площа:
26.30 м2
Тип об’єкта:
Приміщення
Тип аукціону:
Англійський аукціон
Статус аукціону:
Аукціон не відбувся
Тип угоди:
Оренда
Розмір мінімального кроку:
50.00 ₴
Розмір гарантійного внеску:
1 093.55 ₴
Початок прийому пропозицій:
07.11.2024 16:27:03
Завершення прийому пропозицій:
10.12.2024 20:00:00
Проведення аукціону:
11.12.2024 12:55:00
Лот:
CLE001-UA-20241107-19803
№ лоту (УТК):
UTK070723_11P
Лот виставляється на торги (раз):
10
Стислий опис майна:
Пропонується до оренди приміщення 2-го поверху площею 26,3 кв.м. Будівля в центрі міста Харкова. 15 хв до метро Центральний ринок. Характеристики: Кількість поверхів – 4; Загальна площа – 5611,00 кв.м_ Площа запропонована до оренди – 26,3 кв.м Дозволена потужність – 4 кВт Теплопостачання - відсутнє Земельна ділянка – 0,5169 га
Адреса місцезнаходження майна:
Україна, Харківська обл., м. Харків, вул. Конторська,14
Схожі пропозиції
Харківська обл., м. Харків, вул. Академіка Вальтера, 3.Оренда – приміщення 4-го поверху площею 575,8 кв.м.(В)
3 011.43 грн
5.23 грн / м2
Приміщення
Харківська обл., м. Харків, вул. Академіка Вальтера, 3.Оренда – приміщення 4-го поверху площею 575,8 кв.м.(В)
Україна, Харківська обл., Харків, вул. Академіка Вальтера, 3
07.08.2024
м.Харків, вул. Амосова,13 в. Оренда – приміщення четвертого поверху площею 77,6 кв.м (П)
6 733.35 грн
86.77 грн / м2
Приміщення
м.Харків, вул. Амосова,13 в. Оренда – приміщення четвертого поверху площею 77,6 кв.м (П)
Україна, Харківська обл., м. Харків, вул. Амосова,13 в
21.12.2022
Черкаська обл., м. Чигирин, вул. Б. Хмельницького, 11. Оренда – приміщення підвалу, площею 229,8 кв. м. (В)
560.71 грн
6.54 грн / м2
Приміщення
Черкаська обл., м. Чигирин, вул. Б. Хмельницького, 11. Оренда – приміщення підвалу, площею 229,8 кв. м. (В)
Україна, Харківська обл., Харківський р-н, м. Мерефа, вул. Дніпровська, 226
м. Харків, вул. Свободи, 7/9. Оренда – приміщення 1-го поверху, площею 295,7 кв.м. (В)
45 094.25 грн
152.50 грн / м2
Приміщення
м. Харків, вул. Свободи, 7/9. Оренда – приміщення 1-го поверху, площею 295,7 кв.м. (В)
Україна, Харківська обл., м. Харків, вул. Свободи, 7/9