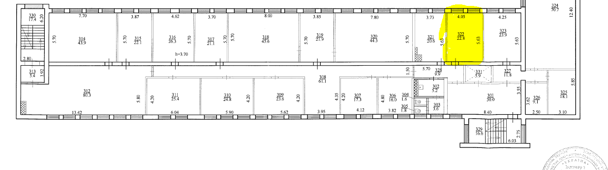
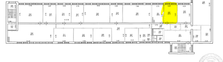
Дніпропетровська обл., м. Кам’янське, пр. Героїв АТО, 1. Оренда – приміщення 3-го поверху площею 22,80 кв.м. (В)

684.00 грн
30.00 грн / м2
Україна, Дніпропетровська обл., м. Кам’янське, пр. Героїв АТО, 1
Перейти до аукціону на сайті
  • Інформація
  • Опис
  • Документи
Дата оголошення пропозиції:
18 лютого 2025
Площа:
22.80 м2
Тип об’єкта:
Приміщення
Тип аукціону:
Англійський аукціон
Статус аукціону:
Аукціон не відбувся
Тип угоди:
Оренда
Розмір мінімального кроку:
20.00 ₴
Розмір гарантійного внеску:
410.46 ₴
Початок прийому пропозицій:
18.02.2025 13:49:46
Завершення прийому пропозицій:
17.03.2025 20:00:00
Проведення аукціону:
18.03.2025 11:35:00
Лот:
CLE001-UA-20250218-42801
№ лоту (УТК):
UTK121222_07P
Лот виставляється на торги (раз):
10
Стислий опис майна:
Пропонується до оренди приміщення 3-го поверху площею 22,80 кв.м. Розташування - будівля АТС 6,9 (літ. А-5, № 322) знаходиться в центральному районі міста. Поруч знаходяться відділення банку, високий автомобільний і пішохідний потоки. Стан приміщення задовільний, підходить для офісу, Ідеальне місце під розвиток будь-якого бізнесу. Можливість передачі приміщень в суборенду. Характеристики: Кількість поверхів – 5 Загальна площа – 3830,20 кв.м. Площа запропонована до оренди – 22,80 кв.м. Електропостачання, водопостачання, охорона та обслуговування пожежної сигналізації, вивіз сміття, прибирання території; Земельна ділянка – 0, 2793 га (договір оренди)
Адреса місцезнаходження майна:
Україна, Дніпропетровська обл., м. Кам’янське, пр. Героїв АТО, 1
Схожі пропозиції
31.12.2024
Дніпропетровська обл., Апостолівський р-н, с. Мар`янське, вул. Терешкової, 7. Оренда – приміщення 1-го поверху площею 32,30 кв.м. (В)
323.00 грн
10.00 грн / м2
Приміщення
Дніпропетровська обл., Апостолівський р-н, с. Мар`янське, вул. Терешкової, 7. Оренда – приміщення 1-го поверху площею 32,30 кв.м. (В)
Україна, Дніпропетровська обл., Апостолівський р-н, с. Мар`янське, вул. Терешкової, 7
10.09.2024
Дніпропетровська обл., м. Кривий Ріг, вул. Водоп`янова, 1а;  Оренда – приміщення 2-го поверху, площею 569,4 кв.м. (В)
5 124.60 грн
9.00 грн / м2
Приміщення
Дніпропетровська обл., м. Кривий Ріг, вул. Водоп`янова, 1а; Оренда – приміщення 2-го поверху, площею 569,4 кв.м. (В)
Україна, Дніпропетровська обл., Кривий Ріг, вулиця Водоп'янова, 1а
26.10.2022
Дніпропетровська обл., м. Жовті Води, бул. Свободи, 39. Оренда – приміщення другого поверху, загальною площею 58,80 кв.м. (В)
655.03 грн
11.14 грн / м2
Приміщення
Дніпропетровська обл., м. Жовті Води, бул. Свободи, 39. Оренда – приміщення другого поверху, загальною площею 58,80 кв.м. (В)
Україна, Дніпропетровська обл., м. Жовті Води, бул. Свободи, 39