Полтавська обл., Кременчуцький р-н, с. Іванове Селище, вул. Новоукраїнська, буд.7. Оренда – Гараж площею 24,20 кв.м. (В)

508.20 грн
21.00 грн / м2
Україна, Полтавська обл., Кременчуцький р-н, с. Іванове Селище, вул. Новоукраїнська, буд.7
Перейти до аукціону на сайті
  • Інформація
  • Опис
  • Документи
Дата оголошення пропозиції:
19 березня 2025
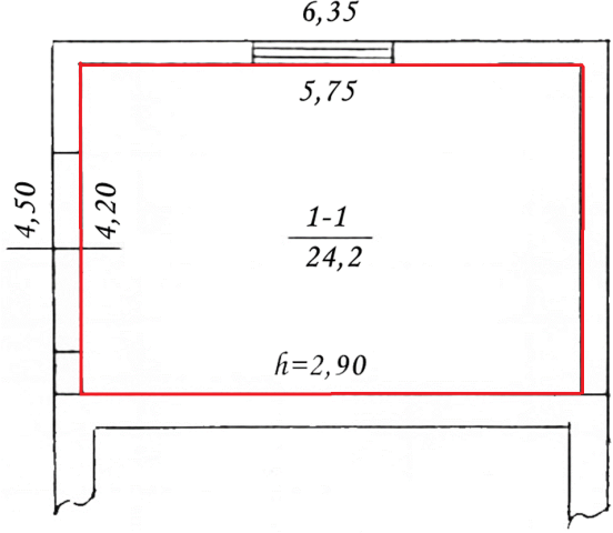
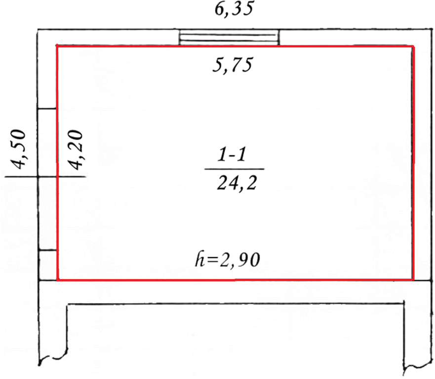
Площа:
24.20 м2
Тип об’єкта:
Гараж
Тип аукціону:
Англійський аукціон
Статус аукціону:
Аукціон не відбувся
Тип угоди:
Оренда
Розмір мінімального кроку:
20.00 ₴
Розмір гарантійного внеску:
304.92 ₴
Початок прийому пропозицій:
19.03.2025 13:25:03
Завершення прийому пропозицій:
21.04.2025 20:00:00
Проведення аукціону:
22.04.2025 11:30:00
Лот:
CLE001-UA-20250319-68299
№ лоту (УТК):
UTK140721_12P
Лот виставляється на торги (раз):
10
Стислий опис майна:
Пропонується до оренди гараж площею 24,20 кв.м, який розташовано по вул. Новоукраїнській с. Іванове Селище. Характеристики: кількість поверхів – 1; загальна площа – 24,20 кв.м.; площа запропонована до оренди 24,20 кв.м.; опалення – відсутнє; електропостачання - відсутнє; земельна ділянка – 0, 0040 га (договір оренди ЗД)
Адреса місцезнаходження майна:
Україна, Полтавська обл., Кременчуцький р-н, с. Іванове Селище, вул. Новоукраїнська, буд.7
Схожі пропозиції
04.03.2025
Полтавська обл., Кременчуцький р-н, с. Іванове Селище, вул. Новоукраїнська, буд.7. Оренда – Гараж площею 24,20 кв.м. (В)
508.20 грн
21.00 грн / м2
Гараж
Полтавська обл., Кременчуцький р-н, с. Іванове Селище, вул. Новоукраїнська, буд.7. Оренда – Гараж площею 24,20 кв.м. (В)
Україна, Полтавська обл., Кременчуцький р-н, с. Іванове Селище, вул. Новоукраїнська, буд.7
06.12.2022
Полтавська обл., Кременчуцький р-н, с. Іванове Селище, вул. Новоукраїнська, буд.7. Оренда – Гараж площею 24,20 кв.м. (В)
470.45 грн
19.44 грн / м2
Гараж
Полтавська обл., Кременчуцький р-н, с. Іванове Селище, вул. Новоукраїнська, буд.7. Оренда – Гараж площею 24,20 кв.м. (В)
Україна, Полтавська обл., Кременчуцький р-н, с. Іванове Селище, вул. Новоукраїнська, буд.7
10.10.2023
Полтавська обл., Кременчуцький р-н, с. Іванове Селище, вул. Новоукраїнська, буд.7. Оренда – Гараж площею 24,20 кв.м. (В)
508.20 грн
21.00 грн / м2
Гараж
Полтавська обл., Кременчуцький р-н, с. Іванове Селище, вул. Новоукраїнська, буд.7. Оренда – Гараж площею 24,20 кв.м. (В)
Україна, Полтавська обл., Кременчуцький р-н, с. Іванове Селище, вул. Новоукраїнська, буд.7
12.01.2023
Полтавська обл., Кременчуцький р-н, с. Іванове Селище, вул. Новоукраїнська, буд.7. Оренда – Гараж площею 24,20 кв.м. (В)
470.45 грн
19.44 грн / м2
Гараж
Полтавська обл., Кременчуцький р-н, с. Іванове Селище, вул. Новоукраїнська, буд.7. Оренда – Гараж площею 24,20 кв.м. (В)
Україна, Полтавська обл., Кременчуцький р-н, с. Іванове Селище, вул. Новоукраїнська, буд.7
Переглянуті пропозиції
24.11.2023
Рівненська обл., Рівненський р-н., с. Вітковичі, вул. Ковальська, 1. Оренда – частина приміщення одноповерхової будівлі, площею 10,8 кв.м. (В)
270.00 грн
25.00 грн / м2
Приміщення
Рівненська обл., Рівненський р-н., с. Вітковичі, вул. Ковальська, 1. Оренда – частина приміщення одноповерхової будівлі, площею 10,8 кв.м. (В)
Україна, Рівненська обл., Рівненський р-н., с. Вітковичі, вул. Ковальська, 1
Львівська обл., м. Городок, вул. Львівська, 16. Оренда – приміщення 3-го поверху 161,4 кв.м.
1 549.44 грн
9.60 грн / м2
Приміщення
Львівська обл., м. Городок, вул. Львівська, 16. Оренда – приміщення 3-го поверху 161,4 кв.м.
Україна, Львівська обл., м. Городок, вул. Львівська, 16
м. Київ, вул. Будівельників, 8-Б, оренда – приміщення підвалу, площею 452,60 кв.м. (В)
42 843.12 грн
94.66 грн / м2
Приміщення
м. Київ, вул. Будівельників, 8-Б, оренда – приміщення підвалу, площею 452,60 кв.м. (В)
Україна, м.Київ, Київ, вул. Будівельників, 8-Б
18.11.2022
Рівненська обл., Вараський р-н. смт. Володимирець вул. Поштова, 23. Оренда – приміщення 1-го поверху площею 52,8 кв.м. (В)
1 172.16 грн
22.20 грн / м2
Приміщення
Рівненська обл., Вараський р-н. смт. Володимирець вул. Поштова, 23. Оренда – приміщення 1-го поверху площею 52,8 кв.м. (В)
Україна, Рівненська обл., Вараський р-н. смт. Володимирець, смт. Володимирець вул. Поштова, 23